รีวิวคอนโดแดน ลิฟวิ่ง พระราม 9 - แอร์พอร์ต ลิงก์ (Than Living Rama 9 - Airport Link)
วันนี้ Checkraka.com พามาชมคอนโดมิเนียมทำเลใกล้ Airport Rail Link กับโครงการ
แดน ลิฟวิ่ง พระราม 9 - แอร์พอร์ต ลิงก์ (Than Living Rama 9 - Airport Link) คอนโด High rise ในสไตล์ Modern Contemporary ออกแบบ
ด้วยแนวคิด Modern Elegant Oasis Amidst Town โอเอซิสแห่งความทันสมัยใจกลางเมือง ห่างจาก Airport link สถานีหัวหมาก ประมาณ 600 เมตร โดยคำว่า "Than Living" นั้นมาจากคำว่า "More Than Living" คือมากกว่าแค่การอยู่อาศัย ให้ครบทุกความต้องการของการอยู่อาศัยที่จะทำให้คุณภาพชีวิตของคุณดีขึ้น เดี๋ยวเราลองไปดูโครงการนี้กันค่ะ 

- เจ้าของ และผู้พัฒนาโครงการ: บริษัท กีธา พร็อพเพอร์ตี้ส์ จํากัด
- ที่ตั้งโครงการ: ซ.ศรีนครินทร์ 14 ถ.ศรีนครินทร์ แขวงสวนหลวง สเขตสวนหลวง กรุงเทพฯ
- อาคารชุดพักอาศัย: สูง 32 ชั้น จำนวน 1 อาคาร จำนวน 530 ยูนิต
- ขนาดที่ดินทั้งโครงการ: 3-0-27.4 ไร่
- ลิฟต์โดยสาร 4 ตัว และลิฟต์บริการ 1 ตัว
- ห้องชุดพักอาศัย: มี 4 รูปแบบหลักๆ ได้แก่ 1 ห้องนอน, 2 ห้องนอน, Duplex และ Penthouse
- ขนาดตั้งแต่ 24 - 123 ตร.ม.
- ที่จอดรถ 308 คัน หรือประมาณ 58%
- ราคาเริ่มต้น 2.19 ล้านบาท สําหรับห้องแบบ 1 ห้องนอน ขนาด 26 ตร.ม. (ข้อมูล ณ 26 มี.ค. 58)
- คาดว่าจะแล้วเสร็จประมาณเดือน มีนาคม 2561
- วันที่เข้าเยี่ยมชม-รีวิวคอนโด ข้อมูล ณ 26 มี.ค. 58
เจ้าของและผู้พัฒนาโครงการ
บริษัท กีธา พร็อพเพอร์ตี้ส์ จำกัด เป็นบริษัทที่ประกอบธุรกิจประเภทพัฒนาอสังหาริมทรัพย์ โดยคอนโดมิเนียมโครงการแรกของบริษัทฯ ที่ถูกพัฒนาขึ้นมาในปี 2556 คือโครงการ
แดน ลิฟวิ่ง รัชดา-ประชาอุทิศ (Than Living Rachada-Prachautid) ตามมาด้วยโครงการ
แดน ลิฟวิ่ง สาทร-เจริญราษฎร์ (Than Living Sathorn-Charoenrat), โครงการ
มาย สตอรี่ ลาดพร้าว 71 (My Story Ladprao 71) และล่าสุดกับโครงการ
แดน ลิฟวิ่ง พระราม 9 - แอร์พอร์ต ลิงก์ (Than Living Rama 9 - Airport Link) ซึ่งมีมูลค่าโครงการกว่า 1,636 ล้านบาท และเพิ่งเปิดตัวไปเมื่อวันที่ 14-15 มี.ค. 2558 ที่ผ่านมา
โครงการนี้ตั้งอยู่ริมถนนศรีนครินทร์ แขวงสวนหลวง เขตสวนหลวง กรุงเทพฯ โดยอยู่ใกล้ Airport Link ประมาณ 600 เมตร

ภาพแผนที่โครงการ แดน ลิฟวิ่ง พระราม 9 - แอร์พอร์ต ลิงก์

ภาพแผนที่โครงการแจกแจงให้เห็นระยะใกล้-ไกลของโครงการกับสถานที่ หรือ Landmark รอบๆ โครงการที่น่าสนใจตำแหน่ง GPS โดยประมาณของโครงการ = 13.737613,100.64
(คลิกเพื่อชมพิกัดบน Google Maps) 
Airport Link หัวหมาก อยู่ห่างจากโครงการประมาณ 600 ม.
สถานีรถไฟหัวหมาก อยู่ห่างจากโครงการประมาณ 400 ม. 
รพ.วิภาราม อยู่ห่างจากโครงการประมาณ 800 ม.

แมคโดนัลด์ สาขาแมกซ์ แวลู ศรีนครินทร์ (ไดร์ฟทรู) อยู่ห่างจากโครงการประมาณ 350 ม.
แมกซ์ แวลู ศรีนครินทร์ อยู่ห่างจากโครงการประมาณ 350 ม.
โรงเรียนเตรียมอุดมศึกษาพัฒนาการ อยู่ห่างจากโครงการประมาณ 1.5 กม.
เดอะ ไนน์ พระราม 9 อยู่ห่างจากโครงการประมาณ 2.4 กม. 
รพ.สมิติเวช ศรีนครินทร์
อยู่ห่างจากโครงการประมาณ 2.6 กม.
ม.อัสสัมชัญ หัวหมาก อยู่ห่างจากโครงการประมาณ 3.5 กม.
ม.รามคำแหง อยู่ห่างจากโครงการประมาณ 4 กม. 
ซีคอนสแควร์
อยู่ห่างจากโครงการประมาณ 5 กม. 
พาราไดซ์พาร์ค
อยู่ห่างจากโครงการประมาณ 5.6 กม. การเดินทางเข้า-ออกโครงการ
1. เดินทางด้วยรถยนต์ส่วนตัว
การเดินทางด้วยรถยนต์สามารถมาได้หลายเส้นทาง โดยมีเส้นทางหลักดังต่อไปนี้ค่ะ
เส้นทางเข้าที่ 1 - ขาเข้าโครงการจากถนนพัฒนาการ
ลองมาดูภาพด้านล่างประกอบตัวอย่างการเดินทางกันดีกว่านะคะ
.jpg)
หากมาจากถนนเพชรบุรีมุ่งหน้าถนนพัฒนาการให้ยึดป้ายบอกทาง "คลองตัน" ไว้ค่ะ
.jpg)
พอถึงสะพานข้ามแยกคลองตัน ให้ชิดขวาเพื่อขึ้นสะพานค่ะ
.jpg)
ตรงขึ้นสะพานมาตามทางเลยค่ะ
.jpg)
พอลงสะพานข้ามแยกคลองตันมาแล้ว จะเข้าสู่ถนนพัฒนาการ
.jpg)
จากนั้นให้ตรงมาเรื่อยๆ โดยยึดป้ายบอกทาง "ศรีนครินทร์" ไว้ค่ะ
.jpg)
ตรงมาอีกหน่อยจะเห็น TESCO LOTUS อยู่ทางซ้ายมือ
.jpg)
จากนั้นให้เตรียมชิดซ้ายไว้โดยยึดป้ายบอกทาง "ศรีนครินทร์" (ไม่ขึ้นสะพานไปอ่อนนุช-ลาดกระบัง)
.jpg)
พอถึงแยกพัฒนาการก็ให้เลี้ยวซ้ายค่ะ
.jpg)
เลี้ยวซ้ายมาก็เห็นสำนักงานดาวเทียม PSI อยู่ทางซ้ายมือค่ะ
.jpg)
ตรงจากแยกมาประมาณ 120 ม. ก็จะเจอโครงการอยู่ทางซ้ายมือค่ะ
.jpg)
ถึงโครงการแล้วค่ะ เลี้ยวซ้ายเข้าไปได้เลย
เส้นทางเข้าที่ 2 - ขาเข้าโครงการจากถนนพระรามเก้า
เส้นทางออกที่ 1 - ขาออกโครงการไปขึ้นทางด่วน
เส้นทางออกที่ 2 - ขาออกโครงการไปถนนมอเตอร์เวย์
2. การเดินทางด้วยรถไฟฟ้า
การเดินทางด้วยรถไฟฟ้า Airport Link
ตัวอย่างการเดินทางจากรถไฟฟ้า Airport Link สถานีหัวหมาก มาโครงการ

แผนที่บริเวณ Airport Link สถานีหัวหมาก
(คลิกดูภาพขนาดใหญ่)
แผนผังสถานีรถไฟฟ้า Airport Link (คลิกดูภาพขนาดใหญ่) ตัวอย่างการเดินทางจากรถไฟฟ้า Airport Link สถานีหัวหมาก มาโครงการ

ลงสถานีหัวหมากเลือกทางออกที่ 1

ลงบันไดมาเตรียมตัวสำรวจระยะกันค่ะ

บริเวณรอบๆ ของสถานีหัวหมากจะมีพื้นที่ค่อนข้างเยอะ มีที่ให้จอดรถมอเตอร์ไซด์ และรถยนต์
สำหรับคนที่ขับมาจากบ้าน แล้วโดยสารต่อด้วยรถไฟฟ้า Airport Link ค่ะ

เดินเรื่อยมาจนถึงถนนใหญ่ให้เลี้ยวไปตามลูกศรเลยค่ะ

เดินมาได้สักพักนึงจะเจอสะพานลอย และเห็นสำนักงานขายแล้วค่ะ

จากมุมนี้บนสะพานลอย ถ้าโครงการสร้างเสร็จเมื่อไหร่คอนโดของ Than Living จะโดดเด่นขึ้นมาทีเดียวค่ะ

ลงสะพานลอยมาแล้วค่ะ มีป้ายรถเมล์ใกล้ๆ โครงการ

จากสะพานลอยแค่ 500 เมตร ก็มาถึงสำนักงานขาย และต่อไปตรงนี้จะเป็นทางเข้าโครงการค่ะ
แผนที่สภาพแวดล้อม และโครงการคอนโดมิเนียมบริเวณรอบโครงการ 
บรรยากาศด้านหน้าโครงการค่ะ
บรรยากาศด้านหน้าโครงการ (หากเลี้ยวซ้ายออกจากโครงการ)

เราเริ่มต้นเดินไปทางซ้ายของโครงการกันก่อนเลยค่ะ
เลี้ยวออกมาไม่ทันไร เริ่มเห็นจุดเชื่อมต่อการคมนาคมของถนนเส้นนี้แล้วค่ะ

จุดแรกพี่วินมอเตอร์ไซค์ เรียกไป Airport Link หัวหมาก คิด 20 บาทค่ะ
จุดที่สองเป็นป้ายรถเมล์ และจุดที่สามคือสะพานลอยค่ะ

ระหว่างวินมอเตอร์ไซค์กับป้ายรถเมล์จะมีสวนเล็กๆ สีเขียวๆ จุดนี้คั่นไว้ระหว่างกลางค่ะ

ป้ายรถเมล์ตรงนี้มุ่งหน้าไปพระราม 9, หัวหมาก, รามคำแหง, บางกะปิ ค่ะ

แอบเห็นป้ายบอกเมนู และร้านอาหาร น่าจะเปิดขายช่วงเย็นๆ ค่ะ

ตรงตีนสะพานลอยก็มีร้านขายอาหารอีก

เดินเลยมานิดหน่อยจะมีป้ายบอกทางไปขึ้นรถไฟ สถานีหัวหมากค่ะ

เดินขึ้นสะพานลอยกันดีกว่าค่ะ

ตึกสูงๆ ขวามือเป็นลุมพินี เพลส ศรีนครินทร์-หัวหมาก สเตชั่น ปิดโปรเจ็คไปแล้วค่ะ ถัดไปไกลๆ
ที่เห็น 4 ตึกเรียงกันคือโครงการฟลอร่าวิลล์ คอนโดมิเนียม

มุมสูงบนสะพานลอยจุดนี้จะเห็นวิวที่จะไปเส้นหัวหมากค่ะ

กลับมาที่วิวฝั่งโครงการ ฝั่งนี้เป็นเส้นที่จะไปบางนาค่ะ

ลงสะพานลอย

เดินมาหน่อยเดียวตรงปากซอยศรีนครินทร์ 17 จะเจอร้านอาหารตามสั่ง เน้นเมนูอาหารป่า

ภาพจากรางรถไฟระบบรางขนานกันกับรางรถไฟฟ้า Airport Link เชื่อมการคมนาคม 2 แบบ
และอยู่ใกล้โครงการทั้งคู่เลยค่ะ

ข้ามรางรถไฟจะเห็นวินมอเตอร์ไซค์ตรงนี้อีก ทำงานมาเหนื่อยๆ เดินไม่ไหวก็เรียกใช้บริการพี่ๆ เค้าได้นะคะ

มีบริการ Taxi ใต้สถานี Airport Link ด้วยค่ะ

ศูนย์รวมการเดินทางก็ว่าได้ จะไปไหนโซนใกล้ๆ มีทั้งรถสองแถว รถตู้ คอยให้บริการทุกวันค่ะ
บรรยากาศด้านหน้าโครงการ (หากเลี้ยวขวาออกจากโครงการ)

ถ้าเดินออกมาทางขวามือของโครงการ

รั้วสีน้ำเงินที่เห็นเป็นของบริษัทมิตซูยะ

ตรงนี้เป็นปากซอยศรีนครินทร์ 16 และเป็นบริษัทพีเอสไอ โฮลดิ้ง หรือ ดาวเทียม PSI

ภายในซอยมีรถขายอาหารอยู่ 2-3 ร้านด้วยค่ะ
ตรงนี้เป็นแยกพัฒนาการ
ฝั่งตรงข้ามคือแมกซ์ แวลู สาขาศรีนครินทร์, McDonald's แบบ Drive-thru
แหล่งรวมร้านอาหาร และธนาคารต่างๆ ค่ะ 
เดี๋ยวเราจะเดินเลี้ยวไปตามลูกศร ไปดูกันว่ามีร้านขายอาหาร หรือมีอะไรน่าสนใจอีกบ้าง

ร้านแรกขายอาหารตามสั่ง

ต่อมาก็เป็นร้านขายก๋วยเตี๋ยวเป็ดตุ๋นยาจีน

และก๋วยจั๊บรสเด็ด ในระยะทางใกล้ๆ รอบๆ โครงการมีร้านขายอาหารหลากหลายใช้ได้ค่ะ
ทั้งข้าว ทั้งก๋วยเตี๋ยว รวมถึง fast food ให้ได้เห็นตลอดทางเดินเลย
รูปแบบตึก และตัวโครงการโดยรวม

โมเดลโครงการมุมมองจากทิศตะวันออก ติดถนนศรีนครินทร์ โดยตัวอาคารจะอยู่ห่างจากถนนใหญ่เข้ามา 110 เมตร

โมเดลโครงการมุมมองจากทิศใต้ ติดกับอาคารสำนักงาน และพื้นที่ว่าง

โมเดลโครงการมุมมองจากทางฝั่งทิศตะวันตก ติดกับอาคารพักอาศัยสูง 2 ชั้น

โมเดลโครงการมุมมองจากทางฝั่งทิศเหนือ ติดกับร้านขายต้นไม้ และอาคารพักอาศัยสูง 2 ชั้น

Master Plan ของชั้น G ซึ่งชั้นนี้จะมีในส่วนของ Lobby, ลานจดรถ, ห้องจดหมาย,
สวนสาธารณะสไตล์พิกเซล และศาลานั่งพักผ่อน

Master Plan ชั้น 2 - ชั้น 6 จะเป็นส่วนของพื้นที่จอดรถทั้งหมดค่ะ

Master Plan ชั้น 7 เป็นส่วนของ Facility ของโครงการประกอบด้วย สระว่ายน้ำสำหรับเด็ก, Deck,
สวนหย่อม, ห้องอ่านหนังสือ และส่วนของห้องพักอาศัยอีกจำนวน 19 ยูนิต

Master Plan ชั้น 8 ก็เป็นส่วนของห้องพักอาศัยเหมือนกัน แต่ชั้นนี้มีจำนวนห้องอยู่ที่ 20 ยูนิต

Master Plan ตั้งแต่ชั้น 9-20 จะมีห้องพักอาศัยจำนวน 23 ยูนิต/ชั้น

Master Plan ชั้น 21-29 ก็ยังคงเป็นส่วนของห้องพักอาศัย แต่จำนวนห้องจะมีแค่ 22 ยูนิต/ชั้น

Master Plan ชั้น 30 จะประกอบด้วย สวนหย่อม และส่วนของห้องพักอาศัยอีกจำนวน 9 ยูนิต
ซึ่งชั้นนี้จะมีห้องพักขนาดใหญ่ แบบ Duplex และ Penthouse รวมอยู่ด้วย

Master Plan ชั้น 31 จะเป็นส่วนของห้องพักอาศัยขนาดใหญ่อย่าง 2 ห้องนอน และ Penthouse
ซึ่งชั้นนี้มีจำนวนห้องพักเพียง 9 ยูนิตเท่านั้น

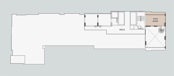
Master Plan ชั้น 32 หรือชั้นดาดฟ้าจะเป็นส่วนของ Facility หลักของโครงการ ซึ่งประกอบด้วย
สระว่ายน้ำ, ตู้ล็อคเกอร์, ห้องซาวน่า, ห้องฟิตเนส, Sky Lounge และพื้นที่สวนสีเขียว

Master Plan ชั้น 32 M เป็นส่วนของห้องโยคะ ที่ยกลอยอยู่เหนือห้องฟิตเนสของชั้น 32 อีกที
ซึ่งชั้นนี้จะมีแค่ห้องโยคะเท่านั้น โดยทางขึ้นจะเป็นบันไดวนที่อยู่ระหว่างห้องฟิตเนส กับ Sky Lounge
ส่วนกลางและสิ่งอำนวยความสะดวก

โมเดลจำลองตำแหน่งของ Facility ของชั้น 7, ชั้น 30 และชั้น 32 ของทางโครงการ
ในส่วนของสิ่งอำนวยความสะดวกทาง Than Living จัดมาให้ลูกบ้านอย่างเต็มที่ โดยจะอยู่ที่บริเวณชั้น Ground, ชั้น 7, ชั้น 30 และชั้น 32 ซึ่งส่วนกลางหลักๆ จะอยู่ที่ชั้น 32 เป็น Facility สำหรับผู้ใหญ่ ส่วนสำหรับเด็กจะอยู่ที่บริเวณชั้น 7 โดยสิ่งที่ทางโครงการให้มาประกอบด้วย
Facility ชั้น 7
- สระว่ายน้ำสำหรับเด็ก ยาว 9.50 x กว้าง 3.60 เมตร x ลึก 0.60 เมตร
- Deck พร้อมเตียง Daybed
- ห้องสมุด พร้อมแอร์เย็นฉ่ำ สำหรับคุณพ่อคุณแม่ที่มาคอยดูลูกๆ ไม่ต้องนั่งร้อนๆ ด้านนอก
- สวนสาธารณะ

โมเดลจำลองตำแหน่ง Facility ของชั้น 7 ซึ่งอยู่ทางทิศใต้ของอาคาร
Facility ชั้น 32
- สระว่ายน้ำสำหรับผู้ใหญ่ระบบเกลือแบบ Infinity Edge Pool ยาว 23.50 x กว้าง 5.50 เมตร x ลึก 1.20 เมตร.
- ตู้ล็อคเกอร์
- ห้องซาวน่า
- Sky Lounge
- ห้องฟิตเนสพร้อมอุปกรณ์
- ห้องโยคะ (อยู่ชั้นลอยของฟิตเนสอีกที)
- สวนสาธารณะ

โมเดลจำลองตำแหน่งของ Sky Lounge, ห้องฟิตเนส และห้องโยคะ บนชั้น 32
นอกจากนี้ยังมียังมีสิ่งอำนวยความสะดวกอื่นๆ ที่ทางโครงการให้ลูกบ้านมาอีก ไม่ว่าจะเป็น
- ที่จอดรถชั้น 2-6 และส่วนของชั้น G รอบๆ อาคารด้วย รวมทั้งหมด 310 คัน หรือประมาณ 58% (รวมจอดซ้อนคัน)
- สวนสาธารณะและศาลานั่งพัก ในคอนเซปต์ Pixel ที่ตกแต่งสไตล์ Boutique Contemporary สำหรับให้ลูกบ้านมานั่งพักผ่อน
- โถงต้อนรับแบบ Double Volume
- ลิฟต์โดยสารแบบล็อคชั้น จำนวน 4 ตัว และลิฟต์บริการ 1 ตัว
- Access Card Control คีย์การ์ดเข้าห้องพัก
- กล้อง CCTV ทั่วโครงการ
- พนักงานรักษาความปลอดภัยตลอด 24 ชั่วโมง
โมเดลจำลองตำแหน่งสวนบนชั้น 30 ซึ่งทุกคนสามารถใช้ได้ แต่สำหรับผู้ที่ไม่ได้อยู่ที่ชั้น 30 จะต้องไปลงลิฟต์ที่ชั้น 32 และเดินลงบันไดมาที่ชั้น 30 ซึ่งประตูทางออกจะอยู่ใกล้ๆ กับบันไดหนีไฟ ส่วนคนที่อยู่ชั้น 30 ก็สะดวกหน่อยตรงที่สามารถเดินออกมาทางประตูใหญ่ได้เลย

โมเดลจำลองตำแหน่ง ป้อมยาม และ Lobby บริเวณชั้น G โดยจุด Drop off มีขนาด 12 x 14 เมตร จะอยู่ด้านหน้า Lobby

โมเดลจำลองตำแหน่งทางขึ้นลานจอดรถไปยังชั้น 2-6 ซึ่งอยู่ถัดจาก Lobby ไปนิดเดียว

โมเดลด้านหลังฝั่งทิศตะวันตกของอาคาร จะเป็นตำแหน่งของสวนสาธารณะ ศาลานั่งพัก และพื้นที่จอดรถ
ภาพห้องตัวอย่างและ Lay out
ห้องในโครงการมีระดับความสูงของพื้นถึงฝ้าเพดานอยู่ที่ 2.7 เมตร ซึ่งช่วยทำให้ห้องดูโล่งโปร่งสบาย และห้องครัวแบบปิดที่กันด้วยกระจกใสทรงสูง
โครงการ Than Living ขายห้องแบบ Fully Furnished คือมีเฟอร์นิเจอร์ให้ครบ ยกเว้นเครื่องใช้ไฟฟ้า และวอลล์เปเปอร์ โดยส่วนที่ให้มาก็จะมี ตู้เสื้อผ้า, เตียง, โซฟา, ชั้นวางทีวี, ชุดเครื่องครัวแบบ Built-in และเครื่องปรับอากาศ นอกนั้นที่เห็นในห้องตัวอย่างเป็นเพียงของตกแต่งที่ทางโครงการแต่งมาให้ดูเป็นไอเดียเท่านั้นนะคะ
- ห้องแบบ 1 ห้องนอน (1 ห้องนอน, 1 ห้องน้ำ, 1 ห้องครัว) - เนื้อที่ 24 - 32 ตร.ม.
คลิกเพื่อชมตัวอย่างแปลนห้อง ขนาด 26, ขนาด 32 ตร.ม. - ห้องแบบ 2 ห้องนอน (2 ห้องนอน, 2 ห้องน้ำ, 1 ห้องครัว) - เนื้อที่ 48 - 67 ตร.ม
คลิกเพื่อชมตัวอย่างแปลนห้อง ขนาด 48, ขนาด 52, ขนาด 55, ขนาด 67 ตร.ม. - ห้องแบบ Duplex (3 ห้องนอน, 3 ห้องน้ำ, 1 ห้องครัว) - เนื้อที่ ขนาด 97 ตร.ม.
คลิกเพื่อชมตัวอย่างแปลนห้อง ขนาด 97 ตร.ม. - ห้องแบบ Penthouse (3 ห้องนอน, 3 ห้องน้ำ, 1 ห้องครัว) - เนื้อที่ ขนาด 97 - 123 ตร.ม.
คลิกเพื่อชมตัวอย่างแปลนห้อง ขนาด 97 ตร.ม.
1) ภาพห้องตัวอย่างแบบ 2 ห้องนอน ขนาด 55 ตร.ม.
จุดเด่นอีกอย่างหนึ่งห้องนี้นอกจากความสูงจากพื้นถึงเพดานที่สูงถึง 2.7 เมตร คือระเบียงแบบ Semi Outdoor ของห้อง Living Room นอกจากนี้โครงการยังให้เครื่องปรับอากาศมาอีก 3 ตัวด้วย ซึ่งติดไว้ที่ห้องนั่งเล่น 1 ตัว และห้องนอน 2 ตัว

Layout ห้องแบบ 2 ห้องนอน ขนาด 55 ตร.ม.

เข้ามาด้านซ้ายมือจะเป็นห้องครัว และด้านขวาจะเป็นส่วนของห้องน้ำ
Floor to Ceiling สูง 2.7 เมตร พื้นห้องเป็นลามิเนตหนา 8 มม. ผนังฉาบเรียบสีขาว 
ในส่วนของครัว เป็นครัวแบบปิดกั้นเป็นสัดส่วนด้วยประตูกระจกกรอบอลูมิเนียม เพาเดอร์โค้ท สีขาว 3 ตอน
สามารถเปิดได้สุดเพิ่มความกว้างในการใช้งานได้มากกว่าประตูแบบ 2 ตอน
นอกจากนี้ยังให้ความรู้สึกโปร่งโล่ง และยังช่วยป้องกันกลิ่นที่จะกระจายไปด้านนอกได้อีกด้วย

เข้ามาดูภายในห้องครัวกันค่ะ วัสดุหน้า Top เป็นหินแกรนิต พร้อมชั้นวางของ ตามแบบนี้เลยค่ะ (ยกเว้นเครื่องใช้ไฟฟ้า)
พื้นเป็นแกรนิตโต้ ขนาด 60x60 ซม. สะดวกในการเช็ดล้างทำความสะอาด
ส่วนตู้ไฟทำตู้ปิดไว้ให้ด้วย

ชั้นวางของและตู้เก็บของปิดผิวด้วยเมลามีน เป็นบานพับแบบปกติ ไม่ใช่ Soft close เปิดออกมาจะเป็นแบบนี้ค่ะ

เตาไฟฟ้าที่ได้แบบ 4 หัว เครื่องดูดควันของ SIERRA ซึ่งเป็นระบบดูดกลิ่นออกไประบบท่อด้านนอก
ไม่ใช่ระบบหมุนเวียนแบบทั่วๆ ไป หมดปัญหาเรื่องกลิ่นในการทำกับข้าว

ได้อ่างล้างจานสแตนเลส 1 หลุม แบบไม่มีทีพักจานของ Sierra

โต๊ะทานข้าวแบบ 4 ที่นั่งตามนี้ และยังมีพื้นที่เหลือให้ขยับเก้าอี้ได้อีกเยอะเลยค่ะ หรือจะหาเก้าอี้มาเสริมนั่งอีกตัวก็ยังได้
และเหนือโต๊ะทานข้าวจะมีแอร์ Samsung มาให้อีก 1 ตัว ใช่ร่วมกันระหว่างมุมทานข้าวกับส่วนของ Living room

ฝั่งตรงข้ามกับโต๊ะทานข้าวจะเป็นส่วนของ Living room

Living room ของจริงจะได้โซฟาแบบ 2 ที่นั่ง พร้อมชั้นวางทีวี และไฟดาวน์ไลท์ดวงใหญ่ 2 ดวง
ส่วนโต๊ะกลาง และไฟดาวน์ไลท์ดวงเล็กๆ ที่ส่องรูปไม่ได้นะคะ

ประตูระเบียงเป็นประตูกระจกบานสไลด์แบบ 4 บาน กรอบอลูมิเนียม สีขาว สูงจากพื้นถึงฝ้า

จุดเด่นอีกอย่างของห้องนี้คือ ระเบียงห้องที่เป็นแบบ Semi outdoor สามารถมาใช้ประโยชน์ตรงระเบียงได้เต็มที่
ขยายพื้นที่พักผ่อนออกมา หรือจะใช้รับรองเพื่อนหรือแขกก็ยังได้

ด้านนอกระเบียงจะมีท่อ Floor Drain กับก๊อกน้ำให้ เผื่อไว้ใช้ทำความสะอาดระเบียง
แต่จุดวางเครื่องซักผ้าจะไม่มี เพราะอยากให้ลูกค้าใช้ส่วนนี้ในการพักผ่อนอย่างเต็มที่มากกว่า

ส่วนตำแหน่งของเครื่องซักผ้าจะอยู่ระหว่างห้องน้ำกับห้องนอนเล็ก โดยทางโครงการได้เดินระบบท่อน้ำดี-น้ำทิ้งไว้
แต่ไม่ได้ให้ตู้มานะคะ ของจริงจะเป็นเพียงพื้นที่โล่งๆ ที่เห็นแค่ตกแต่งให้ดูเป็นไอเดียเท่านั้น

ขยับมาดูในห้องนอนเล็กกันค่ะ เข้ามาด้านขวาเป็นตู้เสื้อผ้าบานเปิด 2 บาน ด้านนึงเป็นกระจก อีกด้านเป็นบานทึบสูงถึงฝ้า
มีที่เก็บของด้านบน แต่จะได้เป็นแบบลอยตัวนะคะ ไม่ได้ Built-in มาให้ พร้อมไฟดาวน์ไลท์บนฝ้า 2 จุด

ถัดมาจะเป็นส่วนของเตียง ความสูงของตัวเตียงประมาณเท่าฟูกค่ะ (Head board แบบบุนวมไม่ได้)
เว้นไว้ให้ลูกค้าออกแบบได้เอง นอกนั้นเป็นของตกแต่ง และเนื่องจากพื้นที่ห้องค่อนข้างจำกัด
จึงอาจเหมาะสำหรับวางเตียงแบบ 3.5 ฟุต

หน้าต่างห้องนอนแบบบานกระทุ้ง+บานติดตาย ความสูงเกือบถึงฝ้า ทำให้ห้องดูโปร่งมากขึ้น

ย้ายมาดูในส่วนของห้องนอนใหญ่กันบ้าง ที่ทางโครงการให้มาจะมีเฉพาะตู้เสื้อผ้ากับเตียง
ส่วนโต๊ะหัวเตียงทางด้านข้าง และชั้นวางทีวีไม่ได้ให้นะคะ

ปลายเตียงเป็นตำแหน่งของชั้นวางทีวี หรือจะติดทีวีเป็นแบบแขวนผนังก็ได้ค่ะ
เพื่อที่จะได้เหลือพื้นที่ทางเดินบริเวณปลายเตียงมากขึ้น

งานสวิตช์ไฟ และปลั๊กไฟของโครงการทุกห้องจะเป็นสีเมทัลลิก ดูหรูดีทีเดียวค่ะ

ออกมาดูระเบียงกันค่ะ ความสูงของราวระเบียงของโครงการนี้อยู่ที่ 1.10 เมตร ทำจากเหล็ก พื้นปูด้วยกระเบื้องแกรนิตโต้ขนาด 30x30 ซม. มีคอมเพรสเซอร์แอร์ 3 ตัว อยู่ด้านขวามือ พร้อม Grill ปิดมาให้เรียบร้อย เป่าลมออกมาทางระเบียง

ส่วนทางซ้ายทางโครงการจัดมาให้ดูเป็นมุมนั่งเล่น แต่หากใช้งานจริงมุมนี้อาจไม่เหมาะกับการมานั่งพักผ่อนเท่าไหร่
เพราะจะได้รับลมร้อนจากคอมเพรสเซอร์แอร์ที่เป่าออกมา น่าจะเหมาะที่จะเป็นระเบียงใช้งาน
หรือไว้สำหรับตากผ้ามากกว่า ส่วนบนเพดานมีไฟดาวน์ไลท์มาให้ 1 ดวง

ย้ายกลับเข้ามาดูในส่วนของห้องน้ำกันบ้างค่ะ ห้องจริงจะมีประตูห้องน้ำมาให้ด้วยนะคะ
ระหว่างพื้นห้องน้ำกับพื้นห้องนอนจะมีธรณีประตูสูงประมาณ 5 ซม. มาให้นะคะ

หน้าห้องน้ำจะเป็นตำแหน่งของตู้เสื้อผ้าอยู่ทางซ้ายมือ ซึ่งเป็นตู้แบบเดียวกันกับห้องนอนเล็กค่ะ
ส่วนตู้ทางด้านขวาไม่ได้ให้นะคะ แค่แต่งมาให้เป็นไอเดียเท่านั้น

เข้ามาดูในห้องน้ำกันค่ะ พื้นห้องน้ำเป็นกระเบื้องแกรนิตโต้ ขนาด 60x60 ซม. ได้ส่วนของอ่างล้างหน้าพร้อมตู้ด้านล่าง
ส่วนด้านขวาเป็นพื้นที่อาบน้ำพร้อมกระจกนิรภัย ไม่มีเครื่องทำน้ำอุ่นให้นะคะ แต่โครงการทำจุดต่อมาให้
และ
มีหน้าต่างบานกระทุ้งช่วยระบายอากาศและรับแสงมาให้ด้วย 
ส่วนสุขภัณฑ์ภายในห้องน้ำที่ให้มาเป็นยี่ห้อ Sierra เหมือนกันหมดทุกห้องค่ะ
ไม่ว่าจะเป็นชักโครก สายชำระ และฝักบัวก้านแข็ง

ส่วนห้องน้ำที่อยู่ตรงข้ามกับครัว ก็มีส่วนอาบน้ำ และสุขภัณฑ์ของ Sierra เหมือนกันค่ะ
2) ภาพห้องตัวอย่างแบบ 1 ห้องนอน ขนาด 32 ตร.ม.

Layout ห้องแบบ 1 ห้องนอน ขนาด 32 ตร.ม.

ความสูงจากพื้นถึงเพดาน 2.7 เมตร พื้นลามิเนตหนา 8 มม. ได้แอร์ 2 ตัว (ห้องนอน 1 ตัว และห้องนั่งเล่น 1 ตัว)
ผนังเป็นฉาบเรียบทาสีขาว ส่วนรายการ Built-in ต่างๆ ไม่ได้ให้มานะคะ

เข้ามาด้านในห้องจะเจอส่วนของ Living room โดยจะได้ชั้นวางทีวี ตามแบบนี้เลยค่ะ
เหนือชั้นวางทีวีจะเป็นแอร์ Samsung ที่ทางโครงการติดตั้งมาให้

และฝั่งตรงข้ามชั้นวางทีวีจะเป็นมุมรับแขก ที่เชื่อมต่อกับส่วนของห้องครัว โดยจะได้โซฟาขนาด 2 ที่นั่ง
สีและแบบตามนี้ ส่วนโต๊ะกลางไม่ได้ให้นะคะ

ห้องครัวกั้นเป็นสัดส่วนด้วยประตูกระจกบานสไลด์ กรอบอลูมิเนียม Power coat สีขาวแบบ 2 ตอน ความสูงจากพื้นถึงฝ้า

ภายในห้องครัวได้ตามนี้ ประกอบด้วยโต๊ะทานข้าวแบบ 2 ที่นั่ง เคาน์เตอร์ครัว Built-in และพื้นที่วางตู้เย็นที่อยู่ด้านขวา
ติดกับระเบียง ปูพื้นด้วยกระเบื้องแกรนิตโต้ สีเทา ขนาด 60x60 ซม. ที่ไม่ได้ก็แค่ตู้เย็น ไม่โครเวฟ
และปิดผิวด้านบนที่เป็นเพียงฉาบเรียบสีขาวเท่านั้น

ชุดครัวเหมือนกันกับแบบ 2 ห้องนอนเลยค่ะ ต่างกันตรงจำนวนตู้เก็บของด้านบนที่น้อยกว่านิดหน่อย

เตาไฟฟ้าห้องนี้เป็นแบบ 2 หัว อ่างล้างจาน 1 หลุม และพื้นที่เก็บของด้านล่าง เปิดออกมาหน้าตาเป็นแบบนี้

เครื่องดูควันของ Sierra ระบบดูดกลิ่นออกไประบบท่อด้านนอกเหมือนกัน

หน้าตาโต๊ะทานข้าวแบบ 2 ที่นั่ง ที่ตั้งอยู่ในครัว ข้อดีคือเวลาทำอาหาร สามารถใช้โต๊ะนี้เป็นพื้นที่ในการเตรียมอาหารได้
แต่ในทางกลับกันหากต้องใช้พื้นที่นี้พร้อมกันทั้งทำครัวด้วยแล้วก็มีคนมานั่งทานข้าวด้วย ก็คงไม่ค่อยสะดวกเท่าที่ควร

ห้องแบบ 1 ห้องนอนจะวางตำแหน่งเครื่องซักผ้าให้อยู่ที่ระเบียงทุกห้อง พร้อมต่อท่อน้ำดี-น้ำเสียมาให้เรียบร้อย
ส่วนราวระเบียงสูงก็ 1.10 เมตร เหมือนกัน

ย้ายไปดูส่วนของห้องนอนกันบ้างดีกว่า ซึ่งห้องนอนของ Type นี้จะกั้นเป็นประตูทึบค่ะ

เดินเข้าประตูห้องนอนมาจะเจอกับตู้เสื้อผ้าบานเปิด 2 บาน อยู่ทางขวามือ

ถัดมาเป็นเตียงนอนขนาด 5 ฟุต ซึ่งห้องนอนของนี้จะค่อนข้างใหญ่หน่อยค่ะ

ปลายเตียงเป็นพื้นที่สำหรับวางชั้นวางทีวี (ของตกแต่ง) และเครื่องปรับอากาศที่ทางโครงการติดมาให้

บริเวณปลายเตียงพอมีพื้นที่ให้เดินประมาณนี้

พื้นที่ข้างเตียงยังพอเหลือพื้นที่สำหรับวางโต๊ะข้างเตียงขนาดกะทัดรัดได้ด้วย

กระจกเป็นบานกระทุ้ง และบานติดตาย ความสูงเกือบถึงฝ้า

ภาพจากอีกมุมหนึ่งของห้องนอน

เราออกมาดูห้องน้ำกันค่ะ ห้องน้ำจะอยู่ติดกับส่วนของห้องนอน

ถ้าเปิดประตูห้องน้ำเข้าไปจะเจอกับอ่างล้างหน้าและชั้นเก็บของด้านล่าง ถัดมาจะเป็นโถสุขภัณฑ์ และพื้นที่อาบน้ำ

โดยกั้นระหว่างส่วนแห้งและส่วนเปียก พร้อมราวแขวนผ้ามาให้ด้วย
3) ภาพห้องตัวอย่างแบบ 1 ห้องนอน ขนาด 26 ตร.ม.

Layout ห้องแบบ 1 ห้องนอน ขนาด 26 ตร.ม.

ความสูงจากพื้นถึงเพดาน 2.7 เมตร พื้นลามิเนตหนา 8 มม. ได้แอร์ 2 ตัว (ห้องนอน 1 ตัว และห้องนั่งเล่น 1 ตัว)
ผนังเป็นฉาบเรียบทาสีขาว เหมือน 2 ห้องที่ผ่านมา

จากประตูเข้ามาด้านซ้ายเป็นตำแหน่งของชั้นวางทีวี และเครื่องปรับอากาศ Samsung ที่ทางโครงการให้มา

ส่วนฝั่งตรงข้ามชั้นวางทีวีจะเป็นโซฟา ขนาด 2 ที่นั่ง (ไม่ได้โต๊ะกลาง)

ห้อง Living room จะเชื่อมต่อกับห้องนอน โดยกั้นด้วยกระจกบานสไลด์แบบ 2 บาน สูง 2.7 เมตร
(สูงจากพื้นจนถึงฝ้าเลย) แต่เปิดได้เพียงฝั่งเดียว อีกฝั่งเป็นบานติดตาย

เข้ามาดูในส่วนของห้องนอนกันค่ะ เฟอร์นิเจอร์ที่ได้จะมีเตียง และตู้เสื้อผ้า และแอร์ นอกนั้นเป็นเพียงของตกแต่งนะคะ

เตียงที่ได้ขนาด 5 ฟุต ความสูงของตัวเตียงประมาณเท่าฟูก ไม่ได้ Head board

ฝั่งปลายเตียงจะเป็นตู้เสื้อผ้าแบบ 2 บาน และเครื่องปรับอากาศ

พื้นที่ข้างเตียงสามารถวางโต๊ะเล็กได้ 1 ตัว

หน้าต่างห้องแบบบานติดตาย และบานกระทุ้ง

เดี๋ยวเราเข้าไปดูส่วนของห้องครัวกันค่ะ

ห้องครัวกั้นด้วยประตูกระจกบานสไลด์ สามารถเปิดได้จนสุด ช่วยป้องกันกลิ่นออกไปด้านนอก

ติดกับประตูจะเป็นโต๊ะทานข้าวแบบ 2 ที่นั่ง เวลาใช้งานจริงจะต้องขยับเก้าอี้ออกมาอีก
ซึ่งก็จะไปบังทางเดินเข้าออกของประตูอยู่พอสมควร

ตรงข้ามกับโต๊ะทานข้าวจะเป็นส่วนของเคาน์เตอร์ครัว และพื้นที่วางตู้เย็น

หน้าตาเคาน์เตอร์ครัวและวัสดุที่ได้เหมือนกัน ต่างกันตรงชั้นวางของด้านบนนิดหน่อย

ส่วนสิ่งที่ได้ก็มี เตาไฟฟ้าแบบ 2 หัว อ่างล้างจาน 1 หลุม และเครื่องดูดควัน

ประตูระเบียงเป็นกระจกบานสไลด์ 2 บาน กรอบอลูมิเนียม ช่วยเปิดระบายกลิ่นเวลาที่ทำอาหารได้ด้วย

ด้านนอกเป็นระเบียงใช้งานสำหรับวางเครื่องซักผ้า พร้อมต่อท่อน้ำดี-น้ำเสียให้เรียบร้อย

บนเพดานได้ไฟโคมมาให้ด้วย 1 ดวง

ย้ายกลับเข้าไปดูห้องน้ำกันบ้าง

ภายในห้องน้ำได้สุขภัณฑ์เหมือนกันกับ 2 ห้องที่แล้วเลยค่ะ
ราคาและค่าใช้จ่ายที่เกี่ยวข้องโดยประมาณ (26 มี.ค. 58)
ตัวอย่างราคาห้อง - ห้องแบบ 1 ห้องนอน
ขนาด 24 - 32 ตร.ม. ราคาเริ่มต้นประมาณ 2.19 - 3.2 ล้านบาท - ห้องแบบ 2 ห้องนอน
ขนาด 48 - 67 ตร.ม. ราคาเริ่มต้นประมาณ 4.2 - 5.9 ล้านบาท - ห้อง Penthouse
ขนาด 97 - 123 ตร.ม. ราคาเริ่มต้นประมาณ 10.1 - 13.2 ล้านบาท
ค่าส่วนกลาง: 50 บาท/ตร.ม./เดือน (ชำระล่วงหน้า 1 ปี) ผู้ซื้อเป็นผู้ชำระ
เงินกองทุนแรกเข้า: 500 บาท/ตร.ม. (เก็บครั้งเดียว) ผู้ซื้อเป็นผู้ชำระ
ค่าธรรมเนียมการโอนกรรมสิทธิ์: ผู้ซื้อและผู้ขายแบ่งชำระกันคนละครึ่ง
ค่าภาษีธุรกิจเฉพาะ, อากรสแตมป์และภาษีเงินได้หัก ณ ที่จ่าย ผู้ขายเป็นผู้ชำระเองทั้งสิ้น
ค่ามิเตอร์ไฟฟ้า: ผู้จะซื้อเป็นผู้ชำระ
ค่าเงินประกันมิเตอร์น้ำ: ผู้จะซื้อเป็นผู้ชำระ
- การเดินทางเข้าออกโครงการ - การเดินทางเข้าออกโครงการนั้นถือว่าสะดวกค่ะ มีทางเลือกในการเดินทางค่อนข้างหลากหลาย เช่น รถไฟฟ้า Airport Link สถานีหัวหมาก (อยู่ห่างจากโครงการ 600 ม.) เชื่อมต่อกับรถไฟฟ้า MRT ได้ที่สถานีเพชบุรี และเชื่อมต่อกับรถไฟฟ้า BTS ที่สถานีพญาไท หากเป็นการเดินทางโดยสารด้วยรถสาธารณะอื่นๆ เช่น รถตู้ และรถสองแถว ก็มีผ่านด้านหน้าโครงการอยู่หลายสาย หากเป็นการเดินทางด้วยรถยนต์ส่วนตัว โครงการก็อยู่ใกล้กับทางด่วน, วงแหวนรอบนอกฝั่งตะวันออก และมอเตอร์เวย์ โดยรวมแล้วการเดินทางเข้าออกโครงการถือว่าดีค่ะ มีทางเลือกในการเดินทางที่หลากหลาย
- ทำเลรอบโครงการ - สำหรับโครงการนี้ตั้งอยู่บนถนนศรีนครินทร์ฝั่งขาเข้าที่จะมุ่งหน้าไปเส้นพระราม 9 หรือบางกะปิ หากเดินทางด้วยรถยนต์ส่วนตัว ก็ไม่ได้ยุ่งยากหากจะต้องวนรถกลับเข้าโครงการ เพราะมีจุดกลับรถอยู่ไม่ไกลจากตัวโครงการเลยค่ะ และทำเลรอบๆ โครงการปัจจุบันก็ถือว่ายังไม่ได้มีร้านรวง หรือร้านค้าคึกคึกในระยะเดินได้มากนัก แต่ด้วยทำเลที่ใกล้รถไฟฟ้า ประกอบกับการเดินทางที่สะดวก คาดว่าพื้นที่บริเวณนี้ยังมีแนวโน้มที่จะเติบโตไปในทิศทางที่ดีได้ในอนาคต ทั้งที่ซื้อเพื่อเป็นที่อยู่อาศัย และซื้อเพื่อการลงทุน
- อาคารและตัวโครงการโดยรวม - เป็นอาคาร High-Rise รูปตัว L สูง 32 ชั้น จำนวน 1 อาคาร ออกแบบทันสมัยในสไตล์ Modern Contemporary มีจำนวนยูนิตเพียง 530 ยูนิตเท่านั้น ตัวตึกหันหน้าเข้าฝั่งทิศตะวันออก ดังนั้นห้องขนาด 2 ห้องนอนด้านนี้จึงรับแดดตอนเช้าค่อนข้างเยอะหน่อย โดยห้องพักอาศัยจะเริ่มตั้งแต่ชั้นที่ 7 เป็นต้นไป ส่วนชั้นที่ 2-6 จะเป็นพื้นที่จอดรถ Facility ของที่นี่ให้ลูกบ้านมาแบบจัดเต็ม โดยแยกส่วนของเด็ก และผู้ใหญ่ออกจากกัน ชั้น 7 เป็นส่วนของสระว่ายน้ำเด็ก และห้องสมุด, ชั้น 30 เป็นส่วนหย่อม แต่ Facility หลักๆ จะอยู่บนดาดฟ้าชั้น 32 ประกอบด้วย สระว่ายน้ำ, ฟิตเนส, ซาวน่า, ห้องโยคะ, Sky Lounge และสวนหย่อม ส่วนลิฟต์ของที่นี่แบ่งเป็นลิฟต์โดยสารแบบล็อคชั้น 4 ตัว และลิฟต์บริการอีก 1 ตัว อัตราส่วนการใช้ลิฟต์เฉลี่ยอยู่ที่ประมาณ 132 ยูนิตต่อลิฟต์ 1 ตัว ซึ่งถือว่าไม่หนาแน่นมาก ส่วนปริมาณที่จอดรถก็ให้มาอยู่ที่ 308 คัน หรือประมาณ 58% ซึ่งก็ถือว่าพอใช้ได้ในระดับหนึ่ง แต่หากทุกยูนิตใช้รถยนต์กัน ก็อาจจะทำให้การจราจรแน่นหนา และที่จอดรถมีโอกาสที่จะไม่พอได้
- รูปแบบห้องและวัสดุ - ลักษณะห้องพักอาศัยแบ่งเป็น 4 Type หลักด้วยกัน ตั้งแต่ 1 ห้องนอน - Penthouse โดยจัดวางห้องขนาดใหญ่ไว้อยู่ด้านมุมๆ และชั้น 30-31 ของตึก ซึ่งโครงการบริเวณนี้ไม่ค่อยมีห้องขนาดใหญ่แบบนี้ โดยฟังก์ชันการจัดวางของห้องที่นี่ถือว่าออกแบบมาได้ดูไม่คับแคบ โดยจุดเด่นห้องของที่นี่อยู่ที่เพดานที่สูงถึง 2.7 เมตร และห้องครัวแบบปิดที่กั้นเป็นสัดส่วนด้วยกระจกใสทรงสูงจากพื้นจรดฝ้า รวมถึงประตูห้องครัวและประตูห้องนอนก็เป็นกระจกเช่นกัน ยิ่งทำให้ห้องดูโปร่งมากขึ้น และสำหรับห้องขนาด 2 ห้องนอน และแบบ Penthouse ก็ยังมีระเบียงแบบ Semi-Outdoor มาให้ด้วย (แต่ไม่ได้ให้มาทุก Type นะคะ) ส่วนวัสดุโดยรวมที่ให้มาก็ถือว่าเป็นวัสดุคุณภาพใช้ได้ แต่มีติดอยู่นิดนึงตรงส่วนทานข้าวสำหรับของขนาดเล็กที่วางไว้ในห้องครัว เวลาที่ใช้งานจริงคงไม่ค่อยสะดวกไหร่ เนื่องจากพื้นที่ครัวค่อนข้างจำกัด
- ราคา - ราคาเฉลี่ยณ วัน pre-sale ของโครงการนี้เริ่มต้นอยู่ที่ 86,000 บาท/ตารางเมตร สำหรับห้องแบบ Fully Furnished บวกกับสิ่งอำนวยความสะดวกที่โครงการให้มา ซึ่งถือว่าเป็น Range ราคาที่พอรับได้อยู่ เพราะทำเลตรงนี้ก็เป็นทำเลที่อยู่ติดถนนใหญ่ และก็ไม่ไกลจาก Airport Link มากนัก โดยโครงการนี้น่าจะเป็นตัวเลือกที่น่าสนใจสำหรับกลุ่มคนวัยทำงานที่มีอายุประมาณ 30 ปีขึ้นไปที่มีรายได้ประมาณ 50,000 ขึ้นไป หรือผู้ที่ใช้ Airport Link ในการเดินทางเป็นประจำ รวมถึงกลุ่มคนที่ทำงานย่านสนามบินสุวรรณภูมิด้วย เพราะถือว่าเดินทางสะดวกไปสนามบินได้ไม่ยากเลย
สถานะปัจจุบันของโครงการ (26 มี.ค 58)
โครงการ แดน ลิฟวิ่ง พระราม 9 - แอร์พอร์ต ลิงก์ เริ่มเปิด Pre-sales อย่างเป็นทางการไปเมื่อวันที่ 14-15 มีนาคม 2558 ที่ผ่านมา โดยปัจจุบันเปิดขายได้ไม่นานก็มียอดขายไปแล้วประมาณ 60% คาดว่าจะเริ่มก่อสร้างประมาณเดือน มิถุนายน 2558 นี้ และคาดว่าจะสร้างแล้วเสร็จประมาณเดือน มีนาคม 2561
ติดต่อโครงการ โทร. 02-322-2488 และ 095-525-4552 หรืออ่านรายละเอียดโครงการเพิ่มเติมได้ที่
www.siralai.com