-
รีวิว-เยี่ยมชม โนเบิล รีโคล สุขุมวิท 19 (Noble Recole Sukhumvit19)
25 ก.ย. 57 11,314
เยี่ยมชม โนเบิล รีโคล สุขุมวิท 19 (Noble Recole Sukhumvit 19)หลังจากขายหมดภายในวันเดียวกับโครงการ Noble Revo Silom เมื่อปลายปีที่แล้ว โนเบิล ก็เปิดตัวคอนโดโครงการใหม่ของปีนี้ กับ โนเบิล รีโคล สุขุมวิท 19 คอนโดมิเนียมในทำเลใกล้ Interchange Station บนโลเคชั่นที่ดีที่สุด เชื่อมต่อทั้ง BTS อโศก และ MRT สุขุมวิท เข้าถึงทุกไลฟ์สไตล์การใช้ชีวิตแบบไร้ข้อจำกัดของการค้นพบสิ่งใหม่ๆ ใจกลางย่านธุรกิจ หรือ (CBD) อีกทั้งยังตอบโจทย์ความสะดวกสบายพร้อมรสนิยมของการอยู่อาศัย ภายใต้สโลแกน "Explore Limitlessly พบทุกสิ่ง...ที่ชีวิตต้องการ" วันนี้เช็คราคาจะพาไปดูทำเล รวมถึงเจาะลึกตัวอาคารและห้องตัวอย่างระดับพรีเมี่ยมของโครงการนี้กันค่ะ
ภาพบรรยากาศจำลองของโครงการ Noble Recoleข้อมูลโครงการโดยรวม- เจ้าของและผู้พัฒนาโครงการ: บริษัท คอนติเนนตัล ซิตี้ จำกัด (บริษัทลูกของ บมจ.โนเบิล ดีเวลลอปเมนท์ )
- ที่ตั้งโครงการ: ซอยสุขุมวิท 19 ถ.สุขุมวิท แขวงคลองตัน เขตวัฒนา กรุงเทพมหานคร
- อาคารชุดพักอาศัยสูง 28 ชั้น จำนวน 1 อาคาร รวม 288 ยูนิต
- ขนาดที่ดินทั้งโครงการ: 1-2-28 ไร่
- ลิฟต์โดยสาร 2 ตัว ลิฟต์บริการ 1 ตัว
- ห้องชุดมี 2 รูปแบบหลักๆ ได้แก่ แบบ 1 ห้องนอน และ แบบ 2 ห้องนอน
- ขนาดตั้งแต่ 34.53 - 69.72 ตร.ม.
- ที่จอดรถรวม 60% (ชั้นใต้ดิน 5 ชั้น)
- ราคาเริ่มต้น 5.1 ล้านบาท สําหรับห้องขนาด 34 ตร.ม. (ข้อมูล ณ 9 ก.ย. 57)
- สร้างเสร็จทั้งโครงการประมาณปลายปี 2561
- วันที่เข้าเยี่ยมชม-รีวิวคอนโด 10 ก.ย. 57
เจ้าของและผู้พัฒนาโครงการเจ้าของและผู้ดำเนินการพัฒนาโครงการนี้คือ บริษัท คอนติเนนตัล ซิตี้ จำกัด ซึ่งเป็นบริษัทลูกของ บริษัทโนเบิล ดีเวลลอปเมนท์ จำกัด (มหาชน) โดยบริษัท คอนติเนนตัล ซิตี้ จำกัดนี้ มีทุนจดทะเบียน และชำระเต็มแล้ว 3,000 ล้านบาท กลุ่มบริษัทโนเบิล ดีเวลลอปเมนท์เป็นกลุ่มบริษัทพัฒนาอสังหาริมทรัพย์ประเภทที่อยู่อาศัยครบวงจร ทั้งบ้านเดี่ยว อาคารชุดพักอาศัยทั้งแนวราบ และตึกสูง ทาวน์เฮ้าส์ และที่ดินจัดสรร จดทะเบียนก่อตั้งเมื่อวันที่ 19 กรกฎาคม 2534 และได้มีการพัฒนาโครงการที่อยู่อาศัยรวมทั้งสิ้นแล้วกว่า 40 โครงการ โดยโครงการคอนโดมิเนียมล่าสุดที่เปิดขายคือ Noble Revo Silom (เมื่อเดือนธันวาคมปี 2556) ซึ่งเป็นโครงการที่ขายดี และสามารถปิดการขายได้ภายในวันเดียวเท่านั้นทำเลที่ตั้งโครงการตั้งอยู่บนถนนสุขุมวิท ซอยสุขุมวิท 19 ใกล้รถไฟฟ้า BTS สถานีอโศก และ MRT สถานีสุขุมวิท แขวงคลองตัน เขตวัฒนา กรุงเทพมหานคร
ภาพแผนที่โครงการโนเบิล รีโคล สุขุมวิท 19
ภาพแผนที่โครงการแจกแจงให้เห็นระยะใกล้-ไกลของโครงการ กับสถานที่รอบๆ โครงการที่น่าสนใจ
พิกัดตาม Google map คือ 13.742167, 100.560083
รถไฟฟ้า MRT สถานีสุขุมวิท ฝั่งถนนอโศกมนตรี อยู่ห่างจากโครงการประมาณ 600 เมตร
รถไฟฟ้า BTS สถานีอโศก อยู่ห่างจากโครงการประมาณ 550 เมตร
ศูนย์การค้า TERMINAL 21 อยู่ห่างจากโครงการประมาณ 550 เมตร
ศูนย์การค้าโรบินสัน อยู่ห่างจากโครงการประมาณ 500 เมตร
โรงแรม Sheraton Grande Sukhumvit อยู่ห่างจากโครงการประมาณ 900 เมตร
โรงแรม The Landmark Bangkok อยู่ห่างจากโครงการประมาณ 1.4 กม.
โรงพยาบาลบำรุงราษฎร์ ซึ่งตั้งอยู่ในซอยนานา อยู่ห่างจากโครงการประมาณ 1.5 กม.
โรงเรียนนานาชาตินิสท์ ตั้งอยู่ท้ายซอยสุขุมวิท 15 อยู่ห่างจากโครงการประมาณ 1 กม.
มหาวิทยาลัยศรีนครินทรวิโรฒ อยู่ห่างจากโครงการประมาณ 1 กม.
และบริเวณใกล้ๆ มหาวิทยาลัยฯ ก็มีโรงเรียนสาธิตมหาวิทยาลัยศรีนครินทรวิโรฒ ตั้งอยู่ด้วยเช่นกัน
อาคาร GMM แกรมมีฝั่งถนนอโศกมนตรี
สำนักงานการท่องเที่ยวแห่งประเทศไทย ฝั่งถนนเพชรบุรี ห่างจากโครงการประมาณ 1.4 กม.
Health Land ในซอยสุขุมวิท 21/1 สำหรับนวดผ่อนคลายในวันสบายๆการเดินทางเข้า - ออกโครงการ1. เดินทางด้วยรถยนต์ส่วนตัวการเดินทางด้วยรถยนต์สามารถมาได้หลายเส้นทาง โดยมีเส้นทางหลักดังต่อไปนี้ค่ะเส้นทางที่ 1 - ขาเข้าโครงการ จากทางด่วนพิเศษเฉลิมมหานคร (ด่านสุขุมวิท)
เรามาดูการเดินทางโดยลงจากทางด่วนเฉลิมมหานครมุ่งหน้าสู่อโศกกันค่ะ
ลงจากทางด่วนเลี้ยวซ้ายมาจะเจอกับ Legacy express อยู่ทางด้านซ้ายมือ
ขับตรงมาไม่นานจะผ่านธนาคารกรุงไทย
ตรงไปเรื่อยๆ ตามถนนสุขุมวิทจะเจอแยกนานา
เลยแยกนานามาไม่ไกลก็จะเป็น BTS สถานีนานา บริเวณซอยสุขุมวิท 7
ตรงมาอีกจะเจอกับโรงแรม S15 บริเวณปากซอย สุขุมวิท 15
เลยมาอีกหน่อยจะเจอกับห้างโรบินสัน ให้ชิดซ้ายไว้ค่ะ
และติดกับศูนย์การค้าโรบินสัน คือโรงแรม เดอะ เวสทิน แกรนด์ สุขุมวิท
ซึ่งอยู่หน้าปากซอยสุขุมวิท 19
ถึงแล้วค่ะซอยสุขุมวิท 19 เลี้ยวซ้ายเข้ามาเลยค่ะ
เมื่อเลี้ยวเข้ามาในซอยแล้ว ในซอยจะเป็นถนนกว้าง 2 เลน
เข้าซอยมานิดเดียว ขวามือจะเจอร้าน STEAK จากอาร์เจนตินาชื่อดัง "EL GAUCHO"
และติดกันจะเป็น 7-ELEVEN
ฝั่งตรงข้ามเยื้องๆ กับร้าน STEAK จะเป็นทางเข้า (ฝั่งซอยสุขุมวิท 19) ของห้าง Robinson อยู่ทางซ้าย
ขับตรงเข้ามาเรื่อยๆ จะเจอกับสีแยก ซึ่งหากเลี้ยวขวาจะสามารถลัดไปออกถนนอโศกมนตรี
เลี้ยวซ้ายก็จะไปออกซอยสุขุมวิท 15 ซึ่งสามารถลัดไปนานา (สุขุมวิท 3) ได้ ส่วนตัวโครงการต้องขับตรงไปค่ะ
เลยโรงแรมมาอีกหน่อยก็จะเจอกับอาคารของบริษัท เอ็กเซลทรานสปอร์ตอินเตอร์เนชั่นแนล ซึ่งอยู่ติดกับโครงการ
ถึงแล้วค่ะโครงการ NOBLE RECOLE มีป้ายโครงการแสดงให้เห็นอย่างชัดเจนเส้นทางที่ 2 - ขาเข้าโครงการ จากถนนเพชรบุรีเชื่อมต่อซอยนานา
เส้นทางที่ 1 - ขาออกโครงการ ใช้เส้นทางถนนอโศกมนตรี ตรงขึ้นทางพิเศษศรีรัช
เส้นทางที่ 2 - ขาออกโครงการ ขึ้นทางพิเศษเฉลิมมหานคร (ด่านสุขุมวิท)
2. การเดินทางด้วยรถไฟฟ้าการเดินทางด้วยรถไฟฟ้า BTS (สถานีอโศก)เดินทางมาถึงโครงการสะดวกสบายด้วยรถไฟฟ้า BTS ลงที่สถานีอโศกค่ะ เลือกประตูทางออกที่ 1 เดินลงทางหน้าศูนย์การค้า Terminal 21 แล้วเลี้ยวซ้าย และเดินต่อไปนิดเดียวจะเห็นซอยสุขุมวิท 19 อยู่ทางขวามือ เข้าซอยไปประมาณ 550 เมตร โครงการจะอยู่ทางซ้ายมือค่ะ
BTS สถานีอโศกค่ะ
เลือกออกประตูทางออกที่ 1
ทางลงหน้าศูนย์การค้า Terminal 21การเดินทางด้วยรถไฟฟ้า MRT (สถานีสุขุมวิท)การเดินทางด้วยรถไฟฟ้า MRT สามารถลงที่สถานีสุขุมวิท โดยสามารถเลือกออกได้ 2 ทาง คือ ทางออกที่ 3 ทางฝั่งถนนสุขุมวิท บริเวณหน้าศูนย์การค้า Terminal 21 ซึ่งจุดนี้สามารถเชื่อมต่อกับ BTS สถานีอโศกได้ด้วย หรือจะออกทางออกที่ 1 ฝั่งถนนอโศกมนตรีก็ได้เช่นกัน
MRT สถานีสุขุมวิท (ประตูทางออกที่ 1 ฝั่งถนนอโศกมนตรี)
MRT สถานีสุขุมวิท (ประตูทางออกที่ 3 ฝั่งถนนสุขุมวิท)
อาคารเชื่อมต่อระหว่างรถไฟฟ้า MRT และ BTS3. การเดินทางด้วยขนส่งสาธารณะอื่นๆการเดินทางด้วยรถเมล์ป้ายรถเมล์อยู่ไม่ไกลจากปากซอยสุขุมวิท 19 บริเวณหน้าโรงแรมเวสทิน แกรนด์ สุขุมวิท ส่วนรถเมล์ที่ผ่านบริเวณนี้ก็มีเยอะมากเลยค่ะ เช่น
- สาย 11 รถธรรมดา(ครีม - แดง) และรถปรับอากาศ(ยูโรทู) เริ่มต้นที่สถานี อู่เมกาบางนา - มาบุญครอง
- สาย 23 รถธรรมดา(ครีม - แดง) เริ่มต้นที่สถานี อู่เมกา - เทเวศร์
- สาย 25 รถธรรมดา(ครีม - แดง) เริ่มต้นที่สถานี ปากน้ำ - สนามหลวง
- สาย 38 รถธรรมดา(ครีม - แดง) และรถปรับอากาศ(ครีม-น้ำเงิน) เริ่มต้นที่สถานีราชภัฏจันทรเกษม -วิทยาลัยรามคำแหง
- สาย 40 รถธรรมดา(ครีม - แดง) เริ่มต้นที่สถานี สถานีขนส่งผู้โดยสารกรุงเทพมหานคร(สายใต้)-ตลาดลำสาลี(CNG)
- สาย 511 รถปรับอากาศ(ยูโรทู) เริ่มต้นที่สถานี ปากน้ำ - สายใต้ใหม่

รถเมล์สาย 38 จากฝั่งถนนอโศกมนตรีการเดินทางด้วยเรือโดยสารคลองแสนแสบการใช้บริการทางเรือก็เป็นอีกทางเลือกหนึ่งสำหรับชั่วโมงเร่งด่วน โดยท่าเรือที่อยู่ใกล้โครงการมีด้วยกัน 2 ท่าคือ ท่าเรือนานาชาติ ห่างจากโครงการประมาณ 1.1 กม. และท่าเรือสะพานอโศก อยู่ห่างจากโครงการประมาณ 900 เมตร ซึ่งท่านี้ อยู่ใกล้กับ MRT สถานีเพชรบุรี ด้วยค่ะ
เรือโดยสารคลองแสนแสบ
บรรยากาศท่าเรือโดยสารคลองแสนแสบ (สถานีนานาเหนือ)นอกจากนี้แล้วยังมีรถมอเตอร์ไซค์วินคอยให้บริการอยู่เยอะมากค่ะ กระจายอยู่บริเวณหน้าปากซอยต่างๆ ไม่ว่าจะเป็นหน้าซอยสุขุมวิท 19, แยกอโศก, หน้าซอยสุขุมวิท 21/1 หรือแม้แต่ซอยสุขุมวิท 21/3 ก็ยังมีค่ะ ส่วนอัตราค่าโดยสารก็แตกต่างกันไปตามระยะทาง
ตัวอย่างอัตราค่าโดยสารมอเตอร์ไซค์วินหน้าซอยสุขุมวิท 19สภาพแวดล้อมใกล้เคียงและการจราจรสภาพแวดล้อมใกล้เคียง
แผนที่สภาพแวดล้อมและสถานที่สำคัญบริเวณรอบโครงการ
ภาพนี้มองจากภายในโครงการด้านซอยสุขุมวิท 19
เราลองเลี้ยวซ้ายไปสำรวจซอยสุขุมวิท 21/3 ที่จะไปลัดออกถนนอโศกมนตรีกันค่ะ
เลี้ยวซ้ายมาติดกับโครงการจะเป็นคริสตจักรวัฒนา และถัดไปคือโรงเรียนวัฒนาวิทยาลัย
เลี้ยวขวาผ่านหน้าโรงเรียนวัฒนาวิทยาลัยมาตามทางไม่นานจะเจอกับอาคาร Ocean Tower 2
โดยอาคารนี้มี Max Valu และธนาคารให้บริการ
เยื้องๆ กับอาคาร Ocean Tower 2 เป็นร้านอาหารน่ารักๆ ที่มีชื่อว่า Little Spoon
และหากมองตรงไปจะเป็นถนนอโศกมนตรี (สุขุมวิท 21)
ย้อนกลับมาหน้าโครงการอีกครั้งค่ะ ลองเลี้ยวไปดูทางขวาของโครงการกันบ้าง
เลี้ยวขวามานิดเดียวก็จะเจอกับโรงแรมแกรนด์ เมอร์เคียว กรุงเทพ อยู่ทางซ้ายมือ
ขับเลยแยกมาไม่นานจะเจอกับร้าน Beer Garden ทางขวามือ
เลยมาอีกหน่อยจะเป็นร้าน 7-ELEVEN อยู่ที่ชั้นล่างของอาคารเมธาวัฒนา
เดินตรงขึ้นมาเรื่อยๆ จะเจอร้านอาหารญี่ปุ่นที่ตกแต่งในสไตล์เก๋ไก๋อยู่ทางซ้ายมือ
นอกจากร้านอาหารญี่ปุ่นแล้ว บริเวณหน้าปากซอยยังมีหลากหลายร้านอาหารให้เลือกกันอีกเยอะเลยค่ะ
ทั้งที่เป็นร้านนั่งสบายๆ และร้านค้าริมทาง
หากเดินไปจนสุดก็จะเป็นถนนสุขุมวิท และที่เห็นด้านหน้าคือ BTS สถานีอโศกค่ะรูปแบบตึก และตัวโครงการโดยรวมโนเบิล รีโคล (Noble Recole) อยู่บนทำเลใจกลางสุขุมวิท เป็นคอนโด High Rise สูง 28 ชั้น มี 1 อาคาร จำนวน 288 ยูนิต ขนาดพื้นที่โครงการ 1-2-28 ไร่ มูลค่าโครงการ 2,300 ล้านบาท มีห้องพักขนาด 34.53-45.19 ตารางเมตร สำหรับยูนิตประเภท 1 ห้องนอน และห้องพักขนาดประมาณ 62.25-69.72 ตารางเมตร สำหรับยูนิตประเภท 2 ห้องนอน พร้อม Facility ระดับพรีเมียม ส่วนกลางลอยฟ้าบนชั้นบนสุดของอาคาร ประกอบด้วยสวนส่วนกลาง, Steam Room, ห้องอเนกประสงค์, Infinity Edge Pool และ Sky Fitness ให้วิวสูงสุดสายตา นอกจากนี้ยังมีสวนบนชั้น Ground Floor ชั้น 23 และชั้น 28 ที่สำหรับผ่อนคลายในทุกวันอีกด้วย
ภาพพื้นที่โครงการมุมสูง จะเห็นว่าแปลงที่ดินมีลักษณะเป็นสี่เหลี่ยมผืนผ้า แปลงที่ติดกับสุขุมวิท 19 คือโครงการ
Noble Recole และแปลงส่วนหลังที่ติดกับสุขุมวิท 15 ยังเป็นพื้นที่ว่างอยู่ ซึ่ง Noble จะพัฒนาต่อไปในอนาคต
1 ไร่กว่าๆ ในส่วนของพื้นที่สีเขียวไปจนสุด Sale Gallery คือทั้งหมดของเนื้อที่โครงการ Noble Recole
เดินมาดูทางฝั่งของคริสจักรวัฒนาที่มองจากด้านข้างกันบ้างค่ะ
โมเดลโครงการ อาคารสูง 28 ชั้น รวม 288 ยูนิต
ชั้นบนสุดของอาคารจะเป็น Facility
ด้านหน้าโครงการเป็นถนน 2 เลน ในรั้วโครงการจะเป็นพื้นที่จอดรถ
สามารถจอดบริเวณรอบๆ อาคาร รวมถึงลานจอดรถชั้นใต้ดินทั้งหมด 5 ชั้น
ประตูทางลงลานจอดรถที่จะไปยังชั้นใต้ดินจะอยู่บริเวณด้านหลังของอาคาร
ทิศทางของสภาพแวดล้อมโดยรอบทิศเหนือติดคริสตจักรวัฒนา, ทิศใต้ติดอาคารสำนักงาน
Excel Transport International.co.th, ทิศตะวันออกติดซอยสุขุมวิท 19 และ Villa Bajaj,
ทิศตะวันตกจดซอยสุขุมวิท 15
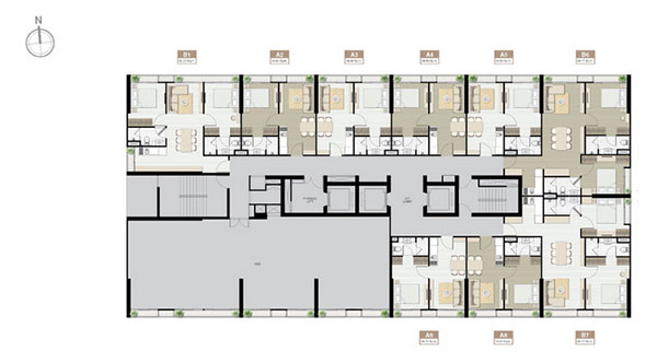
Floor Plan ชั้น G
ทางเข้า-ออกอาคารจะอยู่ทางทิศตะวันออกเป็นฝั่งของซอยสุขุมวิท 19 โดยชั้นที่ G เป็นที่ตั้งของล็อบบี้
สำนักงานนิติบุคคล ลิฟต์ ร้านค้า และห้องน้ำส่วนกลาง
Floor Plan ชั้น 2
ประกอบไปด้วยห้องพักอาศัยขนาด 34.53-68.17 ตร.ม. รวม 9 ยูนิต
Floor Plan ชั้น 3
ประกอบไปด้วยห้องพักอาศัยขนาด 34.53-68.17 ตร.ม. รวม 9 ยูนิต
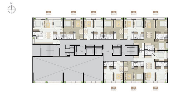
Floor Plan ชั้น 4-22
ประกอบไปด้วยห้องพักอาศัยขนาด 34.53-68.17 ตร.ม. รวม 12 ยูนิต
Floor Plan ชั้น 23
ประกอบไปด้วยห้องพักอาศัยขนาด 34.86-62.25 ตร.ม. รวม 10 ยูนิต
Floor Plan ชั้น 24-27
ประกอบไปด้วยห้องพักอาศัยขนาด 34.86-69.72 ตร.ม. รวม 8 ยูนิต
Floor Plan ชั้น 28
ชั้นบนสุดของอาคารจะรวม Facility ลอยฟ้าระดับพรีเมียมประกอบไปด้วย สวนหย่อม,
สระว่ายน้ำ (Infinity Edge Pool), Steam Room, ห้องอเนกประสงค์ และ Sky Fitness
ภายนอกของ Sale Gallery ดีไซน์ได้สวยสไตล์โมเดิร์นสมกับเป็น Noble เลยค่ะ
แว่วมาว่าใช้เวลาถึง 3 เดือนสำหรับเคลียร์พื้นที่รวมถึงก่อสร้าง Sale Gallery นี้ขึ้นมา
เปิดประตูเดินเข้ามาดูภายในของ Sale Gallery กันบ้าง ให้ความรู้สึกโปร่ง กว้างขวางและเป็นกันเองดีค่ะส่วนกลางและสิ่งอำนวยความสะดวก- โถงต้อนรับ เพดานสูง 6.50 เมตร
- สระว่ายน้ำแบบ Infinity Edge Pool อยู่ฝั่งใต้ของอาคาร มีขนาดกว้าง 25.8x5 เมตร ลึก 1.30 เมตร บนชั้น 28
- Sky Fitness ห้องออกกำลังกายพร้อมอุปกรณ์ แบบเห็นวิวสูง สุดสายตาอยู่ฝั่งเหนือของอาคาร มีขนาด 95 ตร.ม.
- สวนส่วนกลางบริเวณชั้น G, ชั้น 23 และชั้น 28
- ห้องอเนกประสงค์ (Multipurpose) ขนาด 42 ตร.ม.
- ห้องอบไอน้ำ (Steam Room) แยกชายหญิง
- ห้องซักรีด
- กล้องวงจรปิด CCTV พร้อม ระบบควบคุมความปลอดภัยในการเข้า-ออกด้วยคีย์การ์ด
- พนักงานรักษาความปลอดภัยตลอด 24 ชม.
- ที่จอดรถบริเวณชั้น G และ ชั้นใต้ดิน 5 ชั้น รวม 60%
- ลิฟต์โดยสาร 2 ตัว ลิฟต์บริการ 1 ตัว

ภาพจำลองสระว่ายน้ำแบบ Infinity Edge Pool บนชั้น 28
ภาพจำลอง Sky Fitness พร้อมอุปกรณ์ออกกำลังกายครบครันบนชั้น 28
ภาพจำลอง Lobby โถงต้อนรับเพดานสูง 6.50 เมตร
ภาพจำลอง Reception ที่อยู่ในส่วนของ Lobby
ภาพจำลองสวนส่วนกลางบนชั้น 23 และ 28ภาพห้องตัวอย่างและ Lay Outแบบห้องโครงการนี้ มี 2 แบบ คือแบบ 1 ห้องนอน ขนาด 34.53 - 45.19 ตร.ม. และแบบ 2 ห้องนอน ขนาด 62.25-69.72 ตร.ม. และมีระเบียงถึง 2 จุด ให้ความรู้สึกผ่อนคลายและไม่คับแคบมากเกินไป
แปลนแบบ 1 ห้องนอน ขนาด 34.53 ตร.ม.
แปลนแบบ 1 ห้องนอน ขนาด 34.86 ตร.ม.
แปลนแบบ 1 ห้องนอน ขนาด 34.95 ตร.ม.
แปลนแบบ 1 ห้องนอน ขนาด 45.19 ตร.ม.
แปลนแบบ 2 ห้องนอน ขนาด 62.25 ตร.ม.
แปลนแบบ 2 ห้องนอน ขนาด 68.17 ตร.ม.
แปลนแบบ 2 ห้องนอน ขนาด 69.72 ตร.ม.
ห้องตัวอย่างที่ Sale Office จะมี 2 ห้อง คือแบบ 1 ห้อง ขนาด 34.54 ตร.ม. และแบบ 2 ห้องนอน ขนาด 68.17 ตร.ม.
วันนี้เราจะเข้าไปสำรวจห้องแบบ 2 ห้องนอน ขนาด 68.17 ตร.ม. กันนะคะ
เปิดประตูห้องเข้ามาจะเจอกับโซนห้องครัวทางด้านขวามือก่อนเลยค่ะ
จะเห็นว่าโครงการนี้ใช้พื้นลามิเนตสีเดียวกันหมดทั้งห้อง
ขยับเข้าไปใกล้ๆ ดู Pantry ที่โครงการให้มาขวาสุดจะเป็นเตาไฟฟ้า+เครื่องดูดควันของ MEX ถัดออกมา
ซิ้งค์หลุมเดียว+ก็อกน้ำก็เป็น MEX เช่นเดียวกัน ส่วน Top จะเป็นหินสังเคราะห์ และชุดเคาน์เตอร์เป็น Starmark
สังเกตว่าจุดเด่นของครัวโครงการนี้น่าจะเป็นผนังกันน้ำที่ทำด้วย Glossy Cloth
ให้คุณสมบัติทำความสะอาดง่าย ไม่ทิ้งร่องรอยตามยาแนวแบบปูกระเบื้องค่ะ
ช่องชั้นเก็บอุปกรณ์ครัวมี 3 ลิ้นชัก 1 บานเปิด ถ้าช่องใหญ่ๆ ที่เหลือวางเครื่องซักผ้าตามห้องตัวอย่างแบบนี้
เวลาเปิดปิดอาจจะต้องระมัดระวังหน่อยค่ะ ไม่อย่างนั้นทั้งประตูเครื่องซักผ้าและหน้าบานตู้จะกระแทกกันเองได้
ตู้ลอยที่โครงการให้มาฝั่งนี้ มี 3 บาน ที่เด่นๆ เห็นจะเป็นมือจับเม็ดมะยมคลาสสิกดีค่ะ
เปิดบานตู้ลอยออกมาจะเป็นตามภาพค่ะ
มองย้อนกลับไปที่ประตู เสริมความปลอดภัยด้วยระบบ Digital Door Lock
เดินเข้ามาภายในโซนห้องรับแขก ตกแต่งไว้ด้วยตู้กระจกทรงสูง
หันกลับไปที่ประตูห้องฝั่งขวามีพื้นที่ค่อนข้างเยอะค่ะ ห้องตัวอย่างตกแต่งด้วยโต๊ะรับประทานอาหารขนาด 4 คน
มาถึงในส่วนดูทีวีที่ทางโครงการจัดไว้ มองตรงเข้าไปก็เป็นห้องนอนใหญ่ ซ้ายมือเป็นระเบียง
ขนาดของระเบียงก็พอให้เดินออกไปสูดอากาศได้ มีระแนงเหล็กสำหรับกันตก ตกแต่งด้วยการวางกระถางต้นไม้ ดอกไม้ได้
เข้ามาดูในห้องนอนใหญ่กันบ้าง ทางโครงการตกแต่งไว้แบบนี้ค่ะ จะเห็นว่าระยะทางเดินมีให้พอสมควรระหว่างเตียงขนาด 5 ฟุต กับชั้นวางทีวี ถัดเตียงนอนไปนิดหน่อยก็เป็นระเบียงในส่วนของห้องนอนขนาดนี้
ถ้าหันหลังให้ระเบียง จะเป็นตู้เสื้อผ้าสไตล์วินเทจทั้ง 2 ด้านก่อนเดินเข้าห้องน้ำที่มีอยู่ภายในห้องนอน
ในส่วนของห้องน้ำทางโครงการให้สุขภัณฑ์มาตามนี้ค่ะ ยกเว้นกระจกกับ Wallpaper นะคะ
ด้าน Shower Box ที่โครงการให้เป็นประตูแบบเปิดเข้า และให้ชุดฝักบัวของ GROHE
มุมนี้เป็นห้องนอนเล็ก+ระเบียง (ได้ระเบียงอีกแล้วค่ะ) ถ้าจะแต่งห้องนี้ด้วยการวางเตียงนอน
น่าจะเป็นขนาด 3.5 ฟุต กับตู้เสื้อผ้า แต่ทางโครงการตกแต่งให้ออกมาเป็นห้องนั่งเล่น
มองออกไปที่ประตูห้อง ด้านซ้ายมือเป็นประตูเข้าออกห้องน้ำ และด้านขวามือเป็นประตูเข้าออกไปด้านนอกห้อง
(ห้องน้ำห้องนี้มีประตูเข้าออกได้ทั้งจากในห้องนอนเล็กและด้านนอก)
ธรณีประตูระหว่างห้องนอนเล็กกับห้องน้ำ
ภายในห้องน้ำให้สุขภัณฑ์เหมือนกันทั้ง 2 ห้องค่ะราคาและค่าใช้จ่ายที่เกี่ยวข้องโดยประมาณ (12 ก.ย. 57)ราคา เริ่มต้น 5.1 ล้านบาทค่าใช้จ่ายอื่นๆ ของโครงการ
- ค่าส่วนกลาง 35 บาท/ตร.ม./เดือน ชำระล่วงหน้า 1 ปี ณ วันโอนกรรมสิทธิ์
- เงินกองทุนส่วนกลาง 350 บาท/ตร.ม. ชำระ ณ วันโอนกรรมสิทธิ์
- ค่าธรรมเนียมการโอนกรรมสิทธิ์ ผู้ซื้อและผู้ขายแบ่งชำระกันคนละครึ่ง
Promotion พิเศษ!
- ส่วนลดพิเศษ 50,000 บาท มอบให้เฉพาะผู้ที่กรอกข้อมูลลงทะเบียนผ่านเว็บไซต์ www.noblehome.com (ตามลิงก์ด้านล่าง) และลงทะเบียนที่สำนักงานขายเท่านั้น
- รหัสส่วนลดพิเศษ 50,000 บาทจะจัดส่งผ่าน SMS และ Email ตามข้อมูลที่ท่านระบุในแบบฟอร์ม ระหว่างวันที่ 25 ส.ค. ถึง 25 ก.ย. 2557
- บริษัทฯ ขอสงวนสิทธิ์ในการเปลี่ยนแปลงเงื่อนไขโดยมิต้องแจ้งให้ทราบล่วงหน้า
ภาพรวมโดยสรุปของโครงการ- การเดินทางเข้าออกโครงการ - ในแง่ของการเดินทาง สามารถเดินทางได้หลากหลายวิธีเลยทีเดียว ไม่ว่าจะเป็นรถยนต์ส่วนตัว สามารถเข้าออกได้ทั้งถนนสุขุมวิท (ซอยสุขุมวิท 19) และถนนอโศกมนตรี (สุขุมวิท 21) หรือจะวิ่งลัดเลาะตามซอยไปออกสุขุมวิท 15, สุขุมวิท 13, สุขุมวิท 11 และสุขุมวิท 3 (ซอยนานา) ก็สามารถทำได้ แต่สำหรับบางเส้นทางก็อาจมีกำหนดเวลาว่าช่วงนี้เป็น One-way ช่วงนั้นเป็น Two-way ดังนั้น ก่อนออกเดินทาง ก็คงต้องเช็คเวลาข้อจำกัดเหล่านี้ประกอบด้วย ในส่วนของการเดินทางไปขึ้น-ลงทางด่วน ก็ถือว่าสะดวก ไม่ว่าจะขึ้นทางด่วนเฉลิมมหานคร (ด่านสุขุมวิท ไปดินแดง แจ้งวัฒนะ) ห่างจากโครงการประมาณ 1.7 กม. หรือจะเป็นทางด่วนพิเศษศรีรัช (ด่านอโศก 2 ไปแจ้งวัฒนะ บางนา-ดาวคะนอง) ห่างจากโครงการประมาณ 1.5 กม. แต่ต้องยอมรับว่าในชั่วโมงเร่งด่วน การจราจรในย่านนี้เรียกว่าติดหนักเอาเรื่องทีเดียว ดังนั้นรถไฟฟ้าจึงเป็นอีกทางเลือกหนึ่งที่สะดวกและน่าสนใจ ไม่ว่าจะเป็น BTS สถานีอโศก ที่อยู่ปากซอยสุขุมวิท 19 หรือจะเป็น MRT สถานีสุขุมวิท ซึ่งขึ้นได้ทั้งฝั่งสุขุมวิทตรงหน้า Terminal 21 หรือจะเป็นฝั่งถนนอโศกมนตรีก็ได้เช่นกัน หรือจะเลือกเดินทางโดยเรือผ่านคลองแสนแสบ ซึ่งท่าเรือที่ใกล้สุดคือ "ท่าสะพานอโศก" อยู่ห่างจากโครงการประมาณ 900 เมตร หรือถ้าเดินทางใกล้ๆ จะใช้บริการวินมอเตอร์ไซค์ก็สะดวกรวดเร็วเช่นกัน เพราะมีกระจายอยู่หลายวินด้วยกันทั้งบริเวณปากซอยสุขุมวิท 19, ปากซอยสุขุมวิท 21/1, ปากซอยสุขุมวิท 21/3 หรือแม้แต่หน้าโครงการการก็ยังมี
- ทำเลรอบโครงการ - ตรงย่านนี้อยู่ใกล้กับสี่แยกอโศก ซึ่งถือว่าเป็นย่าน Central Business District (CBD) แห่งหนึ่งของกรุงเทพ แต่ตัวโครงการอยู่ในซอย ดังนั้นในตอนกลางคืนจึงค่อนข้างเงียบสงบพอใช้ได้ทีเดียว ไม่เหมือนริมถนนอโศกมนตรี หรือตรงสี่แยกอโศกที่จะคึกคัก และบางทีก็มีเสียงดังของย่านกลางคืน หรือรถวิ่งตามถนนใหญ่บ้าง รอบๆ โครงการเต็มไปด้วยอาคารสำนักงาน และตึกสูงในบางทิศ ดังนั้น หากใครชอบวิวสูงๆ คงต้องเช็คทิศ และวิวให้ดีก่อนเลือกห้อง ในส่วนของอาหารการกินนั้น ต้องบอกว่าค่อนข้างสมบูรณ์ เพราะเต็มไปด้วยร้านค้าร้านอาหารมากมายไม่ว่าจะเป็นปากซอยสุขุมวิท 19 ที่หน้าปากซอยมีร้านค้า หรือร้านอาหารที่เปิดให้บริการทั้งกลางวัน และกลางคืน อาทิ Terminal 21, ศูนย์การค้า Robinson, ร้าน 7-Eleven และร้านอาหารง่ายๆ ตามสั่งที่อยู่ภายในซอย หรือถ้าเป็นฝั่งถนนอโศกมนตรีก็ยังมีร้าน Little Spoon, ร้าน Big Mama และตลาดนัดสำหรับพนักงานออฟฟิศ และร้านอาหารริมทางอีกมากมายให้ได้เลือกทาน ซึ่งระยะห่างของสถานที่ทั้งหมดที่ว่ามานี่ ก็อยู่ในรัศมีไม่เกิน 1 กม. จากตัวโครงการทั้งสิ้น
- อาคารและตัวโครงการโดยรวม - โครงการนี้ดีไซน์ตัวอาคารโดยรวมออกมาในแนวเรียบๆ ตามสไตล์ Noble หากใครเห็นโครงการ Noble บ่อยๆ เมื่อเห็นรูปแบบตึกก็พอจะบอกได้เลยว่าเป็นโครงการของ Noble โดยโครงการนี้เอาที่จอดรถลงใต้ดินหมดเลยลึกลงไป 5 ชั้น ตัวอาคารเป็นอาคารสูง และในแต่ละชั้นจะมีประมาณ 8-12 ยูนิต ซึ่งถือว่าไม่หนาแน่นมากนัก ลิฟต์โดยสารมี 2 ตัวซึ่งทำให้สัดส่วนห้อง:ลิฟต์ อยู่ที่ 144:1 ซึ่งหากเป็นเวลาเร่งด่วน ก็อาจต้องรอลิฟต์กันสักพักหนึ่ง และสัดส่วนที่จอดรถคือประมาณ 60% (ไม่รวมซ้อนคัน) ซึ่งถือว่าใช้ได้แต่เนื่องจากทำเลนี้ไม่ได้เดินไปรถไฟฟ้าในระยะสั้นๆ ดังนั้น จึงอาจมีการใช้รถกันมากพอสมควร และหากบริหารจัดการกันไม่ดี ที่จอดรถก็อาจกลายเป็นของหายากไปได้ค่ะ จริงๆ แล้วที่ดินของทางโนเบิลนั้นเป็นแปลงใหญ่กินพื้นที่ไปจนถึงซอยสุขุมวิท 15 เลย (ขนาดรวมทั้งหมดกว่า 5 ไร่เศษ) ดังนั้น โครงการนี้จึงเรียกได้ว่ากินพื้นที่แค่ประมาณ 1/3 ของที่ดินทั้งหมดเท่านั้น และหากโนเบิลพัฒนาที่ดินส่วนที่เหลือเป็นคอนโดมิเนียม ก็มีความเป็นไปได้สูงว่ายูนิตที่หันไปทางทิศตะวันตก (ทางซอยสุขุมวิท 15) ก็อาจบังวิวกันเองกับโครงการในอนาคตที่จะพัฒนาภายหลังได้ แต่การมี 2 โครงการติดกันภายใต้ผู้พัฒนาเดียวกัน ก็อาจมีข้อดีได้เช่นกันคือ ทางโนเบิลอาจดีไซน์ให้ทั้ง 2 โครงการ สามารถเข้าออกกันได้ทั้งสุขุมวิท 15 และสุขุมวิท 19 ซึ่งก็จะดีอย่างมากสำหรับลูกบ้านของทั้ง 2 โครงการเลย ซึ่งตรงนี้เราต้องคอยดูกันว่าภาพรวมในอนาคตของทั้งหมดตรงนี้จะออกมาเป็นอย่างไร
- ส่วนกลาง - โครงการนี้จัดส่วนกลางไว้ชั้นบนสุดของอาคารทั้งหมด (มีแค่ Pocket Garden อีกหนึ่งจุดที่ชั้น 23) ประกอบด้วยสวนส่วนกลาง, Steam Room, ห้องอเนกประสงค์, Infinity Edge Pool (ฝั่งทิศใต้) และ Sky Fitness (ฝั่งทิศเหนือ) โดยรวมถือว่าส่วนกลางไม่ได้มีให้แบบอลังการ หรือมากมายนัก แต่ที่ให้มาก็เรียกว่าใช้การได้จริง อย่างเช่น สระว่ายน้ำก็ขนาดยาว 25 เมตร ซึ่งถือเป็นขนาดที่ใช้ว่ายน้ำแบบออกกำลังกายได้จริง
- รูปแบบห้องและวัสดุ - รูปแบบห้องมี 2 ขนาด (1 ห้องนอนและ 2 ห้องนอนพื้นที่ตั้งแต่ 34.53 - 69.72 ตร.ม.) โดยรวม Lay out ภายในห้องจัดออกมาได้ลงตัว ยูนิต 1 ห้องนอนเล็กสุดเริ่มที่ 34.53 ตร.ม. ซึ่งเรียกได้ว่าเป็น 1 ห้องนอนที่ใหญ่และอยู่ได้สบายทีเดียว จุดเด่นของยูนิตที่นี่คือทุกห้องจะมีระเบียงหมด คือมีระเบียงสำหรับทั้งห้องนั่งเล่น และทุกห้องนอนเลย (ไม่ว่าจะเป็นแบบ 1 ห้องนอน หรือ 2 ห้องนอน) แต่ขนาดระเบียงอาจจะไม่ได้กว้างขนาดเอาเก้าอี้ หรือโต๊ะมาวางนั่งเล่นได้ ยูนิตที่ขายตอนนี้จะเป็นแบบ Partly Fitted หลักๆ ที่ได้เลยคือจะได้ชุดครัว Built-in อุปกรณ์ห้องน้ำครบชุด กุญแจ Digital Door Lock ส่วนบริเวณอื่นๆ จะเป็นห้องเปล่า ตัวอย่างวัสดุที่มากับห้องก็เช่น ชุดครัว+บิ้วท์อินสไตล์โมเดิร์นของ Starmark พื้นลามิเนต พื้นกระเบื้องในห้องน้ำ สุขภัณฑ์ในห้องน้ำที่โครงการให้มาแบ่งออกเป็นหลายยี่ห้อเช่น อ่างล้างหน้า Christina, ชุดฝักบัว Grohe, ชุดโถ Nahm โดยหลักแล้วทางโนเบิลเน้นขายแบบห้องเปล่า เพื่อให้ลูกค้าตกแต่งห้อง หรือดีไซน์ด้วยตัวเอง
- ราคา - ราคาขายของยูนิตโครงการนี้ เริ่มต้นตั้งแต่ประมาณ 150,000 บาทต่อตร.ม. ไปจนถึง 200,000 บาทต่อตร.ม. และราคาโดยเฉลี่ยของยูนิตที่นี่จะออกมาประมาณ 180,000 บาทต่อ ตร.ม. โครงการนี้น่าจะเหมาะสำหรับคนที่่อยากได้คอนโดบริเวณอโศก และสามารถทะลุไปสุขุมวิทซอยเลขคี่ช่วงต้นๆ ได้ และก็น่าจะเหมาะกับผู้ปกครองที่มีลูกหลานเรียนหนังสือที่โรงเรียน หรือมหาวิทยาลัยบริเวณนี้ หรือทำงานแถวอโศก สุขุมวิท หรือเพชรบุรีตัดใหม่ค่ะ
สถานะปัจจุบันของโครงการ (12 ก.ย. 57)โครงการ โนเบิล รีโคล สุขุมวิท 19 (Noble Recole Sukhumvit 19) จะเริ่มเปิดจองครั้งแรกในวันที่ 28 กันยายน 2557 นี้ โดยเปิดขาย ณ โรงแรมดิโอกุระเพรสทีจ (The Okura Prestige Bangkok) ติด BTS เพลินจิต คาดว่าจะเริ่มก่อสร้างประมาณเดือนสิงหาคม 2558 และคาดว่าจะแล้วเสร็จประมาณเดือนธันวาคม 2561ติดต่อโครงการ โทร. 02-251-9955รีวิว-พรีวิวล่าสุดอื่นๆ
-

-
วันนี้เราจะพามาดูทำเลคอนโดอีกโครงการที่ขึ้นอยู่ใจกลางห้าแยกลาดพร้าวเลย ใกล้ MRT พหลโยธินประมาณ 250 เมตร นั่นก็คือ โครงการ Life Ladprao-Chatuchak โซนนี้คอนโดของ AP ขึ้นถึง 2 โครงการ คือ Life Ladprao และ Life Ladprao Valley และที่นี่ก็เรียกได้ว่าเป็นน้องใหม่ตระกูล Life ของทำเลลาดพร้าวอีกแห่งหนึ่ง26 ธ.ค. 62 7,425
คอนโดติดรถไฟฟ้าล่าสุด
-
เริ่มต้น 3.59 ลบ.
-
เริ่มต้น 5.5 ลบ.
- 1 ห้องนอน, 2 ห้องนอน, 3 ห้องนอน, 4 ห้องนอน
-
เริ่มต้น 1.79 ลบ.
-
เริ่มต้น 3.49 ลบ.
-
เริ่มต้น 3.49 ลบ.








