ประเมินวงเงินรู้ผลใน 3 นาที
กับ กรุงศรี ออโต้ พร้อมสตาร์ท

เริ่มประเมินวงเงินพร้อมสตาร์ท
ผ่านมือถือ สแกนเลย

ดูวงเงินพร้อมสตาร์ทที่ได้รับ

  • คอนโด
  • คอนโด
  • ค้นหาแบบละเอียด
  • รีวิว-เยี่ยมชม ศุภาลัย วิสต้า ห้าแยกปากเกร็ด (Supalai Vista Pak-Kred Intersection)

    22 ส.ค. 57 21,832
    ศุภาลัย วิสต้า ห้าแยกปากเกร็ด (Supalai Vista Pak-Kred Intersection)
    ศุภาลัยยังคงบุกตลาดคอนโดอย่างต่อเนื่อง หลังจากที่เพิ่งเปิดตัวโครงการ ศุภาลัย ซิตี้ รีสอร์ท สถานีแบริ่ง-สุขุมวิท 105 ไปเมื่อวันที่ 2 ส.ค. 57 ที่ผ่านมา ตามมาติดๆ กับโครงการที่สองของครึ่งปีนี้ กับโครงการ ศุภาลัย วิสต้า ห้าแยกปากเกร็ด คอนโด High-Rise ทำเลติดถนนใหญ่ บนถนนแจ้งวัฒนะ ใกล้ห้าแยกปากเกร็ด และใกล้รถไฟฟ้า MRT สายสีชมพู (ในอนาคต) สถานีปากเกร็ด (แคราย-มีนบุรี) เพียง 200 เมตรเท่านั้น ใครที่อยากทราบข้อมูลโครงการนี้ติดตามชมรีวิวนี้กันได้เลยค่ะ
    ข้อมูลโครงการโดยรวม
    • เจ้าของโครงการ: บริษัท ศุภาลัย จำกัด (มหาชน)
    • ที่ตั้งโครงการ:  ถนนแจ้งวัฒนะ ต.ปากเกร็ด อ.ปากเกร็ด (ตลาดขวัญ) จ.นนทบุรี
    • อาคารชุดพักอาศัยสูง 30 ชั้น จำนวน 1 อาคาร รวม 404 ยูนิต
    • ขนาดที่ดินทั้งโครงการ: 2-0-43 ไร่ 
    • ลิฟต์โดยสาร 3 ตัว และลิฟต์บริการ 1 ตัว
    • ห้องชุดมี 3 รูปแบบหลักๆ ได้แก่ STUDIO, 1 ห้องนอน และ 2 ห้องนอน
    • ขนาดตั้งแต่ 31.00 - 79.00 ตร.ม.
    • ที่จอดรถประมาณ 142 คัน (รวมจอดซ้อนคัน)
    • ราคาเริ่มต้น 1.63 ล้านบาท สําหรับห้อง STUDIO ขนาด 31.00 ตร.ม. (ข้อมูล ณ 15 ส.ค. 57)
    • คาดว่าจะแล้วเสร็จทั้งโครงการประมาณปลายปี 2560
    • วันที่เข้าเยี่ยมชม-รีวิวคอนโด 15 ส.ค. 57
    เจ้าของและผู้พัฒนาโครงการ
    บริษัท ศุภาลัย จำกัด (มหาชน) เป็นบริษัทที่อยู่ในวงการธุรกิจอสังหาริมทรัพย์มาเป็นเวลากว่า 25 ปีแล้ว (ก่อตั้ง 26 มิถุนายน 2532) ปัจจุบันเป็นบริษัทมหาชนที่จดทะเบียนในตลาดหลักทรัพย์แห่งประเทศไทย มีทุนจดทะเบียน ณ เดือนพฤศจิกายน 2556 ทั้งสิ้น 1,770 ล้านบาท (ชำระแล้ว 1,716.55 ล้านบาท) มีผลงานในวงการอสังหาริมทรัพย์ทั้งในแนวราบ (บ้านและทาวน์โฮม) และแนวดิ่ง (คอนโดมิเนียม โรงแรม และสำนักงานให้เช่า) ตั้งแต่อดีตจนถึงปัจจุบันมากมายทั้งในกรุงเทพฯ และต่างจังหวัดในเมืองใหญ่ทั่วประเทศ เช่น เชียงใหม่ ภูเก็ต หาดใหญ่ ชลบุรี พัทยา ระยอง ขอนแก่น และอุดรธานี เป็นต้น โดยเมื่อปี 2556 ที่ผ่านมา บริษัทสามารถทำยอดขายได้ถึง 18,576 ล้านบาท แยกเป็นคอนโดมิเนียม 62% และบ้านจัดสรร 38% และมีกำไรสุทธิ 2,882 ล้านบาท เติบโต 5% ปัจจุบันมีโครงการดำเนินงานอยู่ระหว่างการพัฒนาประมาณ 81 โครงการ
    ทำเลที่ตั้ง
    โครงการตั้งอยู่ที่ ถ.แจ้งวัฒนะ ต.ปากเกร็ด อ.ปากเกร็ด (ตลาดขวัญ) จ.นนทบุรี ติดถนนใหญ่ ใกล้ห้าแยกปากเกร็ด เชื่อมต่อด้วยถนนสายหลักหลายสายสำคัญ อาทิ ถ.ติวานนท์ ถ.ชัยพฤกษ์, ถ.ราชพฤกษ์, ถ.ศรีสมาน และ ถ.วิภาวดีรังสิต เดินทางสะดวกสบาย ใกล้รถไฟฟ้า MRT สายสีชมพู (ในอนาคต) สถานีปากเกร็ด (แคราย-มีนบุรี) เพียง 200 เมตร สามารถเชื่อมต่อรถไฟฟ้า MRT สายสีม่วง (ในอนาคต) ได้ที่สถานีศูนย์ราชการนนทบุรี และ MRT สายสีแดง (ในอนาคต) ได้ที่สถานีหลักสี หรือเชื่อมต่อไปยังรถไฟฟ้า BTS เพื่อเชื่อมต่อไปยังใจกลางเมืองและย่านธุรกิจ อีกทั้งยังใกล้จุดขึ้นลงทางด่วนแจ้งวัฒนะอีกด้วย นอกจากนี้ยังแวดล้อมด้วยห้างสรรพสินค้าเมเจอร์ ฮอลลีวูด, บิ๊กซี เอ็กซ์ตร้า แจ้งวัฒนะ, โรงเรียนสวนกุหลาบวิทยาลัย นนทบุรี, โรงพยาบาลชลประทาน, ท่าเรือปากเกร็ด, ห้างสรรพสินค้าเซ็นทรัล พลาซ่า แจ้งวัฒนะ

    ภาพแผนที่โครงการศุภาลัย วิสต้า ห้าแยกปากเกร็ด

    ภาพแผนที่โครงการแจกแจงให้เห็นระยะใกล้-ไกลของโครงการกับสถานที่ หรือ Landmark รอบๆ โครงการที่น่าสนใจ

    เรามาเริ่มดูบริเวณรอบๆ โครงการกันค่ะ ถ้าตรงมาจากจุดขึ้น-ลงทางด่วนแจ้งวัฒนะจะเจอ
    เซ็นทรัลแจ้งวัฒนะ โฮมโปร และบิ๊กซี

    เมือถึงห้าแยกปากเกร็ดแล้วเลี้ยวซ้ายขึ้นไปทางถนนติวานนท์-ปทุมธานี
    จะเห็นวัดชลประทานรังสฤษดิ์ และติดกันเป็นโรงเรียนชลประทานอยู่ทางซ้ายมือ

    เราลองกลับรถแล้วเลี้ยวซ้ายตรงห้าแยกปากเกร็ดมาดูฝั่งที่จะตรงไปท่าเรือปากเกร็ดกันบ้างค่ะ
    เลยแยกมานิดเดียวจะเจอกับ Major Hollywood ซึ่งห่างจากโครงการประมาณ 250 เมตร

    ขับตรงมาอีกนิดจะเป็นโรงพยาบาลวิภาราม

    ขับตรงมาเรื่อยๆ จะเป็นตลาดเก่าริมน้ำปากเกร็ด ที่นี่มีของขายเยอะเลยค่ะ

    ที่ตลาดนี้มีบริการพื้นที่จอดรถด้วยนะคะ

    อัตราค่าธรรมเนียมการจอดรถตามนี้ค่ะ

    เลยเข้ามาจนสุดทางจะเป็นท่าเรือปากเกร็ดค่ะ
    ที่นี่ให้บริการเรือด่วนพิเศษธงเขียว เส้นทาง ปากเกร็ด - สาทร

    วนย้อนกลับมาจากท่าเรือมุ่งหน้าสู่ห้าแยกปากเกร็ดเพียงนิดเดียว
    จะเจอกับเส้นทางลัดไปวัดกู้ และถนนติวานนท์

    ตลาดนี้ของกินของใช้อุดมสมบูรณ์มากเลยค่ะ การเดินทางก็สะดวก มีรถประจำทางคอยให้บริการเยอะเลย
    ไม่ว่าจะเป็นรถตู้ รถเมล์ รถสองแถว พี่วิน ตลอดจนสามล้อถีบก็มีให้บริการ เลือกได้ตามสะดวกเลยค่ะ
    แต่คงต้องบอกว่าการจราจรบริเวรณตลาดนี้ก็ค่อนข้างหน้าแน่นเช่นกันนะคะ
    การเดินทางเข้า - ออกโครงการ
    1. เดินทางด้วยรถยนต์ส่วนตัว
    การเดินทางด้วยรถยนต์สามารถมาได้หลายเส้นทาง โดยมีเส้นทางหลักดังต่อไปนี้ค่ะ 
    เส้นทางที่ 1 - ขาเข้าโครงการจากถนนแจ้งวัฒนะ

    เดี๋ยวเรามาดูการเดินทางโดยใช้ทางด่วนดอนเมืองโทลล์เวย์กันค่ะ

    ขึ้นทางด่วนดอนเมืองโทลล์เวย์

    กำลังก่อสร้างรถไฟฟ้าสายสีแดง บางซื่อ - รังสิต ตามแนวโฮปเวลล์เดิม

    ขับตรงมาเรื่อย จะเจอโรงแรมมิราเคิล แกรนด์ คอนเวนชั่น หลักสี่

    ขับตรงมาสักพักจะเจอป้ายข้างบนนี้ให้เตรียมเลี้ยวซ้ายลงหลักสี่-แจ้งวัฒนะ

    เมื่อเลี้ยวซ้ายตามป้าย ขวามือจะเจอศูนย์การค้า IT Square 

    เห็นแนวก่อสร้างรถไฟฟ้าสายสีแดงชัดๆ กำลังดำเนินการค่ะ

    ลงทางด่วนมาเข้าเส้นแจ้งวัฒนะ

    ผ่านบมจ.ทีโอที สนง.ใหญ่ (TOT)

    ผ่านไปรษณีย์ หลักสี่

    ผ่านบมจ. กสท โทรคมนาคม (CAT)

    ผ่านศูนย์ราชการแจ้งวัฒนะ

    ผ่านศาลปกครอง

    ผ่านกรมการกงสุล

    ผ่านกรมสอบสวนคดีพิเศษ (DSI)

    ฝั่งขวามือผ่าน The Avenue แจ้งวัฒนะ และ Tesco Lotus 

    ข้ามสะพานข้ามแยกคลองประปาถนนประชาชื่น

    ผ่านสำนักงานขาย ศุภาลัย ลอฟท์ แจ้งวัฒนะ (Supalai Loft Chaeng Watthana)

    ลงสะพานมาไม่มาก จะเจอ Makro แจ้งวัฒนะ

    ก่อนลอดใต้ทางด่วนเจอเมืองทองธานีขวามือ

    ข้างหน้าเป็นทางด่วนด่านแจ้งวัฒนะ

    ขับตรงไปปากเกร็ดค่ะ

    ผ่านเซ็นทรัลแจ้งวัฒนะ

    เตรียมกลับรถใต้สะพาน เพื่อย้อนขึ้นมาถนนแจ้งวัฒนะฝั่งตรงข้าม

    กลับรถตรงนี้ก่อนจะถึงห้าแยกปากเกร็ด

    ทางเข้าโครงการจากหน้าถนนใหญ่ประมาณ 20 เมตร

    ด้านหน้าโครงการ ศุภาลัย วิสต้า ห้าแยก ปากเกร็ด
    เส้นทางที่ 2 - ขาเข้าโครงการจากแยกแคราย

    ตรงมาจากเดอะมอลล์งามวงศ์วาน เจอแยกแครายให้เลี้ยวขวาตามป้ายเพื่อไปปากเกร็ด

    จากแยกแครายผ่านกรมพลาธิการทหารบก

    วิ่งตรงขึ้นไปก่อนจะเจอกรมชลประทานปากเกร็ด

    ผ่านกรมชลประทาน ด้านในเป็นส่วนของโรงพยาบาลชลประทาน

    ตรงขึ้นไป (ไม่ลงอุโมงค์) จะเจอห้าแยกปากเกร็ด เตรียมเลี้ยวขวาเพื่อเข้าถนนแจ้งวัฒนะ
    ไปทางเข้าโครงการประมาณ 200 เมตร ถ้าเลี้ยวซ้ายจะเจอเมเจอร์ปากเกร็ด
    เส้นทางที่ 1 - ขาออกโครงการ ออกโดยใช้ทางด่วนแจ้งวัฒนะ

    เส้นทางที่ 2 - ขาออกโครงการ ออกโดยใช้เส้นเลี่ยงเมืองปากเกร็ดเข้าถนนติวานนท์-ปทุมธานี ออกแยกแคราย

    2. การเดินทางด้วยรถไฟฟ้า
    คาดว่าในปี 2560 รถไฟฟ้าสายสีชมพู (แคราย-มีบุรี) ก็จะสามารถเปิดให้บริการได้ จำนวนทั้งสิ้น 30 สถานี โดยลูกค้าโครงการสามารถขึ้นจากสถานีปากเกร็ดซึ่งอยู่ห่างจากหน้าโครงการไปทางห้าแยกปากเกร็ดประมาณ 200 เมตร เพื่อไปเชื่อมต่อกับรถไฟฟ้าสายสีม่วง (บางใหญ่-เตาปูน) ซึ่่งคาดว่าจะเปิดให้บริการในปี 2558 ที่สถานีศูนย์ราชการจังหวัดนนทบุรีผ่านทางถนนแจ้งวัฒนะ และถนนติวานนท์ หรือวิ่งไปทางหลักสี่ก็จะไปเชื่อมต่อกับรถไฟฟ้าสายสีแดงเข้ม (ระยะที่ 1 รังสิต-บางซื่อ) ซึ่งคาดว่าจะเปิดให้บริการในปี 2557 ที่สถานีหลักสี่ และหากวิ่งไปต่อก็ สามารถไปเชื่อมต่อกับรถไฟฟ้าสายสีเขียวส่วนต่อขยาย (หมอชิต-สะพานใหม่-คูคต) (โครงการในอนาคต) ที่คาดว่าจะเปิดให้บริการปี 2561 ได้ที่สถานีวงเวียนหลักสี่

    รถไฟฟ้าสายสีชมพูสถานีศรีรัชอยู่ใกล้ ศุภาลัย วิสต้า ห้าแยก ปากเกร็ด ประมาณ 200 เมตร

    เส้นทางรถไฟฟ้าสายสีชมพู และจุดเชื่อมต่อกับรถไฟฟ้าสายอื่นๆ (คลิกเพื่อดูภาพขยาย)

    วิดีโอจำลองเส้นทางการเดินรถของรถไฟฟ้าสายสีชมพู
    3. การเดินทางด้วยขนส่งสาธารณะอื่นๆ 
    การเดินทางด้วยรถประจำทาง
    การเดินทางมาโครงการด้วยรถตู้โดยสาร สาย ต.11 คิวเดอะมอลล์งามวงศ์วาน - ปากเกร็ด สามารถขึ้นจากฝั่งเดอะมอลล์งามวงศ์วานวิ่งไปตามถนนงามวงศ์วาน ผ่านถนนติวานนท์ วิ่งเข้าแจ้งวัฒนะ อาจจะลงตรงเมเจอร์ฮอลลีวู้ด แล้วต่อมอเตอร์ไซค์รับจ้างก็ได้ หรือถ้ามาจากกรุงเทพชั้นในเลือกขึ้นสาย ต.27 (ขึ้นทางด่วน) คิวมาบุญครอง - ปากเกร็ด เส้นทางจากมาบุญครองผ่านเข้าถนนพญาไทวิ่งต่อไปยังพระราม 4 ขึ้นทางด่วนพระราม 4 ลงด่านแจ้งวัฒนะ (ลงก่อนถึงห้าแยกปากเกร็ด เป็นฝั่งตรงข้ามของโครงการ) สุดสายที่ท่าน้ำปากเกร็ด และอีกจุดซึ่งง่ายสำหรับการต่อรถเพราะลงจาก BTS สถานีหมอชิตเดินไปขึ้นรถตู้สาย ต.10 คิวหมอชิต 2 - ปากเกร็ด จะวิ่งผ่านถนนกำแพงเพชร 2 เข้าถนนกำแพงเพชร1 ผ่านถนนพหลโยธิน ผ่านถนนวิภาวดีรังสิต เข้าถนนแจ้งวัฒนะ (ลงก่อนถึงห้าแยกปากเกร็ด เป็นฝั่งตรงข้ามของโครงการอีกเช่นกัน) สิ้นสุดที่ท่าน้ำปากเกร็ด ในส่วนของสายรถเมล์ก็มีสาย 52 ปากเกร็ด - บางซื่อ เริ่มจากตลาดปากเกร็ดวิ่งผ่านถนนแจ้งวัฒนะ เลี้ยวขวาเข้าถนนวิภาวดีรังสิต เข้าถนนพหลโยธิน ผ่านถนนประดิพัทธ์ ผ่านถนนเตชะวนิช ผ่านถนนโรงปูนซีเมนต์ สุดเส้นทางที่สถานีรถไฟบางซื่อ และสาย 356 ปากเกร็ด - รังสิต รถจะวิ่งเป็นวงกลม เริ่มต้นจากปากเกร็ด ผ่านแยกหลักสี่ เลี้ยวซ้ายไปยังสนามบินดอนเมือง สะพานใหม่ วิ่งถนนพหลโยธิน ผ่านตลาดยิ่งเจริญ ผ่านวงเวียนหลักสี่ เข้าถนนแจ้งวัฒนะ กลับไปวนที่ปากเกร็ด ส่วนป้ายรถเมล์จะอยู่ทางด้านซ้ายมือของโครงการ ใกล้กับห้าแยกปากเกร็ด ซึ่งห่างจากตัวโครงการประมาณ 60 เมตร
    การเดินทางด้วยเรือด่วนเจ้าพระยา
    การใช้บริการเรือด่วนเจ้าพระยาเพื่อเข้า-ออกเมือง ก็เป็นอีกทางเลือกหนึ่งสำหรับชั่วโมงเร่งด่วน โดยท่าเรือปากเกร็ดอยู่ห่างจากตัวโครงการประมาณ 1.5 กม. โดยเรือที่ให้บริการที่ท่าเรือปากเกร็ดมีเพียงเรือด่วนพิเศษธงสีเขียวเพียงสายเดียวเท่านั้นนะคะ ซึ่งอัตราค่าโดยสารแบ่งออกเป็น 3 ราคา ตามระยะทางดังนี้ ปากเกร็ด - นนทบุรี ราคา 13 บาท, นนทบุรี - สาทร ราคา 20 บาท และ ปากเกร็ด - สาทร ราคา 30 บาท

    ตารางเวลาการให้บริการของเรื่อด่วนพิเศษธงเขียว

    เส้นทางเดินเรือจากท่าเรือปากเกร็ดเข้าเมือง (คลิกเพื่อดูรูปขยาย)

    ภาพบรรยากาศท่าเรือปากเกร็ด
    สภาพแวดล้อมใกล้เคียงและการจราจร
    สภาพแวดล้อมใกล้เคียง

    แผนที่สภาพแวดล้อมและสถานที่สำคัญบริเวณรอบโครงการ

    มองจากประตูออกไปจะเจอกับสะพานข้ามแยกปากเกร็ด

    ถ้าเลี้ยวซ้ายออกจากโครงการบนถนนแจ้งวัฒนะติดกับตัวโครงการจะเป็นอาคารพาณิชย์สูง 2 ชั้น

    เลยมาอีกนิดจะเป็น บริษัท โรงงานฝ้ายบางกอก จำกัด

    เดินมาอีกนิดจะเจอร้านอาหารไก่ตะกร้า ซึ่งห่างจากโครงการประมาณ 300 เมตร

    ติดกับร้านไก่ตะกร้าจะเป็นโชว์รูม KIA MOTORS

    เราย้อนกลับมาดูฝั่งที่จะไปห้าปากเกร็ดกันบ้างค่ะ เริ่มจากป้ายโครงการบริเวณด้านหน้าทางเข้า

    เดินมานิดเดียวจะเห็นทางกลับรถอยู่ทางซ้ายมือ
    และตรงที่เห็นรถตู้จอดอยู่จุดนั้นจะเป็นป้ายรถประจำทางค่ะ

    เดินเลยป้ายรถประจำทางมาอีกนิดจะเจอกับปั๊มน้ำมัน ปตท. ซึ่งอยู่ทางขวามือใกล้แยกปากเกร็ด

    ภายในปั๊ม ปตท. ก็จะมี 7-ELEVEN, ร้านขายอาหารเล็กๆ และตู้ ATM

    มองออกมาจากนอกปั๊มจะเป็นห้าแยกปากเกร็ด
    การจราจรโดยรอบโครงการ
    บริเวณด้านหน้าโครงการซึ่งเป็นถนนแจ้งวัฒนะ มีระยะห่างจากห้าแยกปากเกร็ดประมาณ 200 เมตร การจราจรยังวิ่งไปได้เรื่อยๆ จนถึงก่อนขึ้นทางด่วนแจ้งวัฒนะ ไปจนถึงหลักสี่การจราจรจะค่อนข้างคับคั่งโดยเฉพาะช่วงเช้าและช่วงเย็นยาวจนถึงค่ำ เน้นที่เช้าวันจันทร์ขาเข้าเมืองจะมีรถสะสมในช่วงเวลาดังกล่าวเป็นพิเศษ กลับมาที่บริเวณห้าแยกปากเกร็ดเป็นจุดรวมของเส้นทางที่สามารถวิ่งออกไปได้หลายจุดเช่นหลักสี่, งามวงศ์วาน, ราชพฤกษ์ (เข้าเขตฝั่งธน), ปทุมธานี รังสิต และสุพรรณบุรีได้ ดังนั้นการระบายรถจากตรงนี้จึงอาจจะติดขัดตามช่วงเวลาดังกล่าวบ้าง ในส่วนของการเดินทางเข้างามวงศ์วาน เราสามารถใช้เส้นเลี่ยงเมืองปากเกร็ดเพื่อทะลุไปถนนสามัคคีได้ และหากจะข้ามสะพานพระราม 4 เพื่อไปทางฝั่งของเส้นราชพฤกษ์ ลงสะพานพระราม 4 ไปจะเจอ 3 แยกตัดถนนชัยพฤกษ์ ในช่วงนี้จะมีรถติดอยู่บ้างเนื่องจากมีการก่อสร้างโครงการทางพิเศษสายศรีรัช - วงแหวนรอบนอกกรุงเทพมหานครอยู่ แต่จะเสร็จสิ้นภายในปี 2559 น่าจะมาพร้อมกับรถไฟฟ้าสายสีม่วง

    ภาพถนนช่วงห้าแยกปากเกร็ดตรงมาจากแยกแคราย ก่อนจะเลี้ยวขวาไปโครงการ

    การจราจรมาจากทางด่วนแจ้งวัฒนะ ตรงไปอีกหน่อยเป็นห้าแยกปากเกร็ดก่อนจะกลับรถเลี้ยวซ้ายเข้าโครงการ
    รูปแบบตึก และตัวโครงการโดยรวม
    โครงการ ศุภาลัย วิสต้า ห้าแยกปากเกร็ด อยู่ติดถนนแจ้งวัฒนะ ตัวโครงการเป็นอาคาร High-Rise สูง 30 ชั้น รวม 1 อาคาร ตั้งอยู่บนพื้นที่ขนาดใหญ่ 2-0-43 ไร่ มีจำนวนยูนิตเพื่อการอยู่อาศัยทั้งหมด 404 ยูนิต ยังคงคอนเซปต์เป็นอาคารประหยัดพลังงาน ใช้โทนสีอ่อน เพื่อเพิ่มประสิทธิภาพของการสะท้อนรังสีความร้อน และการวางผังห้องพัก โดยให้พื้นที่ใช้งานป้องกันการถ่ายเทความร้อนจากภายนอกอาคาร ใส่ใจในการออกแบบ ด้วยการวางผังอาคารเป็นรูปตัว L เพื่อหลบทิศทางแดด และรับลมธรรมชาติ อากาศถ่ายเทได้ดี เย็นสบาย และใช้กระจกสีเขียวตัดแสง พร้อมปลูกต้นไม้ใหญ่ให้ร่มเงาบริเวณโดยรอบอาคาร เพื่อลดความร้อนจากภายนอกสู่ตัวอาคาร

    ภาพจำลองโครงการมุมมองจากถนนแจ้งวัฒนะ

    โมเดลโครงการมุมมองจากทิศตะวันตกเฉียงใต้ฝั่งถนนแจ้งวัฒนะขาออก

    โมเดลโครงการมุมมองจากทางฝั่งทิศตะวันออกเฉียงเหนือ

    โมเดลโครงการมุมมองจากทางฝั่งทิศตะวันออกเฉียงเหนือ

    โมเดลโครงการมุมมองจากทางฝั่งทิศตะวันตกเฉียงเหนือ

    มาสเตอร์แพลนแสดงที่ตั้งของชั้น 1 ของโครงการ
    ซึ่งประกอบด้วย ร้านค้า, Lobby และพื้นที่จอดรถโดยรอบอาคาร
    (คลิกเพื่อดูภาพมาสเตอร์แพลนขนาดใหญ่ของโครงการ)

    มาสเตอร์แพลนแสดงที่ตั้งของ Facility ของโครงการ 
    ตั้งอยู่บนชั้น 6 ของอาคาร ซึ่งประกอบด้วย Fitness, Swimming Pool
    และ Sauna แยกชาย-หญิง โดยชั้นนี้จะมีห้องอยู่เพียง 13 ยูนิต เท่านั้น
    (คลิกเพื่อดูภาพ Floor Plan ขนาดใหญ่ของชั้น 6)

    มาสเตอร์แพลนแสดงที่ตั้ง ชั้น 7-29 ของโครงการ
    อาคารนี้ในแต่ละชั้นมีห้องอยู่ 17 ยูนิต มีลิฟต์โดยสาร 3 ตัว
    (สัดส่วนการใช้งานลิฟต์อยู่ที่ 134 ยูนิตต่อลิฟต์หนึ่งตัว)

    (คลิกเพื่อดูภาพ Floor Plan ขนาดใหญ่ของชั้น 7-29) 

    มาสเตอร์แพลนแสดงที่ตั้งของชั้น 30 หรือชั้นดาดฟ้า
    ซึ่งบนชั้นนี้ประกอบด้วย Sky Lounge, สวนลอยฟ้า
    (คลิกเพื่อดูภาพ Floor Plan ขนาดใหญ่ของชั้น 30)

    ภาพจำลองที่ตั้งของอาคารต่างๆ ในพื้นที่โครงการ 
    และตำแหน่งของอาคารต่างๆ ที่ตั้งอยู่แวดล้อมโครงการ

    ภาพหน้าโครงการปัจจุบัน

    เมื่อเลี้ยวเข้ามาในโครงการจะเจอกับพื้นที่จอดรถซึ่งอยู่ทางด้านซ้ายมือ
    ในอนาคตฝั่งนี้จะเป็นด้านที่มีร้านค้า ซึ่งมีด้วยกัน 6 ยูนิต บริเวณชั้น 1 ของโครงการ
    ส่วนทางด้านขวาจะเป็นที่ตั้งของสำนักงานขาย

    เดินเลยเข้ามาอีกหน่อยจะเจอกับภาพของแปลงที่ดินโครงการฝั่งซ้ายมือ ติดกับที่ดินเปล่า

    ขยับมาดูแปลงที่ดินด้านหลังกันค่ะ ด้านหลังโครงการก็ติดกับที่ดินเปล่าเช่นกันค่ะ
    ส่วนที่เห็นฝั่งขวามือนั้นเป็นโรงงานค่ะ ความสูงน่าจะประมาณตึก 3 ชั้น 

    มาดูด้านแปลงที่ดินฝั่งขวากันค่ะ ฝั่งขวานี้จะติดกับอาคารพาณิชย์สูง 2 ชั้น และอาคารโรงงานสูง 3 ชั้น 
    ในอนาคตบริเวณฝั่งขวานี้จะเป็นฝั่งที่มี Facility ซึ่งจะอยู่บริเวณชั้น 6 ของโครงการ

    มุมด้านหลังของสำนักงานขาย มองออกไปถนนแจ้งวัฒนะด้านหน้าโครงการจุดนี้จะเป็นพื้นที่ด้านหน้า
    ของโครงการบริเวณจุด Drop Off และบริเวณ Lobby ส่วนประตูเข้า-ออกโครงการที่เห็นในภาพ
    เป็นตำแหน่งเดียวกันกับของจริงแต่ในอนาคตจะขยายให้มีความกว้างถึง 9 เมตร

    เดินย้อนมาดูทางด้านหน้าของโครงการกันบ้างค่ะ
    หากเดินย้อนออกมาทางประตูก็จะเจอกับทางเข้าสำนักงานขายที่อยู่ทางซ้ายมือ 

    ตัวสำนักงานขายตกแต่งด้วยกระจกใสบานใหญ่สามารถมองเห็นห้องตัวอย่างที่อยู่ด้านในได้อย่างชัดเจน
    ส่วนด้านหน้าก็ประดับตกแต่งด้วยต้นไม้เล็กๆ เพื่อเพิ่มความสดชื่น

    เปิดประตูเข้ามาดูบรรยากาศภายในสำนักงานขายกันค่ะ

    เมื่อเข้ามาในสำนักงานขายจะเจอกับห้องตัวอย่างซึ่งตั้งอยู่บริเวณซ้ายมือ
    โดยมีห้องตัวอย่างให้ชมด้วยกัน 2 แบบ คือ STUDIO และ 1 BEDROOM

    สเปคเฟอร์นิเจอร์ของแถมแบบ Fully Furnished ที่ทางศุภาลัยจัดให้ลูกค้าในแต่ละแบบห้อง

    อีกมุมหนึ่งของบรรยากาศภายในสำนักงานขาย มีเก้าอี้สไตล์โมเดิร์นเก๋ๆ พร้อมน้ำดื่นเย็นๆ ไว้คอยบริการ
    ส่วนกลางและสิ่งอำนวยความสะดวก
    • สระว่ายน้ำ Infinity Edge ขนาด 17.9 x 7.7 เมตร ลึก 1.10 เมตร
    • สระว่ายน้ำเด็ก ขนาด 4 x 2.9 เมตร ลึก 0.70 เมตร
    • ห้องออกกำลังกายพร้อมอุปกรณ์ (Fitness Room) มุมมอง 360 องศา ขนาด 13.8 x 4.2 เมตร
    • ซาวน่า แยกชาย-หญิง
    • Sky Lounge ชั้นดาดฟ้า
    • สวนลอยฟ้า และสวนหย่อมสีเขียวรอบๆ โครงการ
    • กล้องวงจรปิด CCTV พร้อม รปภ. ตลอด 24 ชั่วโมง
    • Hi-Speed Internet Broadband
    • ระบบป้องกันอัคคีภัย Smoke&Heat Detector และ Fire Alarm
    • พื้นที่จอดรถยนต์บนชั้น 2-5 ของอาคาร และบริเวณโดยรอบโครงการ รวมประมาณ 142 คัน (รวมจอดซ้อนคัน)
    • ร้านค้าภายในโครงการ
    • ลิฟต์โดยสาร 3 ตัว และลิฟต์บริการ 1 ตัว

    โมเดลจำลองตำแหน่งสิ่งอำนวยความสะดวกภายในใครงการ

    โมเดลจำลองตำแหน่งประตูทางเข้าความกว้างขนาด 9 เมตร จากจุดนี้เมื่อเข้ามาทางขวาจะเป็นจุด Drop off
    ซึ่งอยู่บริเวณด้านหน้า Lobby และ Office นิติบุคคลของโครงการ

    โมเดลจำลองตำแหน่งทางขึ้น-ลงลานจอดรถบริเวณชั้น 1 และพื้นที่จอดรถบริเวณชั้น 2 - 5
    โดยจากมุมนี้สามารถมองเห็นสระว่ายน้ำ และห้องออกกำลังกายบริเวณชั้น 6 ด้วย
    ซึ่งทั้งหมดอยู่ทางฝั่งขวาของโครงการ

    โมเดลจำลองพื้นที่จอดรถบริเวณใต้อาคารด้านหลังของโครงการ
    และตำแหน่งห้องซาวน่าบริเวณชั้น 6

    โมเดลจำลองพื้นที่จอดรถบริเวณใต้อาคารด้านซ้ายของโครงการ

    โมเดลจำลองตำแหน่งร้านค้า จำนวน 6 ยูนิต ซึ่งตั้งอยู่ด้านหน้าบริเวณฝั่งซ้ายของโครงการ

    โมเดลจำลองตำแหน่งสระว่ายน้ำ, ห้องออกกำลังกาย และห้องซาวน่า ซึ่งตั้งอยู่บนชั้น 6

    ภาพจำลองบรรยากาศสระว่ายน้ำแบบ Infinity Edge Pool ระบบน้ำเกลือ

    ภาพจำลองบรรยากาศภายในห้อง Fitness Room แบบกระจกรอบด้าน ขนาด 13.8 x 4.2 ตร.ม.

    โมเดลจำลอง Roof Garden สวนลอยฟ้าบนชั้น 30 สำหรับชมวิวเมืองแบบพาโนราม่า

    โมเดลจำลอง Sky Lounge พื้นที่สำหรับพักผ่อนในบรรยากาศแบบลอยฟ้า

    ภาพจำลองบรรยากาศ Sky Lounge บนดาดฟ้าชั้น 30 

    ภาพจำลองบรรยากาศ Lobby ซึ่งอยู่บริเวณชั้น 1 ของโครงการ
    ภาพห้องตัวอย่างและ Lay out
    โครงการมีห้อง 13 ขนาดดังนี้
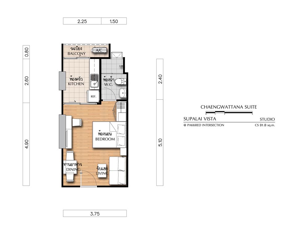
    1. CHAENGWATTANA SUITE ห้องสตูดิโอ (1 ห้องน้ำ, 1 ห้องครัว) - เนื้อที่ 31.00 ตร.ม.
      (คลิกเพื่อชมแปลนห้องขนาดใหญ่)
    2. CHAENGWATTANA SUITE (s) ห้องสตูดิโอ (1 ห้องน้ำ, 1 ห้องครัว) - เนื้อที่ 32.50 ตร.ม.
      (คลิกเพื่อชมแปลนห้องขนาดใหญ่)
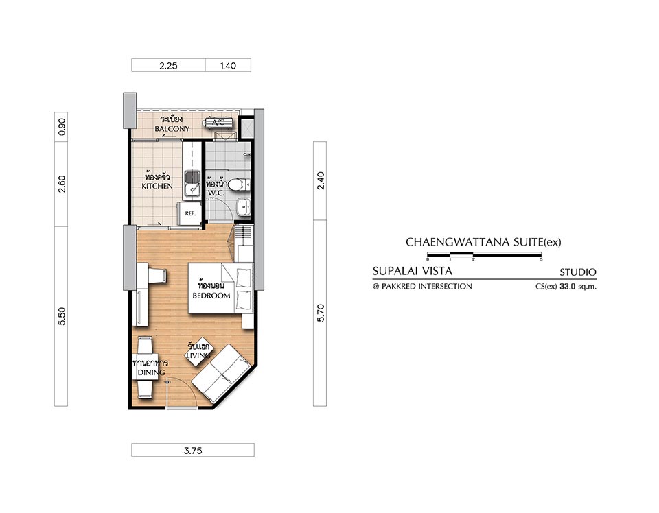
    3. CHAENGWATTANA SUITE (ex) ห้องสตูดิโอ (1 ห้องน้ำ, 1 ห้องครัว) - เนื้อที่ 33.00 ตร.ม.
      (คลิกเพื่อชมแปลนห้องขนาดใหญ่)
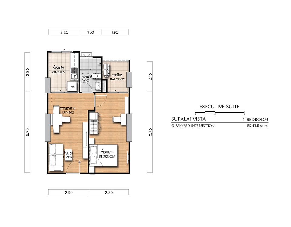
    4. EXECUTIVE SUITE ห้องแบบ 1 BEDROOM (1 ห้องนอน, 1 ห้องน้ำ, 1 ห้องครัว) - เนื้อที่ 47.00 ตร.ม.
      (คลิกเพื่อชมแปลนห้องขนาดใหญ่)
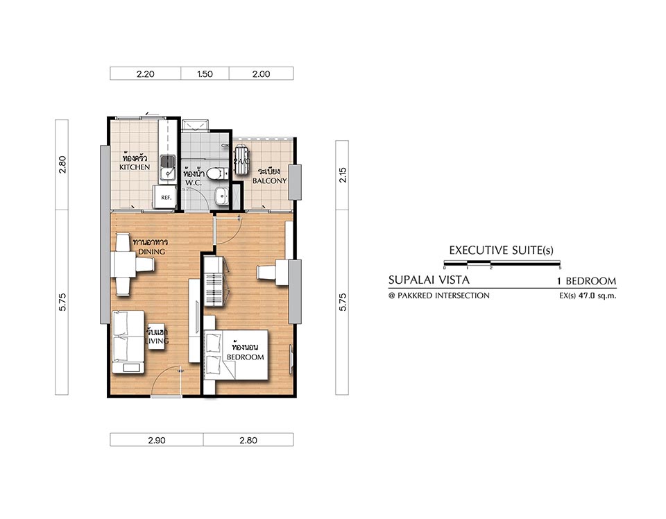
    5. EXECUTIVE SUITE (s) ห้องแบบ 1 BEDROOM (1 ห้องนอน, 1 ห้องน้ำ, 1 ห้องครัว) - เนื้อที่ 47.00 ตร.ม.
      (คลิกเพื่อชมแปลนห้องขนาดใหญ่)
    6. EXECUTIVE SUITE (es) ห้องแบบ 1 BEDROOM (1 ห้องนอน, 1 ห้องน้ำ, 1 ห้องครัว) - เนื้อที่ 47.00 ตร.ม.
      (คลิกเพื่อชมแปลนห้องขนาดใหญ่)
    7. EXECUTIVE SUITE (ex) ห้องแบบ 1 BEDROOM (1 ห้องนอน, 1 ห้องน้ำ, 1 ห้องครัว) - เนื้อที่ 47.50 ตร.ม.
      (คลิกเพื่อชมแปลนห้องขนาดใหญ่)
    8. EXECUTIVE SUITE (dl) ห้องแบบ 1 BEDROOM (1 ห้องนอน, 1 ห้องน้ำ, 1 ห้องครัว) - เนื้อที่ 48.50 ตร.ม.
      (คลิกเพื่อชมแปลนห้องขนาดใหญ่)
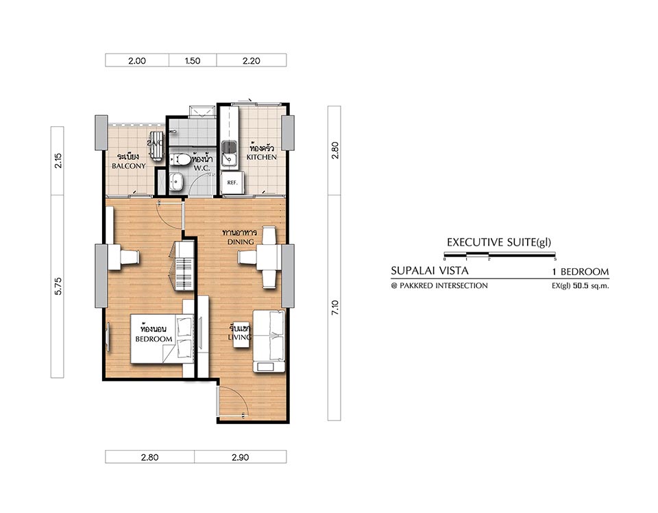
    9. EXECUTIVE SUITE (gl) ห้องแบบ 1 BEDROOM (1 ห้องนอน, 1 ห้องน้ำ, 1 ห้องครัว) - เนื้อที่ 50.50 ตร.ม.
      (คลิกเพื่อชมแปลนห้องขนาดใหญ่)
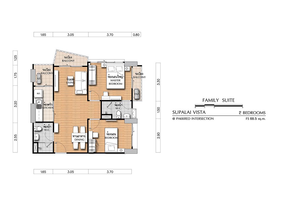
    10. FAMILY SUITE ห้องแบบ 2 BEDROOM (2 ห้องนอน, 2 ห้องน้ำ, 1 ห้องครัว) - เนื้อที่ 66.50 ตร.ม.
      (คลิกเพื่อชมแปลนห้องขนาดใหญ่)
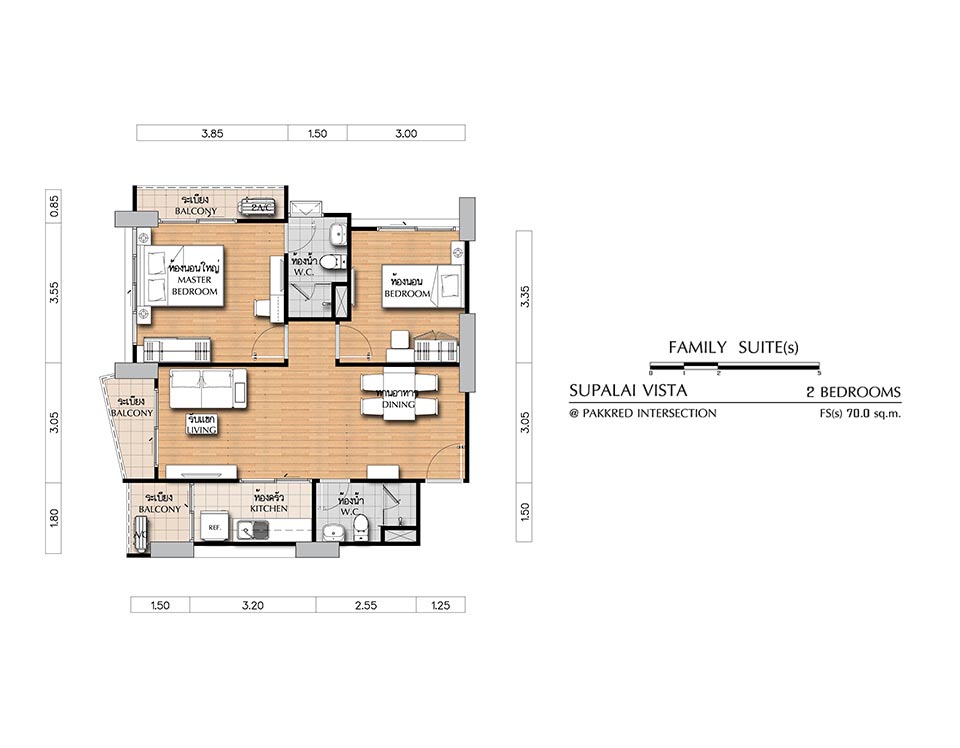
    11. FAMILY SUITE (s) ห้องแบบ 2 BEDROOM (2 ห้องนอน, 2 ห้องน้ำ, 1 ห้องครัว) - เนื้อที่ 70.00 ตร.ม.
      (คลิกเพื่อชมแปลนห้องขนาดใหญ่)
    12. FAMILY SUITE (ex) ห้องแบบ 2 BEDROOM (2 ห้องนอน, 2 ห้องน้ำ, 1 ห้องครัว) - เนื้อที่ 71.10 ตร.ม.
      (คลิกเพื่อชมแปลนห้องขนาดใหญ่)
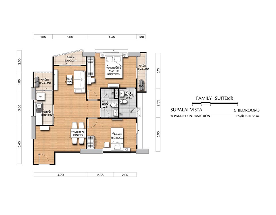
    13. FAMILY SUITE (dl) ห้องแบบ 2 BEDROOM (2 ห้องนอน, 2 ห้องน้ำ, 1 ห้องครัว) - เนื้อที่ 79.00 ตร.ม.
      (คลิกเพื่อชมแปลนห้องขนาดใหญ่)

    แปลนห้องแบบ 1 ห้องนอน ขนาด 47 ตร.ม.

    โมเดลห้องตัวอย่างแบบ EXECUTIVE SUITE

    เปิดประตูเข้ามาจะเห็นห้องรับแขกทะลุยาวไปจนถึงห้องครัว และห้องน้ำติดกัน

    มุมมองจากฝั่งของโซฟามีระยะห่างระหว่างทีวีพอสมควรค่ะ สำหรับห้องรับแขกได้แอร์ Trane ขนาด 15000 BTU

    สัดส่วนของเฟอร์นิเจอร์บิ้วท์อินที่โครงการให้มายังมีพื้นที่เหลือด้านข้างทั้งซ้ายและขวาพอที่สามารถจัด
    ชั้นวางของหรือตู้หนังสือได้อีกหน่อยค่ะ ตัวบิ้วท์อินลอยขึ้นจากพื้นนิดหน่อยทำความสะอาดสะดวกมากค่ะ

    ชุดบิ้วท์อินเป็นเมลามีนสีทูโทนด้านล่างเป็นลิ้นชัก ติดกันเป็นตู้วางรองเท้าไซส์มินิ ด้านบนเหนือทีวีเป็น
    ตู้ใส่ของลอยติดผนัง ถัดลงไปเป็นตู้ช่องโล่งเล็กๆ สำหรับตกแต่งวางของเล็กๆ น้อยๆ 

    พื้นไม้ลามิเนตสำเร็จรูปสีโอ๊ค ใกล้กันกับโต๊ะรับประทานอาหารเป็นหัองครัวมีกระจกบานเลื่อนกั้นโซน

    ชุดโต๊ะ+เก้าอี้สีเข้ากันกับพื้นห้องถูกวางอยู่ระหว่างโซฟากับห้องครัว ให้เก้าอี้ 3 ตัว
    แถมเหลือพื้นที่ก่อนถึงประตูครัวอีก จัดปาร์ตี้เล็กๆ ได้เลยค่ะ

    สัดส่วนหน้ากว้างห้องครัวกับห้องน้ำ

    ดีไซน์ครัวแบบปิดมีขนาดความกว้าง 2.25 เมตร โครงการนี้เอาตู้เย็นมาวางไว้ติดกับ Pantry
    สะดวกต่อการหยิบจับเวลาทำอาหารดีค่ะ

    ชุดบิ้วท์อินห้องครัวเป็นของ Starmark ส่วน Top ครัวเป็นลามิเนต ได้อ่างล้างจาน+ก็อกน้ำของ MEX
    มีหน้าต่างเป็นกระจกใสสำหรับเปิดระบายอากาศ

    Shower Box ใหญ่พอสมควรไม่อึดอัด แยกพื้นที่ส่วนแห้ง-เปียกด้วยประตูบานเลื่อนอลูมิเนียมของ Overseas
    ส่วนสุขภัณฑ์ให้ Cotto หรือเทียบเท่าค่ะ

    ถัดมาเป็นห้องนอนกว้าง 5.75 เมตร เปิดประตูเข้ามาเจอชั้นบิ้วท์อินที่ติดกับโต๊ะเครื่องแป้งก่อนเลย มีระเบียงให้ในตัว

    มองจากหน้าประตูระเบียงห้องนอนขวาเป็นตู้เสื้อผ้าหน้าบานกระจกเงาซ้ายเป็นโต๊ะเครื่องแป้งและชุดบิ้วท์อิน

    เตียงนอนอเนกประสงค์ขนาด 5 ฟุต มีลิ้นชักสำหรับเก็บของ
    ปลายเตียงมีระยะให้เดินผ่านแบบสบาย  พร้อมโต๊ะข้างเตียงทั้ง 2 ฝั่ง

    ตู้เสื้อผ้าบานสวิง 3 บานจัดวางใกล้กับประตูห้อง

    ระเบียงกว้าง 1.95 เมตร ถือว่ากว้างเลยค่ะ ลองคิดเล่นๆ ถ้าเอาเครื่องซักผ้ากับราวตากผ้าไปวาง
    ก็ยังมีพื้นที่เหลืออีกพอสมควร กั้นด้วยชุดประตูกระจกบานเลื่อนกรอบอลูมิเนียม

    ในห้องนอนให้แอร์ Trane ขนาด 12000 BTU
    ราคาและค่าใช้จ่ายที่เกี่ยวข้องโดยประมาณ (15 ส.ค. 57)
    ราคา (ณ 15 ส.ค. 57) เริ่มต้น 1.63 - 4.49 ล้านบาท
    ตัวอย่างราคาห้อง
    • ห้องสตูดิโอ แบบ SUKHUMVIT SUITE, (s), (ex)
      ขนาด 33.5 ตร.ม. ราคาเริ่มต้น 1.63 - 2.08 ล้านบาท
      จอง 10,000 บาท, ทำสัญญา 59,000 บาท, ดาวน์ 32 งวด งวดละ 5,900 บาท
    • ห้อง 1 ห้องนอน แบบ EXECUTIVE SUITE, (s), (ex), (gl), (dl)
      ขนาด 47.0 - 50.5 ตร.ม. ราคาเริ่มต้น 2.35 - 3.17 ล้านบาท
      จอง 10,000 บาท, ทำสัญญา 89,000 บาท, ดาวน์ 32 งวด งวดละ 8,900 บาท
    • ห้อง 2 ห้องนอน แบบ FAMILY SUITE, (s), (ex), (dl)
      ขนาด 68.5 - 79.0 ตร.ม. ราคาเริ่มต้น 3.60 - 4.94 ล้านบาท
      จอง 20,000 บาท, ทำสัญญา 129,000 บาท, ดาวน์ 32 งวด งวดละ 12,900 บาท
    • ร้านค้า
      ขนาด 30.0 - 45.0 ตร.ม. ราคาเริ่มต้น 33.19 - 4.49 ล้านบาท
      จอง 20,000 บาท, ทำสัญญา 129,000 - 179,000 บาท, ดาวน์ 32 งวด งวดละ 12,900 - 17,900 บาท
    ค่าใช้จ่ายอื่นๆ ของโครงการ
    • ค่าส่วนกลาง 35 บาท/ตร.ม./เดือน ชำระล่วงหน้า 1 ปี ณ วันโอนกรรมสิทธิ์
    • เงินกองทุนส่วนกลาง 350 บาท/ตร.ม. ชำระ ณ วันโอนกรรมสิทธิ์
    • ค่าธรรมเนียมการโอนกรรมสิทธิ์ ผู้ซื้อและผู้ขายแบ่งชำระกันคนละครึ่ง
    • ค่ามิเตอร์ไฟฟ้า ผู้จะซื้อเป็นผู้ชำระ
    • ค่าเงินประกันมิเตอร์น้ำ ผู้จะซื้อเป็นผู้ชำระ
    ของแถมมาตรฐาน*
    • แอร์ยี่ห้อ TRANE แบบ Wall Type
    • วอลเปเปอร์สีอ่อนแบบเดียวกับห้องตัวอย่าง
    • ชุดเฟอร์นิเจอร์ Pantry ครัว
    • เครื่องทำน้ำอุ่นในห้องน้ำ
    • ฉากกั้นอาบน้ำแบบกระจกนิรภัย
    Promotion พิเศษ! Your Free Choice ให้เลือกอย่างใดอย่างหนึ่งระหว่าง 1 หรือ 2 ข้างล่างนี้
    1. ของแถมมาตรฐาน* + ส่วนลดจำนวนหนึ่ง + ตกแต่งแบบ Fully Furnished ตามห้องตัวอย่าง หรือ
    2. เลือกรับของแถมมาตรฐาน* + พร้อมส่วนลดพิเศษ 160,000 - 300,000 บาท
    ภาพรวมโดยสรุปของโครงการ
    • การเดินทางเข้าออกโครงการ - ในแง่ของการเดินทางด้วยรถยนต์ส่วนตัว ถือว่าสะดวกทีเดียว เพราะสามารถเข้าออกได้หลากหลายเส้นทาง ทั้งจากถนนแจ้งวัฒนะ วิ่งไปขึ้นทางด่วนแจ้งวัฒนะตรง IMPACT เมืองทองฯ เพื่อเข้าเมือง โดยระยะห่างจากโครงการประมาณ 3.9 กม. แต่ช่วงที่เมืองทองฯ มีงานบริเวณนี้อาจจะติดมากหน่อย หรือจะมาจากแยกแครายวิ่งเส้นถนนติวานนท์ เพื่อเลี้ยวขวาตรงแยกเพื่อเข้าโครงการ แต่รถอาจจะติดบริเวณห้าแยกปากเกร็ด อาจหลบเลี่ยงด้วยการวิ่งลอดอุโมงห้าแยกปากเกร็ด แล้วมากลับรถบริเวณหน้าโรงเรียนสวนกุหลาบนนทบุรี แล้ววิ่งชิดซ้ายผ่านตลาดมายังโครงการ นอกจากนี้โครงการยังไม่ไกลจากสะพานพระราม 4 สามารถใช้เส้นทางนี้วิ่งไปออกชัยพฤกษ์เชื่อมต่อเข้าถนนราชพฤกษ์เพื่อเข้ามาฝั่งธนบุรีก็ได้  นอกจากรถส่วนตัวแล้วการเดินทางด้วยรถตู้ และเรือก็เป็นอีกทางเลือกที่น่าสนใจ โดยมีบริการรถตู้ให้เลือกหลากหลายเส้นทาง สามารถขึ้นได้จากปั๊ม ปตท. ที่อยู่ห่างจากโครงการประมาณ 90 เมตร ส่วนท่าเรือปากเกร็ดนั้นอยู่ห่างจากโครงการประมาณ 1.5 กม. ถือเป็นแหล่งรวมของกินของใช้ และรถประจำทางหลากหลายประเภท และอีก 3-4 ปีรถไฟฟ้า MRT สายสีชมพู (ซึ่งสถานีใกล้สุดคือ สถานีปากเกร็ดน่าจะห่างจากโครงการประมาณ 200 เมตร) ก็จะสร้างเสร็จแล้วประมาณปี 2560 นี้ เมื่อถึงวันนั้นคาดว่าน่าจะเพิ่มความสะดวกในการเดินทางได้มากยิ่งขึ้นไปอีก
    • ทำเลรอบโครงการ - ในส่วนของทำเลรอบๆ โครงการนั้น ด้านหน้าติดถนนแจ้งวัฒนะและสะพานข้ามแยกปากเกร็ด ส่วนด้านข้างเป็นที่ดินเปล่า และโรงงานเตี้ยๆ สูงเพียง 3 ชั้นเท่านั้น โดยระยะที่พอเดินจากโครงการได้จะมีแหล่งช้อปปิ้งและของกินพอสมควร ทั้ง 7-Eleven และร้านข้าวเล็กๆ ภายในปั๊มปตท. และร้านอาหารไก่ตะกร้า ซึ่งอยู่ห่างจากโครงการเพียง 300 เมตร และระยะ 2-3 ป้ายรถเมล์ก็ยังมีห้างบิ๊กซีเอ็กซ์ตร้าอีกด้วย และหากนั่งรถไปบริเวณตลาดเก่าท่าเรือปากเกร็ดที่นี่ต้องบอกว่าของกินของใช้อุดมสมบูรณ์มากเลยทีเดียว
    • อาคารและตัวโครงการโดยรวม -โดยรวมดีไซน์ของตัวอาคารยังคงเป็นแบบเรียบง่ายใช้สีโทนอ่อน เน้นความเป็นอาคารประหยัดพลังงานตามสไตล์ศุภาลัย กับอาคาร High-Rise รูปทรงตัว L สูง 30 ชั้น จำนวน 1 อาคาร ซึ่งถือว่าเป็นคอนโดที่สูงที่สุดเมื่อเที่ยบกับคู่แข่งบริเวณนั้น โดดเด่นด้วย Sky Lounge และ Roof Garden บริเวณชั้น 30 ของดาดฟ้า สามารถขึ้นมานั่งเล่นพักผ่อนและชมวิวโดยรอบได้แบบ 360 องศา นอกจากนี้ยังมีสิ่งอำนวยความสะดวกทั้งซาวน่า ฟิตเนส สระว่ายน้ำ โดยสัดส่วนของการใช้ลิฟต์ถือว่าพอใช้ได้ไม่หนาแน่น อยู่ที่ประมาณ 134 ยูนิตต่อลิฟต์ 1 ตัวในส่วนที่จอดรถทั้งบนอาคารและรอบๆ อาคารรวมประมาณ 142 คัน (รวมจอดซ้อนคัน) ถือว่าค่อนข้างหนาหนาแน่น และอาจแย่งกันจอดได้
    • รูปแบบห้องและวัสดุ - ห้องของโครงการนี้มี 3 แบบหลักๆ คือห้องแบบสตูดิโอ ห้องแบบ 1 Bedroom และห้องแบบ 2 ห้องนอน ส่วนแปลนห้องนั้นมีให้เลือกถึง 13 แบบ (แตกต่างกันเพียงเล็กน้อยตรงขนาดของพื้นที่ใช้สอยในแต่ละยูนิต) แบบห้องของศุภาลัยก็ยังคงคล้ายกับโครงการอื่นๆ ก่อนหน้านี้ จะไม่หวือหวา ดีไซน์ธรรมดา แต่ก็ถือว่ามีจุดเด่นในเรื่องของการแบ่งพื้นใช้สอยที่ทำได้อย่างลงตัว คำนึงถึงการใช้งานจริง อย่างการแบ่งฟังก์ชันพื้นที่ครัว และห้องน้ำให้แยกออกจากพื้นที่ส่วนพักผ่อนทำให้ตัดปัญหาเรื่องกลิ่นในการทำอาหาร ในส่วนของวัสดุที่ให้นั้น อยู่ในระดับปานกลางเมื่อเทียบกับราคาคอนโด ตัวอย่างเช่น เฟอร์นิเจอร์ของ Starmark สุขภัณฑ์ของ Cotto ก๊อกน้ำและซิงค์ล้างจานของ Mex หรือยี่ห้อที่เที่ยบเท่า เป็นต้น
    • ราคา - ราคาเฉลี่ยต่อตารางเมตรของโครงการนี้มีตั้งแต่ 47,200 บาทไปจนถึง 62,500 บาท  (ขึ้นอยู่กับขนาดของห้อง ชั้น และโปรโมชั่นของแถม) ซึ่งถือว่าเป็น Range ราคาที่น่าสนใจสำหรับคอนโดติดรถไฟฟ้า (ในอนาคต) เช่นนี้ โดยรวมแล้ว โครงการนี้ก็ถือเป็นตัวเลือกที่น่าสนใจอีกโครงการหนึ่งสำหรับคนที่มองหาคอนโดมิเนียมในย่านปากเกร็ดแห่งนี้
    สถานะปัจจุบันของโครงการ (15 ส.ค. 57)
    ปัจจุบันทางโครงการเปิดให้ผู้ที่สนใจสามารถเข้าเยี่ยมชมห้องตัวอย่างได้ที่สำนักงานขายซึ่งตั้งอยู่บนที่ดินจริงของทางโครงการบนถนนแจ้งวัฒนะบริเวณใกล้ห้าแยกปากเกร็ด แต่อาจจะยังไม่ได้เปิดให้จองห้องได้ทุกห้องของโครงการ โดยเปิดให้จองเฉพาะชั้นที่เป็นเลขคี่เท่านั้น โดยในวันเสาร์ที่ 23 - 24 ส.ค. 57 ทางโครงการจะจัดงาน PRE-SALES อย่างเป็นทางการ และเปิดให้ลูกค้าที่สนใจห้องของโครงการทั่วไปสามารถเข้าจองห้องที่ชอบได้ทุกห้องและทุกชั้น พร้อมรับโปรโมชั่น Your Free Choice ส่วนลดเงินสดพร้อมเฟอร์นิเจอร์แต่งครบได้ภายในงานนี้ค่ะ
    ติดต่อโครงการ โทร. 02-583-8999 หรือ 1720 กด 92

    รีวิว-พรีวิวล่าสุดอื่นๆ

    คอนโดติดรถไฟฟ้าล่าสุด

เว็บไซต์นี้มีการเก็บคุกกี้เพื่อเพิ่มความพึงพอใจในการใช้งานเว็บไซต์ และช่วยให้เราปรับปรุง และนำเสนอเนื้อหาตรงตามความสนใจของท่าน ท่านสามารถดู Privacy Notice และ ดู Cookies Policy ของเราได้ ที่นี่ ทั้งนี้ ท่านจะยินยอมให้เราเก็บคุกกี้ทั้งหมด หรือให้เก็บแค่บางส่วนโดยการคลิกเลือก ตั้งค่า

ท่านสามารถเลือกให้ความยินยอมการเก็บคุกกี้เป็นเรื่องๆ ได้ที่นี่

เมื่อคุณเข้าชมเว็บไซต์ หรือแอปพลิเคชั่น checkraka เราอาจจัดเก็บ หรือดึงข้อมูลจากเบราว์เซอร์ของคุณในรูปแบบของคุกกี้ และเทคโนโลยีอื่นที่คล้ายคลึง เช่น tag และ pixel (เรียกรวมกันว่า “คุกกี้”) ซึ่งมักเป็นข้อมูลที่ไม่สามารถระบุตัวตนได้โดยตรง แต่ช่วยให้คุณใช้งานเว็บไซต์ได้ปลอดภัย และตรงตามความต้องการมากขึ้น คุณอาจไม่ยินยอมให้เราเก็บคุกกี้บางประเภทได้ โดยการคลิกตามหัวข้อข้างล่างนี้

ประเภทคุกกี้
อ่านเพิ่มเติม ที่นี่
ยินยอม / ไม่ยินยอม
คุกกี้ที่จำเป็นต้องมีเสมอ
(Strictly Necessary)
คุกกี้สำหรับการใช้งานเว็บไซต์
(Functionality)
คุกกี้เพื่อเพิ่มประสิทธิภาพและวิเคราะห์
(Performance & Analytics)
คุกกี้เพื่อการตลาด
(Marketing)