
เยี่ยมชม-รีวิว โครงการ "ศุภาลัย เวอเรนด้า รัชวิภา-ประชาชื่น"
ห่างหายกันไปเกือบ 1 เดือนจากการพาท่านผู้อ่านไปเยี่ยมชมโครงการคอนโด วันนี้ทีมงาน Checkraka.com พาท่านไปเยี่ยมชมโครงการคอนโดที่กำลังเป็นที่พูดถึงกันอย่างกว้างขวางอีกแห่งอย่างโครงการ
"ศุภาลัย เวอเรนด้า รัชวิภา-ประชาชื่น" คอนโดโปรเจคยักษ์ติดถนนใหญ่ประชาชื่น
ว่าเเล้วก็อย่าพูดพร่ำทำเพลงกันอีกเลย เชิญท่านผู้อ่านไปเยี่ยมชมโครงการนี้พร้อมๆ กันก่อนงานเปิดตัวอย่างเป็นทางการของโครงการในวันเสาร์และอาทิตย์ที่ 23-24 พ.ย. 56 นี้กันเลยดีกว่า
ข้อมูลโครงการศุภาลัย เวอเรนด้า รัชวิภา-ประชาชื่นโดยรวม
- เจ้าของโครงการ: บริษัท ศุภาลัย จำกัด (มหาชน)
- ที่ตั้งโครงการ: ติดถนนใหญ่ประชาชื่น แขวงบางซื่อ เขตบางซื่อ กรุงเทพมหานคร
- พื้นที่โครงการรวม: 11-3-55 ไร่
- อาคารชุดพักอาศัยสูง 29 ชั้น 1 อาคาร แบ่งพื้นที่ 3 ส่วน คือ ส่วน East Wing, Center Wing และ West Wing
- ยูนิตพักอาศัยรวม 1,705 ยูนิต และยูนิตร้านค้า 26 ยูนิต
- ห้องชุดมี 3 แบบ สตูดิโอ, 1 ห้องนอน, 2 ห้องนอน และ 3 ห้องนอน ขนาดตั้งแต่ 31.50 - 120.0 ตร.ม.
บริษัท ศุภาลัย จำกัด (มหาชน) เป็นบริษัทที่อยู่ในวงการธุรกิจอสังหาริมทรัพย์มาเป็นเวลากว่า 24 ปีแล้ว (ก่อตั้ง 26 มิถุนายน 2532) ปัจจุบันเป็นบริษัทมหาชนที่จดทะเบียนในตลาดหลักทรัพย์แห่งประเทศไทย มีทุนจดทะเบียน ณ เดือนพฤศจิกายน 2556 ทั้งสิ้น 1,770 ล้านบาท (ชำระแล้ว 1,716.55 ล้านบาท) มีผลงานในวงการอสังหาริมทรัพย์ทั้งในแนวราบ (บ้านและทาวน์โฮม) และแนวดิ่ง (คอนโดมิเนียม โรงแรม และสำนักงานให้เช่า) ตั้งแต่อดีต จนถึงปัจจุบันกว่า 100 โครงการทั้งในกรุงเทพฯ และต่างจังหวัดในเมืองใหญ่ทั่วประเทศ เช่น เชียงใหม่ ภูเก็ต หาดใหญ่ ชลบุรี พัทยา ระยอง ขอนแก่น และอุดรธานี เป็นต้น โดยเมื่อปี 2555 ที่ผ่านมา บริษัทได้รับการจัดอันดับเครดิตองค์กรโดย "TRIS RATING" อยู่ที่ระดับ "A-"
ติดถนนใหญประชาชื่น แขวงบางซื่อ เขตบางซื่อ กรุงเทพมหานคร (แปลงที่ดินเคยเป็นอู่รถเมล์ชื่ออู่ศรีณรรงค์มาก่อน โดยจะตั้งอยู่ตรงข้ามเยื้องๆ โรงเรียนเทคนิควิมลพาณิชยการนิดหน่อย)
แผนที่โครงการศุภาลัย เวอเรนด้า รัชวิภา-ประชาชื่น

แผนที่โครงการเพือให้เห็นระยะห่างของโครงการ และสถานที่ต่างๆ
การเดินทางค่อนข้างสะดวกมีทางเลือกในการเดินทางอยู่ 3 รูปแบบหลักๆ คือ
- รถสาธารณะ
- รถยนต์ส่วนตัว
- รถไฟฟ้าสายสีม่วง และรถไฟฟ้าสายสีแดงอ่อนซึ่งคาดว่าจะเปิดพร้อมใช้ปี 2560
1. รถสาธารณะ
จุดเด่นของ เวอเรนด้า รัชวิภา-ประชาชื่นข้อนึงคือ มีป้ายรถเมล์, วินมอเตอร์ไซค์, 7-Eleven อยู่ตรงหน้าโครงการเลย ทำให้สะดวกมาก เหตุผลน่าจะเป็นเพราะบริเวณที่ตั้งโครงการเคยเป็นอู่รถเมล์ศรีณรงค์มาก่อน ทำให้เป็นชุมทางของรถสาธารณะหลายสาย
ทางเลือกในการเดินทางด้วยรถสาธารณะได้แก่ - รถประจำทาง - สายที่ผ่าน เช่น 16, 66, 67, 70, ปอ.16, ปอ.66, ปอ.67 และปอ.70 ป้ายรถเมล์อยู่หน้าโครงการเลย
- รถสองแถว - ไป แยกเตาปูน, โลตัสเตาปูน, แยกพงษ์เพชร และ The Mall งามวงศ์วาน รถจอดรับตรงป้ายรถเมล์หน้าโครงการ
- วินมอเตอร์ไซค์ - วินมอเตอร์ไซค์อยู่ตรงหน้าโครงการเช่นกัน

ป้ายรถเมล์อยู่หน้าโครงการเลย

รถสองแถวผ่านด้านหน้าโครงการพอดี
2. รถยนต์
การเดินทางด้วยรถยนต์ค่อนข้างสะดวกเนื่องจากใกล้กับทางด่วนขั้นที่ 2 เพียงลงทางด่วนตรงด่านรัชดาภิเษกแล้วเลี้ยวซ้ายผ่านตลอดตรงแยกประชากูลตรงมาเรื่อยๆก็จะถึงโครงการแล้ว นอกจากนั้นยังสามารถทะลุจากเส้นประชาชื่นไปถนนกรุงเทพ-นนทบุรี32 ทางซ.ประชาชื่น19 ได้อีกด้วย

แผนที่ตัวอย่างเส้นทางการเดินทางทางรถยนต์
ท่านสามารถใช้เส้นทางเดินทางมาโครงการทางรถยนต์ส่วนตัวได้หลายเส้นทาง เช่น
เส้นทางที่ 1 (มาทางแยกต่างระดับรัชวิภา) - หากวิ่งมาทางแยกต่างระดับจากวิภาวดีรังสิตหรือรัชโยธิน พอลงจากสะพานต่างระดับมามุ่งหน้าสู่แยกประชานุกูลให้เตรียมชิดซ้าย พอถึงแยกประชานุกูลให้เลี้ยวซ้ายที่แยก จากนั้นตรงไปเรื่อยๆ ประมาณ 950 ม. จะถึงทางรถไฟให้ตรงข้ามทางรถไฟ ตรงไปอีกประมาณ 350 ม. ให้เลี้ยวขวาเข้าโครงการทางขวามือ
เส้นทางที่ 2 (มาทางด่วนขั้นที่ 2) - หากวิ่งมาทางด่วนขึ้นที่ 2 ให้ลงทางด่วนด่านรัชดาภิเษก (สี่แยกประชานุกูล-วิภาวดีรังสิต) พอลงทางด่วนมาแล้วให้เตรียมชิดซ้าย พอถึงแยกประชานุกูลให้เลี้ยวซ้ายที่แยก จากนั้นตรงไปเรื่อยๆประมาณ 950 ม. จะถึงทางรถไฟให้ตรงข้ามทางรถไฟ ตรงไปอีกประมาณ 350 ม. ให้เลี้ยวขวาเข้าโครงการทางขวามือ
เส้นทางที่ 3 (มาทางถ.ประชาชื่นจากแยกประชาชื่น) - หากมาทางถ.ประชาชื่นจากแยกประชาชื่น ตรงมาเรื่อยๆ ประมาณ 1.5 กม. โครงการจะอยู่ทางซ้ายมือ
เส้นทางที่ 4 (มาทางถ.กรุงเทพ-นนทบุรีจากแยกเตาปูน) - หากมาทางถ.กรุงเทพ-นนทบุรีจากแยกเตาปูนให้ตรงไปเรื่อยๆ ประมาณ 1.5 กม. แล้วกลับรถจากนั้นให้ชิดซ้ายเข้าซ.ประชาชื่น32 (ซ.ประชาชื่น19) วิ่งเข้าซอยมาเรื่อยๆ จะมาออกทางถนนประชาชื่นที่ปากซอยประชาชื่น19 ให้เลี้ยวขวาออกถนนประชาชื่น ตรงมา 110 ม. ให้เลี้ยวขวาเข้าโครงการทางขวามือ
เส้นทางที่ 5 (มาทางถ.วงศ์สว่างจากสะพานพระราม 7) - หากมาทางถ.วงศ์สว่างจากสะพานพระราม 7 ตรงไปที่แยกวงศ์สว่างไม่ต้องข้ามสะพานข้ามแยก ให้เลี้ยวขวาที่แยกเพื่อเข้าถนนกรุงเทพ-นนทบุรี จากนั้นให้ตรงไปเรื่อยๆ ประมาณ 1.5 กม. แล้วเลี้ยวซ้ายเข้าซ.ประชาชื่น32 (ซ.ประชาชื่น19) วิ่งเข้าซอยมาเรื่อยๆ จะมาออกทางถนนประชาชื่นที่ปากซอยประชาชื่น19 ให้เลี้ยวขวาออกถนนประชาชื่น ตรงมา 110 ม. ให้เลี้ยวขวาเข้าโครงการทางขวามือ
เส้นทางที่ 6 (มาทางถ.กรุงเทพ-นนทบุรีจากติวานนท์) - หากมาทางถ.กรุงเทพ-นนทบุรีจากติวานนท์ตรงไปที่แยกวงศ์สว่าง พอผ่านแยกวงศ์สว่างแล้วให้ตรงไปเรื่อยๆอีกประมาณ 1.5 กม. แล้วเลี้ยวซ้ายเข้าซ.ประชาชื่น32 (ซ.ประชาชื่น19) วิ่งเข้าซอยมาเรื่อยๆ จะมาออกทางถนนประชาชื่นที่ปากซอยประชาชื่น19 ให้เลี้ยวขวาออกถนนประชาชื่น ตรงมา 110 ม. ให้เลี้ยวขวาเข้าโครงการทางขวามือ
เส้นทางที่ 7 (มาทางถ.ประชาชื่นจากแยกพงษ์เพชร) - หากมาทางถ.ประชาชื่นจากแยกพงษ์เพชรถึงแยกประชานุกูลให้ตรงข้ามแยกไป จากนั้นตรงไปเรื่อยๆประมาณ 950 ม. จะถึงทางรถไฟให้ตรงข้ามทางรถไฟ ตรงไปอีกประมาณ 350 ม. ให้เลี้ยวขวาเข้าโครงการทางขวามือ
ภาพตัวอย่างการเดินทางจากทางแยกต่างระดับรัชวิภา (เส้นทางที่ 1 ตามแผนที่ข้างบน)
พอลงจากสะพานต่างระดับมามุ่งหน้าสู่แยกประชานุกูลให้เตรียมชิดซ้าย ไปตามป้ายบอกทาง "บางซื่อ"
พอถึงแยกประชานุกูลให้เลี้ยวซ้ายเข้าถ.ประชาชื่นที่แยก ป้ายบอกทางเป็น"บางซื่อ"
ตรงไปเรื่อยๆทางถ.ประชาชื่นอีกประมาณ 950 ม. 
ตรงมาเรื่อยๆจะถึงทางรถไฟ ให้ตรงข้ามทางรถไฟไป
ตรงไปอีกประมาณ 350 ม. ให้เลี้ยวขวาเข้าโครงการทางขวามือ 3. รถไฟฟ้าสายสีม่วง และรถไฟฟ้าสายสีแดงอ่อนซึ่งคาดว่าจะเปิดพร้อมใช้ประมาณ ปี 2559-2560
โครงการนี้ใกล้รถไฟฟ้า 2 สายคือ รถไฟฟ้าสายสีม่วง (บางใหญ่-บางซื่อ-ราษฎร์บูรณะ) มีระยะทางประมาณ 23 กม. คาดว่าจะแล้วเสร็จประมาณปี 2559-2560 มีเส้นทางการวิ่งจาก คลองบางไผ่, ตลาดบางใหญ่, สามแยกบางใหญ่, บางพลู, บางรักใหญ่, บางรักน้อย-ท่าอิฐ, ไทรม้า, สะพานพระนั่งเกล้า, แยกนนทบุรี 1, ศรีพรสวรรค์, ศูนย์ราชการจังหวัดนนทบุรี, กระทรวงสาธารณสุข, แยกติวานนท์, วงศ์สว่าง, บางซ่อน และเตาปูน (เชื่อมต่อกับรถไฟฟ้าสายสีน้ำเงินที่สถานีเตาปูน) และ รถไฟฟ้าชานเมืองสายสีแดงอ่อน (บางซื่อ - ตลิ่งชัน) ซึ่งได้เริ่มเปิดทดลองให้บริการแล้ว แต่ตอนนี้มีแค่ 3 สถานี (ตลิ่งชัน-บางบำหรุ-บางซ่อน) มีระยะทางประมาณ 15 กม. โดยในอนาคตจะไปเชื่อมต่อกับรถไฟฟ้าสายสีน้ำเงิน และรถไฟฟ้าสายสีแดงเข้มที่สถานีกลางบางซื่อซึ่งปัจจุบันกำลังก่อสร้างอยู่คาดว่าจะสร้างเสร็จทั้ง Loop ในช่วงปี 2559-2560 เช่นกัน สถานีที่ใกล้ที่สุดกับโครงการนี้คือ สถานีบางซ่อน (รถไฟฟ้าสายสีม่วง) ระยะห่างจากโครงการประมาณ 200-250 เมตร โดยเส้นทางไปสถานีนี้จะเป็นไปตามรูปข้างล่างนี้
ทางเดินเท้าในซอยกรุงเทพ-นนทบุรี 30เพื่อไปสถานีรถไฟฟ้าสายสีม่วงบางซ่อน 
บริเวณที่คาดว่าน่าจะเป็นทางออกด้านท้ายโครงการเพื่อใช้เป็นทางออกซอยกรุงเทพ-นนทบุรีไปขึ้นรถไฟฟ้าได้ 
ภาพอีกมุมจากปากซ.กรุงเทพ-นนทบุรี ระยะทางในการเดินจากโครงการมาปากซอยก็สัก 100 กว่าเมตร 
บรรยากาศด้านปากซอยกรุงเทพ-นนทบุรี30 พอออกจากซอยมาก็ให้เลี้ยวขวาเพื่อไปยังสถานีรถไฟฟ้า
ทางเดินเท้าตรงไปยังสถานี 
เดินมาเรื่อยๆ อีกประมาณ 100 ม. จะเจอทางขึ้นสถานีอยู่ทางขวามือตรงปากซ.กรุงเทพ-นนทบุรี34

หากเดินต่อไปเรื่อยๆไปทางรถไฟบางซ่อนจะสังเกตเห็นทางเดินลอยฟ้าเพื่อเชื่อมไปรถไฟฟ้าสายสีแดง

พอเดินมาถึงทางรถไฟบางซ่อนก็จะถึงจุดเชื่อมรถไฟฟ้าสายสีม่วง และรถไฟฟ้าสายสีแดงอ่อน
จะเห็นได้ว่าทางเดินลอยฟ้าได้สร้างเสร็จไปพอสมควรแล้ว

สถานีรถไฟฟ้าสายสีแดงอ่อนบางซ่อนปัจจุบันได้สร้างเสร็จแล้ว มีการทดลองวิ่งจากสถานีตลิ่งชันมาสถานีบางซ่อนด้วยรถไฟดีเซล ในอนาคตพอทางสถานีกลางบางซื่อสร้างเสร็จ รถไฟฟ้าจากสถานีบางซ่อนนี้ก็จะวิ่งต่อไปถึงสถานีกลางบางซื่อเชื่อมต่อกับรถไฟฟ้าสายสีแดงเข้ม (รังสิต-บางซื่อ) เพิ่มทางเลือกในการเดินทางได้มากขึ้น
บรรยากาศรอบๆโครงการบริเวณด้านหน้าโครงการ (ถนนประชาชื่น) มีรถผ่านอยู่เรื่อยๆ ช่วงเช้าเย็นก็จะมีน้องๆ นักเรียนนักศึกษามาขึ้นรถตรงป้ายรถเมล์หน้าโครงการอยู่เรื่อยๆ หากเดินออกจากหน้าโครงการไปทางซ้ายมือก็จะเจอกับป้ายรถเมล์ และร้านก๋วยเตี๋ยวหมูตุ๋น-เนื้อตุ๋น ถัดไปอีกนิดนึงก็จะเป็น 7-Eleven ซึ่งบริเวณนี้จะมีรถเข็นขายพวกลูกชิ้นหมูปิ้งข้างทางอยู่ด้วย ฝั่งตรงข้ามด้านคลองประปาตรงจุดนี้จะตรงกับวิทยาลัยเทคนิควิมลบริหารธุรกิจ และป้ายรถเมล์ฝั่งตรงข้ามพอดีโดยมีทางม้าลายและไฟเขียวไฟแดงสำหรับข้ามถนนอยู่ด้วยทำให้ค่อนข้างปลอดภัยในการข้ามไปรอรถที่ฝั่งตรงข้าม หากเดินออกจากหน้าโครงการไปทางขวามือก็จะเจอกับร้านอาหารจิ้มจุ่ม, ร้านอาหารตามสั่ง และร้านอินเทอร์เน็ต

ภาพถ่ายจากสะพานลอยคนข้ามขามาจากแยกประชาชื่นทางตลาดเตาปูน แสดงบรรยากาศถนนประชาชื่น
(ภาพนี้โครงการอยู่ทางซ้ายมือ) รถวิ่งด้านละ 2 เลน ด้านขวามือจากภาพเป็นคลองประปา สังเกตจะมีทางเดินเท้าเลียบคลองไปตลอดทางทำให้เดินได้สะดวก นอกจากนั้นยังมีสะพานลอย, ทางม้าลาย, อาคารพาณิชย์ อยู่ตลอดเส้นทาง
เดินออกมาทางซ้ายมือโครงการเป็นป้ายรถเมล์ และร้านก๋วยเตี๋ยวหมูตุ๋น, เนื้อตุ๋น
ถัดจากร้านก๋วยเตี๋ยวเป็น 7-Eleven ซึ่งอยู่ใกล้กับโครงการเพียง 25 ม. 
บรรยากาศด้านขวามือโครงการเป็นอาคารพาณิชย์ซึ่งมี ร้านจิ้มจุ่ม, ร้านอาหารตามสั่ง และร้านอินเทอร์เน็ต 
ร้านจิ้มจุ่มอยู่ติดกับโครงการเลย
รูปแบบตึก และตัวโครงการโดยรวม
โครงการมีขนาดพื้นที่รวม 11-3-55 ไร่ ตั้งอยู่ติดถนนใหญ่ประชาชื่นฝั่งตรงข้ามกับวิทยาลัยเทคโนโลยีวิมลบริหารธุรกิจ ซึ่งตัวที่ดินแปลงนี้เคยเป็นอู่รถเมล์เก่าแก่ชื่ออู่ศรีณรงค์ที่หมดสัญญาเช่าไปในช่วงปี 2555
รูปร่างหน้าตาของแปลงที่ดินผืนนี้จะมีลักษณะพื้นที่เป็นรูปทรงสี่เหลี่ยมผืนผ้า มีด้านหน้าแคบฝั่งติดถนนประชาชื่น (ทิศตะวันออก) เป็นทางเข้า-ออกหลัก และส่วนท้ายของแปลงที่ดินบริเวณรั้วฝั่งทิศเหนือจะติดกับกลางซอย กรุงเทพ-นนทบุรี 30 หรือซอยสุภาพร (เป็นซอยด้านข้างโครงการที่ลูกบ้านสามารถใช้เป็นทางลัดเดินออกไปปากซอยเพื่อขึ้นรถไฟฟ้าสถานีบางซ่อนได้ในอนาคต)
การจัดวางอาคารขนาด 29 ชั้น 1 อาคาร (ที่แบ่งพื้นที่ออกเป็น 3 ส่วน คือ East Wing, Center Wing และ South Wing) จัดวางตัวอาคารลึกเข้าไปตามแนวที่ดิน หันข้างให้กับทางเข้า-ออกหลัก แบ่งยูนิตพักอาศัยออกเป็น 2 ฝั่ง ฝั่งนึงหันหน้าออกทางทิศเหนือ ส่วนอีกฝั่งหันหน้าออกทางทิศใต้ เพื่อหลบแสงธรรมชาติจากทิศตะวันออกและตะวันตก ทำให้ภายในห้องไม่ร้อน และจัดวางพื้นที่ส่วนกลางทั้งสวนสีเขียวและสระว่ายน้ำเป็นแนวยาวกินบริเวณพื้นที่หน้ากว้างของอาคารทั้ง 3 ส่วน ไว้ที่ชั้น 5
รูปจำลองโครงการถ้ามองจากฝั่งถนนกรุงเทพ-นนทบุรี ที่เป็นเส้นทางผ่านของรถไฟฟ้าสายสีม่วง และรถไฟฟ้าสายสีแดงอ่อนที่สถานีบางซ่อน
โมเดลโครงการฝั่งทางเข้า-ออก ด้านถนนประชาชื่น
โมเดลโครงการฝั่งทิศใต้ ซึ่งเป็นด้านที่ยูนิตพักอาศัยหันหน้าออกไป ส่วนอีกฝั่งคือทางด้านทิศเหนือ
โมเดลโครงการฝั่งทิศตะวันตกเป็นส่วนท้ายของแปลงที่ดิน
ซึ่งรั้วโครงการด้านทิศเหนือที่ติดซอยกรุงเทพ-นนทบุรี 30 จะถูกเปิดให้เป็นทางเข้า-ออก
สำหรับเดินไปขึ้นรถไฟฟ้าสถานีบางซ่อนในอนาคต
โมเดลโครงการฝั่งทิศเหนือเป็นฝั่งศูนย์รวมของส่วนกลาง
ที่ออกแบบมาให้เชื่อมต่อพื้นที่ 3 ส่วนเข้าไว้ด้วยกันทั้งหมดที่ชั้น 5
ส่วนชั้น 1 เป็นศูนย์รวมของยูนิตเพื่อการพาณิชย์ที่กระจายตัวอยู่ใน 3 พื้นที่ของอาคาร (รวม 26 ยูนิต) 
มาสเตอร์แพลนของโครงการ (คลิกเพื่อดูภาพขนาดใหญ่) Floor Plan ของชั้นต่างๆ
- Floor Plan ชั้น 5 (ทั้งชั้น) (คลิกเพื่อดู Floor Plan)
- Floor Plan ชั้น 5 (ตรงกลาง) (คลิกเพื่อดู Floor Plan)
- Floor Plan ชั้น 5 (ด้านตะวันตก) (คลิกเพื่อดู Floor Plan)
- Floor Plan ชั้น 5 (ด้านตะวันออก) (คลิกเพื่อดู Floor Plan)
- Floor Plan ชั้น 6, 8, 10, 12, 14, 16, 18, 20, 22, 24, 28 (ทั้งชั้น) (คลิกเพื่อดู Floor Plan)
- Floor Plan ชั้น 6, 8, 10, 12, 14, 16, 18, 20, 22, 24, 28 (ตรงกลาง) (คลิกเพื่อดู Floor Plan)
- Floor Plan ชั้น 6, 8, 10, 12, 14, 16, 18, 20, 22, 24, 28 (ด้านตะวันตก) (คลิกเพื่อดู Floor Plan)
- Floor Plan ชั้น 6, 8, 10, 12, 14, 16, 18, 20, 22, 24, 28 (ด้านตะวันออก) (คลิกเพื่อดู Floor Plan)
- Floor Plan ชั้น 7, 11, 15, 19, 23, 27 (ทั้งชั้น) (คลิกเพื่อดู Floor Plan)
- Floor Plan ชั้น 7, 11, 15, 19, 23, 27 (ตรงกลาง) (คลิกเพื่อดู Floor Plan)
- Floor Plan ชั้น 7, 11, 15, 19, 23, 27 (ด้านตะวันตก) (คลิกเพื่อดู Floor Plan)
- Floor Plan ชั้น 7, 11, 15, 19, 23, 27 (ด้านตะวันออก) (คลิกเพื่อดู Floor Plan)
- Floor Plan ชั้น 9, 12, 17, 21, 25 (ทั้งชั้น) (คลิกเพื่อดู Floor Plan)
- Floor Plan ชั้น 9, 12, 17, 21, 25 (ตรงกลาง) (คลิกเพื่อดู Floor Plan)
- Floor Plan ชั้น 9, 12, 17, 21, 25 (ด้านตะวันตก) (คลิกเพื่อดู Floor Plan)
- Floor Plan ชั้น 9, 12, 17, 21, 25 (ด้านตะวันออก) (คลิกเพื่อดู Floor Plan)
- Floor Plan ชั้น 29 (ทั้งชั้น) (คลิกเพื่อดู Floor Plan)
- Floor Plan ชั้น 29 (ตรงกลาง) (คลิกเพื่อดู Floor Plan)
- Floor Plan ชั้น 29 (ด้านตะวันตก) (คลิกเพื่อดู Floor Plan)
- Floor Plan ชั้น 29 (ด้านตะวันออก) (คลิกเพื่อดู Floor Plan)

ภาพจำลองทางเข้า-ออกของโครงการฝั่งถนนประชาชื่น 
ทางเข้า-ออกของสำนักงานขายในปัจจุบันที่จะเป็นทางเข้า-ออกหลักของโครงการในอนาคต

ภาพแปลงที่ดินจริงของโครงการ ณ ตอนนี้
ส่วนกลางและสิ่งอำนวยความสะดวก
- สระว่ายน้ำขนาด 53x9 เมตร แบ่งพื้นที่น้ำลึก-ตื้นสำหรับเด็ก และมุมจากุซซี่ ที่บริเวณชั้น 5
- ห้องออกกำลังกาย Fitness (ขนาด 36 ตร.ม.), ห้องสมุด, ห้องเล่นเกมส์, ห้องชมภาพยนต์ และอื่นๆ ที่บริเวณชั้น 5
- Lobby 3 แบบ 3 สไตล์การตกแต่งของ 3 ส่วนพื้นที่ในอาคาร
- พื้นที่จอดรถที่ชั้น 1-4 รวมกว่า 50%
- ลิฟต์โดยสาร 2 ตัว, ลิฟต์ดับเพลิง 1 ตัว กระจายทั้ง 3 Wing รวม 9 ตัวต่อ 1 อาคาร (ลิฟต์จอดทุกชั้น)
- พื้นที่สีเขียวกว่า 7,000 ตารางเมตร มีทั้งสวนพักผ่อนขนาดใหญ่แบบเล่นระดับเชื่อมต่อพื้นที่ทั้ง 3 ส่วนที่ชั้น 5, Sky Veranda และ Veranda Garden พื้นที่ระเบียงนั่งเล่นและสวนพักผ่อนกระจายอยู่ทุกๆ 2 ชั้นของที่พักอาศัย
- เจ้าหน้าที่รักษาความปลอดภัย ระบบรักษาความปลอดภัย Keycard & Finger Scan พร้อมกล้องวงจรปิด CCTV ตลอด 24 ชั่วโมง
- ระบบป้องกันอัคคีภัย Smoke & Heat Detector และ Fire Alarm
- ระบบเชื่อมต่ออินเทอร์เน็ต Hi-Speed Internet Broadband
- ระบบเสาอากาศทีวีรวม และเคเบิ้ลทีวี

ภาพจำลอง Lobby โครงการ (Theme แบบ Gold)

ภาพจำลอง Lobby โครงการ (Theme แบบ Green)

ภาพจำลอง Lobby โครงการ (Theme แบบ Marine)
ภาพจำลองพื้นที่สันทนาการบริเวณห้องอ่านหนังสือ
ภาพจำลองห้องฟิตเนสขนาด 36 ตร.ม. 
ภาพจำลองสระว่ายน้ำขนาด 53x9 เมตร 
ภาพ Model โครงการแสดงตำแหน่งของสวนเล่นระดับสระว่ายน้ำและห้องฟิตเนสที่ตั้งอยู่บริเวณชั้น 5
ภาพห้องตัวอย่างและ Lay Out
โครงการมีห้อง 3 ขนาดดังนี้
1) ห้องสตูดิโอ - เนื้อที่ 31.50-33.00 ตร.ม. มี 2 แบบดังนี้
2) ห้องแบบ 1 BEDROOM - เนื้อที่ 42.50-45.00 ตร.ม. มี 4 แบบดังนี้
3) ห้องแบบ 2 BEDROOM - เนื้อที่ 65.50-70.50 ตร.ม. มี 2 แบบ
4) ห้อง Penthouse -
เฉพาะชั้น 29 มียูนิตรวมเกือบ 70 ยูนิต มีห้องแบบ
- 1 ห้องนอน
- 2 ห้องนอน
- 3 ห้องนอน
โดยห้องตัวอย่างที่ทางโครงการสร้างโชว์ในสำนักงานขายมีด้วยกันอยู่ 2 ขนาด คือห้องแบบสตูดิโอ และ 1 BEDROOM
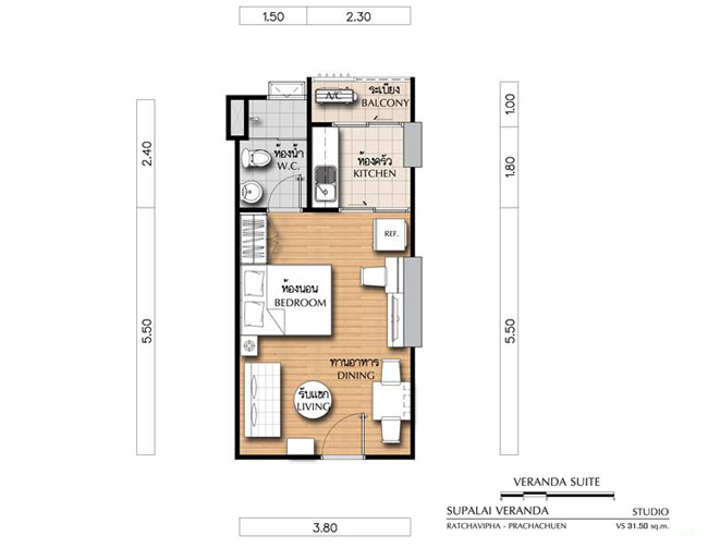
ห้องตัวอย่าง 1) ห้องสตูดิโอ แบบ "Veranda Suite" ขนาด 31.50 ตร.ม.
ภาพแปลนห้องตัวอย่างของห้อง STUDIO หน้ากว้าง 3.80 เมตร 
มุมกว้างของห้องสตูดิโอ

ฝั่งซ้ายมือเป็นส่วนรับแขกและส่วนพักผ่อนที่อยู่ติดกัน ด้วยขนาดพื้นที่จำกัดพื้นที่เลยอาจจะดูพอดีๆ ไปนิดนึง

ส่วนท้ายของห้อง Type นี้ จัดวางพื้นที่ห้องน้ำและห้องครัวไว้เป็นสัดส่วน
แยกส่วนเปียกออกไปติดระเบียงจะได้ไม่อับชื้น เลยอาจะทำให้ส่วนพักผ่อนอดชมวิวไปนิดนึง

งานพื้นภายในห้องทั้ง 3 ส่วน ส่วนโซนห้องน้ำทำธรณีประตูแบบหินแกรนิตกันความชื้นไว้ด้านใน
หมดห่วงเรื่องพื้นลามิเนตพองตัวเมื่อเจอความชื้นจากการใช้งานหรือทำความสะอาดห้องน้ำ

ภายในห้องน้ำแบ่งส่วนเปียกส่วนแห้งออกด้วยบานกระจกอะลูมิเนียมกันน้ำ
พร้อมกระจกนิรภัยซึ่งเป็นของแถมมาตรฐานจากโครงการ

ส่วนห้องครัว Built in เคาน์เตอร์ครัวพร้อมตู้ลอยติดผนังมาให้เรียบร้อย แถม Sink ล้างจานแบบ 1 หลุม
ขาดแค่เตาทำอาหารที่ต้องติดตั้งเพิ่ม ส่วนพื้นที่ระเบียงแยกสัดส่วนอีกทีด้วยประตูกระจกบานเลื่อนอะลูมิเนียมเอาไว้เปิดระบายกลิ่นเวลาทำครัว หรือจะเปิดประตูเลื่อนทั้งระเบียงและส่วนครัวเพื่อรับลม ระบายลมให้กับห้องก็ได้

ปลายเตียงนอนเหลือพื้นที่ให้เดินผ่านได้ไม่คับแคบ โดยโซนนี้ทางโครงการจะจัด Built-in โต๊ะเครื่องแป้ง
ตู้ติดผนังและโต๊ะวางทีวีพร้อมลิ้นชักเก็บของของ STARMARK มาให้

เจาะมุมต่างๆ ของห้อง Type นี้มาให้ชมแบบเต็มๆ กันอีกที
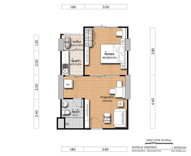
ห้องตัวอย่างที่ 2) ห้อง 1 Bedroom แบบ "Executive Suite(s)" ขนาด 44.00 ตร.ม.
-1Bed44.jpg)
แปลนห้องตัวอย่างแบบ 1 Bedroom

ภาพกว้างๆ ของห้อง Type นี้ที่การจัดวางทำออกมาได้ค่อนข้างลงตัวกว่าห้องแบบสตูดิโอที่ถูกจำกัดเรื่องพื้นที่ 
มุมนี้ถ่ายให้เห็นส่วนรับแขก ส่วนทานข้าว และประตูกระจกบานเลื่อนแยกพื้นที่ส่วนพักผ่อนให้เป็นสัดส่วน 
ภายในห้องนอนรับแสงและลมจากหน้าต่างเต็มๆ
สำหรับห้องนี้มีขนาดหน้ากว้างถึง 3.50 เมตร น่าจะถูกใจคนชอบนอนดูวิว

ภายในห้องนอนอีกมุมจะเห็นว่าพื้นที่รอบเตียงและระยะห่างจากปลายเตียงกับชั้นวางทีวีมีที่เหลือเยอะแยะ
เดินรอบเตียงแต่งตัวหยิบจับของก็ทำได้ค่อนข้างสบายทีเดียว

พื้นที่โถงส่วนเชื่อมต่อของพื้นที่ส่วนต่างๆ ในห้อง 1 Bedroom เมื่อยืนอยู่บริเวณหน้าห้องนอน

เดินเข้ามาภายในห้องน้ำแยกโซนเปียกโซนแห้ง การตกแต่ง และการเลือกใช้สุขภัณฑ์ต่างๆ
เหมือนกันกับห้องแบบสตูดิโอ แต่ห้องน้ำของห้อง Type นี้
ไม่มีหน้าต่างระบายอากาศเพราะพื้นที่ไม่ติดระเบียงดังนั้นจึงเลี่ยงไม่ได้ที่จะต้องมีพัดลมระบายอากาศ

ฝั่งตรงข้ามห้องน้ำเป็นส่วนครัว และระเบียงที่มีประตูกระจกบานเลื่อนกั้นแยกออกจากกันเป็นสัดส่วน

สุดท้ายเป็นรวมภาพมุมต่างๆ ภายในห้อง Type นี้ที่โดยรวมจัดวางพื้นที่ออกมาได้ค่อนข้่างลงตัว
ส่วนตัวคิดว่าห้อง Type นี้เหมาะกับคู่แต่งงานที่อยู่ด้วยกันสองคนมากเพราะพื้นที่กำลังดีทีเดียว
ราคาและค่าใช้จ่ายที่เกี่ยวข้องโดยประมาณ (ณ เดือนพฤศจิกายน 2556)
ราคาเริ่มต้น ห้องชั้น 5-28 (ขนาดพื้นที่ 31.5-70.5 ตร.ม.) - ห้องแบบ Studio ราคาเริ่มต้นที่ 1.8 ล้านบาท
- ห้องแบบ 1 BEDROOM ราคาเริ่มต้นที่ 2.48 ล้านบาท
- ห้องแบบ 2 BEDROOM ราคาเริ่มต้นที่ 3.97 ล้านบาท
ราคา Penthouse ชั้น 29 (ขนาดพื้นที่ 44.5-120 ตร.ม.) - ห้องแบบ 1-3 BEDROOM ราคาเริ่มต้นที่ 8.52-8.72 ล้านบาท
Promotion และส่วนลดเบื้องต้น - ฟรี แอร์ วอลเปเปอร์ ชุดเฟอร์นิเจอร์ครัว เครื่องทำน้ำอุ่นในห้องน้ำ และฉากกั้นอาบน้ำแบบกระจกนิรภัย
- พิเศษ Your Free Choice ให้คุณมีสิทธิ์เลือก ไม่บังคับ เลือกรับเฟอร์นิเจอร์ครบชุดจาก STARMARK (ตามห้องตัวอย่าง) + ส่วนลด หรือรับส่วนลดพิเศษ 2 เท่า มูลค่า 160,000 - 300,000 บาท (เป็นไปตามเงื่อนไขของทางโครงการ)
เงินจอง - 10,000 บาท สำหรับห้องสตูดิโอและ 1 Bedroom
- 20,000 บาท สำหรับห้อง 2 Bedroom และ Penthouse แบบ 1 ห้องนอน
- 50,000 บาท สำหรับห้อง Penthouse แบบ 2-3 ห้องนอน
เงินทำสัญญา (ระยะเวลา 15 วันหลังจากจอง)
- 59,000 บาท สำหรับห้องสตูดิโอ
- 79,000 บาท สำหรับห้อง 1 Bedroom
- 129,000 บาท สำหรับห้อง 2 Bedroom
- 99,000 บาท สำหรับห้อง Penthouse แบบ 1 ห้องนอน
- 129,000 บาท สำหรับห้อง Penthouse แบบ 2 ห้องนอน
- 199,000 บาท สำหรับห้อง Penthouse แบบ 3 ห้องนอน
เงินผ่อนดาวน์ - 5,900 สำหรับห้องสตูดิโอ 2,900 บาท ระยะเวลา 39 งวด
- 7,900 สำหรับห้อง 1 Bedroom 5,900 บาท ระยะเวลา 39 งวด
- 12,900 สำหรับห้อง 2 Bedroom 9,900 บาท ระยะเวลา 39 งวด
- 9,900 สำหรับห้อง Penthouse แบบ 1 ห้องนอน ระยะเวลา 39 งวด
- 12,900 สำหรับห้อง Penthouse แบบ 2 ห้องนอน ระยะเวลา 39 งวด
- 19,900 Penthouse แบบ 3 ห้องนอน ระยะเวลา 39 งวด
ส่วนกลาง : 35 บาท/ ตร.ม.
เงินกองทุนส่วนกลาง : 350 บาท/ตร.ม.
โครงการนี้เป็นหนึ่งในหลายๆ โครงการคอนโดที่เปิดตัวใหม่เร็วๆ นี้ในย่านประชาชื่น ซึ่งกลายเป็นย่านที่น่าสนใจขึ้นมาเนื่องด้วยมีที่ดินแปลงใหญ่ๆ ริมถนนใหญ่ประชาชื่นที่สร้างโครงการแบบ High-Rise ได้ และโดยรวมก็ค่อนข้างใกล้กับรถไฟฟ้าสายสีม่วง และสายสีแดงอ่อนที่วิ่งผ่านบริเวณนี้ โครงการนี้ราคาไม่แรงจนเกินไป และแม้ตัวตึกประกอบกับจำนวนยูนิตจะดูค่อนข้างเยอะ แต่ศุภาลัยก็พยายามชดเชยในส่วนนี้ด้วยส่วนกลาง และสิ่งอำนวยความสะดวกในรูปแบบของสันทนาการที่ค่อนข้างจัดเต็มตามที่อธิบายมาแล้วข้างต้น ดังนั้น เราจึงมองว่าโครงการนี้น่าจะเหมาะกับคนที่กำลังมองหาคอนโดที่ราคาจับต้องได้ และอยู่ในย่านที่มีศักยภาพในอนาคตโดยไม่จำเป็นต้องอยู่ย่านกลางเมือง เพราะตั้งแต่ปี 2560 ก็คาดว่าคนที่อยู่คอนโดนี้ น่าจะเดินแค่ 200-250 เมตรก็สามารถใช้รถไฟฟ้าสายสีม่วง (สถานีบางซ่อน) นั่งเข้าไปทำงานในตัวเมืองได้ นอกจากนี้ ด้วยความที่โครงการนี้ห่างจากบางซื่อเพียงแค่ประมาณ 1.5 กิโลเมตร ซึ่งในอนาคต รัฐบาลก็วางแผนไว้ว่าตรงบางซื่อนี้ จะเป็นศูนย์กลางรถไฟฟ้าหลากหลายรูปแบบ ทั้งรถไฟฟ้าในกรุงเทพฯ และรถไฟความเร็วสูงวิ่งออกไปต่างจังหวัด ดังนั้น จึงน่าจะเหมาะสำหรับคนที่มีพื้นเพอยู่ต่างจังหวัดแต่อยากมีคอนโดในกรุงเทพ หรือคนที่ใช้รถไฟฟ้า หรือรถไฟค่อนข้างบ่อย แต่ก็ขึ้นอยู่กับว่ารัฐบาลจะสามารถสร้างรถไฟฟ้าเหล่านี้ได้จริงอย่างที่วางนโยบายไว้ด้วยละค่ะ
สถานะปัจจุบันของโครงการ (พฤศจิกายน 2556)
โครงการศุภาลัย เวอเรนด้า รัชวิภา-ประชาชื่น จะเริ่มก่อสร้างโครงการประมาณกลางปี 2557 และคาดว่าโครงการจะแล้วเสร็จประมาณปลายปี 2560 ส่วนใบอนุญาตก่อสร้าง (EIA) อยู่ในช่วงระหว่างดำเนินการของอนุญาต และจดทะเบียนอาคารชุดเมื่อการก่อสร้างแล้วเสร็จ เบื้องต้นทางโครงการได้เปิด Pre-Sales ให้ลูกค้าเก่าได้มีสิทธิ์เข้าจับจองห้องภายในโครงการนี้ไปแล้วเมื่อวันที่ 16-17 พ.ย. 56 ทำให้ ณ ปัจจุบันมียอดจองและทำสัญญายูนิตในโครงการไปแล้วถึงเกือบ 30% ส่วนลูกค้าทั่วไปที่สนใจอยากจับจองยูนิตดีภายในโครงการ ศุภาลัย เวอรันด้า รัชวิภา-ประชาชื่น เตรียมพบกับงาน Pre-Sales โครงการอย่างเป็นทางการได้ในวันที่ 23-24 พ.ย. 2556 ณ สำนักงานขายที่ตั้งอยู่บนที่ดินแปลงจริงของทางโครงการ
สอบถามข้อมูลเพิ่มเติมโทร. 02-911-3322 หรือ 1720 กด 87