HI Ladprao 130 Condo (ไฮ ลาดพร้าว 130 คอนโด)...ใกล้รถไฟฟ้า 2 สาย สายสีส้ม และสายสีเหลือง
ไฮ ลาดพร้าว 130 คอนโด (HI Ladprao 130 Condo) คอนโดโครงการใหม่ดีไซน์เรียบหรู ทันสมัย พร้อมฟรีชุดครัว บนทำเลใจกลางเมืองใกล้สถานีรถไฟฟ้า 2 สาย (สถานีลาดพร้าว 101 และสายสีส้ม สถานีหัวหมาก) แต่ยังเงียบสงบน่าอยู่ มาพร้อมส่วนกลางครบครัน ทั้งสระว่ายน้ำ ฟิตเนส CO-WORKING SPACE ในราคาที่สามารถจับจองเป็นเจ้าของได้ง่ายๆ
ราคาเริ่มต้น
ราคาเริ่มต้น 1.39 ล้านบาท (ราคาหลังรับส่วนลด) หรือ 49,650 บาท/ตร.ม.
สอบถามเพิ่มเติม
เจ้าของโครงการ
บริษัท คอนเน็กซ์ชั่น ดีเวลลอปเม้นท์ จำกัด
ทำเล และสถานที่ตั้งใกล้เคียง
ตัวโครงการตั้งอยู่ภายในซอยลาดพร้าว 130 แขวงคลองจั่น เขตบางกะปิ กรุงเทพมหานคร 10240 ห่างจากถนนลาดพร้าว 750 เมตร สะดวกสบายทุกการเดินทาง สามารถเข้า-ออกได้ 2 ทาง ทั้งจาก ซอยลาดพร้าว 130 และซอยรามคำแหง 81 การเดินทางด้วยรถไฟฟ้าก็สะดวกไม่แพ้กัน เพราะอยู่ใกล้รถไฟฟ้าในอนาคตถึง 2 สายด้วยกัน ทั้งสายสีเหลือง สถานีลาดพร้าว 101 และสายสีส้ม สถานีหัวหมาก นอกจากนี้ยังใกล้เรือโดยสารคลองแสนแบบ (ท่าเรือวัดกลาง) ที่สามารถเดินทางถึงอโศกได้ภายใน 30 นาที โดยรอบโครงการแวดล้อมไปด้วยโรงแรม ร้านอาหาร มีเซเว่น ร้านอำนวยความสะดวกต่างๆ อาทิ
- The Mall บางกะปิ
- Tesco Lotus บางกะปิ
- Makro ลาดพร้าว
- Food Land ลาดพร้าว
- Big C ลาดพร้าว
- FBT Sport Complex
- โรงภาพยนตร์ เมเจอร์ ฮอลลีวูด รามคำแหง
- โรงพยาบาลเวชธานี
- โรงพยาบาลรามคำแหง
- โรงพยาบาลลาดพร้าว
- โรงพยาบาลสมิติเวช ศรีนครินทร์
- มหาวิทยาลัยรามคำแหง
- สถาบันบัณฑิตพัฒนบริหารศาสตร์
- มหาวิทยาลัยอัสสัมชัน
- โรงเรียนเทพลีลา
- โรงเรียนบดินทรเดชา (สิงห์ สิงหเสณี)
- การกีฬาแห่งประเทศไทย
- สำนักงานเขตบางกะปิ
- สถานีตำรวจนครบาลลาดพร้าว
- สถานีตำรวจหัวหมาก
รูปแบบคอนโด และขนาดพื้นที่โครงการ
- คอนโดมิเนียมเป็นแบบ อาคาร Low Rise 8 ชั้น 1อาคาร - ชั้นใต้ดิน 1 ชั้น
- พื้นที่โครงการ 0-3-25 ไร่
- ห้องพักอาศัย จำนวน 124 ยูนิต
แบบห้องและพื้นที่ใช้สอย
- 1 Bedroom ขนาดพื้นที่ 28 ตร.ม.
- 1 Bedroom Plus ขนาดพื้นที่ 34 ตร.ม.

Layout ห้องแบบ 1 Bedroom ขนาดพื้นที่ 28 ตร.ม.

Layout ห้องแบบ 1 Bedroom Plus ขนาดพื้นที่ 34 ตร.ม.

ห้องตัวอย่างบริเวณห้องนั่งเล่น

ห้องตัวอย่างบริเวณโซนรับประทานอาหาร

ห้องตัวอย่างภายในห้องนอน

ห้องตัวอย่างภายในห้องนอน

ห้องตัวอย่างภายในห้องนอน

ห้องตัวอย่างภายในห้องน้ำ
สาธารณูปโภคภายในโครงการ
- ล็อบบี้
- Mailbox
- สระว่ายน้ำ
- ห้อง Fitness พร้อมอุปกรณ์
- Co-Working Space
- สวนหย่อม
- เข้า-ออกอาคาร และลิฟต์โดยใช้ระบบ Keycard
- กล้องวิดีโอวงจรปิด (CCTV)
- ระบบรักษาความปลอดภัยตลอด 24 ชม.
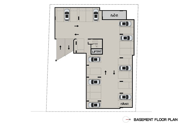
- ที่จอดรถ 46 คัน หรือคิดเป็นประมาณ 37% กรณีจอดซ้อนคันรวม 59 คัน หรือคิดเป็นประมาณ 48%

ภาพจำลองบรรยากาศบริเวณสระว่ายน้ำมองตรงไปเห็นห้องฟิตเนส

ภาพจำลองบรรยากาศบริเวณสระว่ายน้ำ และ Deck Pool

ภาพจำลองบรรยากาศบริเวณห้องฟิตเนส

ภาพจำลองบรรยากาศบริเวณห้อง Co-Working Space

บรรยากาศภายในสำนักงานขาย

ตัวอย่างโมเดลโครงการ

โมเดลแสดงตำแหน่งประตูทางเข้าโครงการ

โมเดลโครงการบริเวณชั้น 2 ซึ่งเป็นที่ตั้งของสระว่ายน้ำ, Deck Pool, ห้องฟิตเนส และห้อง Co-Working Space
อัปเดตความเคลื่อนไหวโครงการ
โครงการ ไฮ ลาดพร้าว 130 คอนโด เปิด Pre Sale ไปเมื่อวันที่ 26 มกราคม 2562 ที่ผ่านมา โดยมีกำหนดเริ่มก่อสร้างประมาณกลางปี 2562 และคาดว่าจะแล้วเสร็จประมาณปลายปี 2563 ผู้ที่สนใจสามารถเข้าชมห้องตัวอย่างได้แล้ววันนี้ที่สำนักงานขายโครงการ
สามารถลงทะเบียนเพื่อรับสิทธิพิเศษได้ที่นี่