ทริปเปิ้ล วาย เรสซิเดนซ์ (Triple Y Residence) ... คอนโดติดรถไฟฟ้า MRT สถานีสามย่าน
ทริปเปิ้ล วาย เรสซิเด้นซ์ (Triple Y Residence) คอนโดมิเนียม Fully Furnished ในรูปแบบสิทธิการเช่าระยะยาว 30 ปี เป็นส่วนหนึ่งของโครงการ "Samyan Mitrtown Mixed-Use" บนทำเลสามย่าน-จุฬาฯ พัฒนาภายใต้แนวคิด "Neo Explorer Living Platform" การอยู่อาศัยรูปแบบใหม่ที่เน้นฟังก์ชันการใช้งานที่เหมาะการอยู่อาศัยร่วมกัน ครบครันด้วย Facilities ติดรถไฟฟ้าใต้ดิน MRT สามย่าน เตรียมเปิด Presale 10 มี.ค. นี้
ราคาเริ่มต้น
ราคาเริ่มต้น 4.49 ล้านบาท
เจ้าของโครงการ
บริษัท แผ่นดินทอง พร็อพเพอร์ตี้ ดีเวลลอปเม้นท์ จำกัด (มหาชน) หรือ โกลเด้นแลนด์
ทำเล และสถานที่ตั้งใกล้เคียง
ตัวโครงการตั้งอยู่บนถนนพญาไท แขวงวังใหม่ เขตปทุมวัน ทำเลใจกลางเมืองที่สามารถเดินทางได้อย่างสะดวกสบายด้วยรถไฟฟ้า เพราะอยู่ใกล้กับรถไฟฟ้า MRT สถานีสามย่าน โดยทางออกที่ใกล้ที่สุดคือ Exit 2 อยู่ห่างจากโครงการประมาณ 200 เมตร หากจะเดินทางด้วยรถยนต์ก็สะดวก เนื่องจากถนนพญาไทเชื่อมต่อกับถนนเส้นสำคัญๆ หลายสาย ได้มากมาย อาทิ ถนนพระราม 1 ถนนพระราม 4 ถนนสีลม และถนนอังรีดูนังต์ ย่าน จุฬา-สามย่าน ถือเป็นทำเลใจกลางเมืองย่านศูนย์กลางธุรกิจ แวดล้อมด้วยซูเปอร์มาร์เก็ต ฟิตเนส โรงพยาบาล สถานศึกษา และร้านค้ามากมาย อาทิ
- สามย่านมิตรทาวน์
- จุฬาลงกรณ์มหาวิทยาลัย
- โรงเรียนสาธิตจุฬาลงกรณ์มหาวิทยาลัย
- สนามกีฬาจุฬาลงกรณ์
- จามจุรีสแควร์
- สถานีตำรวจนครบาลปทุมวัน
- ตลาดสามย่าน
- วัดหัวลำโพง
- โรงพยาบาลจุฬาภรณ์
- สวนลุมพินี
- สยามพารากอน
- สยามเซ็นเตอร์
- เอ็มบีเค เซ็นเตอร์
- เซ็นทรัลเวิลด์
- โรงพยาบาลกรุงเทพคริสเตียน

แผนที่โครงก
าร ทริปเปิ้ล วาย เรสซิเดนซ์
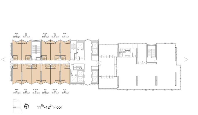
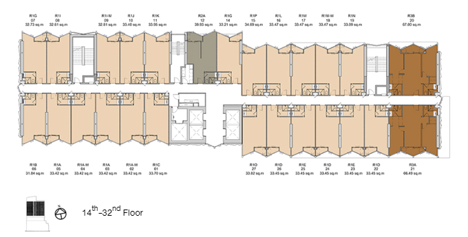
รูปแบบคอนโด และขนาดพื้นที่โครงการ
อาคารถูกออกแบบเป็นพิเศษให้ผู้อยู่อาศัยมีความเป็นส่วนตัว สงบ และพักผ่อนได้เต็มที่ในทุกวัน ห้องพักอาศัยน้อย โถงทางเดินแบบ Single Corridor ที่โถงทางเดินหน้าห้องมีแค่ฝั่งเดียว ทำให้ผู้อยู่อาศัยไม่ต้องเปิดประตูมาพบกับฝั่งตรงข้าม และคนเดินผ่านไปมาน้อย เพิ่มความสงบและเป็นส่วนตัว
- คอนโดมิเนียมเป็นแบบ High-rise สูง 33 ชั้น จำนวน 1 อาคาร
- ห้องพักอาศัย จำนวน 516 ยูนิต
แบบห้องและพื้นที่ใช้สอย
ห้องพักอาศัยตกแต่งไว้อย่างครบถ้วนแบบ Fully Furnished รูปแบบห้องพักอาศัยมีให้เลือกตั้งแต่
- 1 ห้องนอน พื้นที่ใช้สอยขนาด 34 ตร.ม.
- 1 ห้องนอน พื้นที่ใช้สอยขนาด 40 ตร.ม.
- 2 ห้องนอน พื้นที่ใช้สอยขนาด 68 ตร.ม.

ภาพจำลองห้องตัวอย่างภายในห้องพักอาศัย

ภาพจำลองห้องตัวอย่างภายในห้องพักอาศัย

ภาพจำลองห้องตัวอย่างภายในห้องพักอาศัย

ภาพจำลองห้องตัวอย่างภายในห้องพักอาศัย
สาธารณูปโภคภายในโครงการ
- สระว่ายน้ำ
- ห้อง Fitness พร้อมอุปกรณ์
- ห้อง Co-Working Space
- ห้อง Co learning space
- ห้อง Laundry room
- Roof Garden
- ระบบ Access Card Control
- กล้องวิดีโอวงจรปิด
- ระบบรักษาความปลอดภัยตลอด 24 ชม.
- ที่จอดรถ
อัปเดตความเคลื่อนไหวโครงการ
โครงการ ทริปเปิ้ล วาย เรสซิเดนซ์ เตรียมเปิดขายรอบ Presale 10 มี.ค. นี้ โดยคาดว่าจะสร้างเสร็จพร้อมอยู่อาศัยภายในเดือน ก.ย. 2562 ผู้ที่สนใจสามารถติดต่อได้ที่สำนักงานขายโครงการ ชั้น 2 จามจุรีสแควร์ สามารถติดต่อได้ทุกวันตั้งแต่ 10.00 - 20.00 น. ลงทะเบียนรับสิทธิพิเศษและข้อมูลเพิ่มเติมด้านล่าง
สอบถามรายละเอียดเพิ่มเติม โทร. 065-275-7472 และ 065-275-7297 หรือ
www.tripleyresidence.com