เดอะ ทีค สาทร - ลุมพินี (The Teak Sathorn - Lumpini)... คอนโดใจกลางเมือง ใกล้ MRT คลองเตย
เดอะ ทีค สาทร - ลุมพินี (The Teak Sathorn - Lumpini) คอนโดมิเนียม High-rise ระดับพรีเมียมโครงการใหม่ล่าสุดจาก บริษัท แอล เค เอช ดีเวลลอปเม้นท์ จำกัด นิยามใหม่ของการใช้ชีวิตใจกลางเมือง ทั้งความสะดวกสบายของชีวิตใจกลางเมืองหลวง ความรวดเร็วในการเดินทางด้วยระบบขนส่งสาธารณะที่เชื่อมโยงคุณกับทุกพื้นที่ในกรุงเทพฯ ได้อย่างรวดเร็ว ใกล้ MRT สถานีลุมพินีและคลองเตย และพื้นที่สีเขียวใจกลางกรุงที่พร้อมมอบความสดชื่นให้คุณในทุกวัน เตรียมเปิด Exclusive Pre-Sale วันที่ 21 - 22 กรกฎาคม 2561
ราคาเริ่มต้น
ราคาเริ่มต้น 3.3 ล้านบาท หรือราคาเฉลี่ยประมาณ 127,000 บาท/ตร.ม.
เจ้าของโครงการ
บริษัท ทีค ดีเวลลอปเม้นท์ จำกัด
ทำเล และสถานที่ตั้งใกล้เคียง
คอนโด เดอะ ทีค สาทร - ลุมพินี ตั้งอยู่ในซอยศรีบำเพ็ญ ถนนพระรามสี่ เดินทางได้อย่างสะดวกสบาย ใกล้ MRT สถานีลุมพินี MRT สถานีคลองเตย และไม่ไกลจากจุดขึ้น-ลงทางพิเศษเฉลิมมหานคร โดยรอบโครงการแวดล้อมไปด้วยสิ่งตอบโจทย์สำหรับชีวิตในเมือง ทั้งห้างสรรพสินค้า Community malls สถานศึกษาทุกระดับชั้น โรงพยาบาล โรงภาพยนตร์ สถานบันเทิงและสวนสาธารณะที่เป็นปอดของกรุงเทพฯ อย่างสวนลุมพินีก็อยู่ไม่ไกลเกินกว่าระยะเดินสบายๆ
- Tops Market นางลิ้นจี่
- ตลาดนางลิ้นจี่
- ดิอัพ พระราม 3
- เทสโก้ โลตัส พระราม 3
- เซ็นทรัล พระราม 3
- นานา พลาซ่า
- โรงเรียนนานาชาติ Raintree
- โรงเรียนนานาชาติ Garden
- มหาวิทยาลัยเทคโนโลยีราชมงคลกรุงเทพ
- โรงแรม ibis
- ศูนย์การประชุมแห่งชาติสิริกิติ์
- โรงพยาบาล BNH
- โรงพยาบาล กรุงเทพคริสเตียน
- เอ็มไพร์ ทาวเวอร์ สาทร
- ตึกมหานคร
- สวนลุม

แผนที่โครงการ ดอะ ทีค สาทร-ลุมพินี
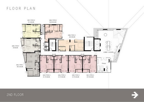
รูปแบบคอนโด และขนาดพื้นที่โครงการ
- คอนโดมิเนียมเป็นแบบ Low-rise สูง 8 ชั้น จำนวน 1 อาคาร
- พื้นที่โครงการประมาณ 0-2-64 ไร่
- ห้องพักอาศัย จำนวน 78 ยูนิต
แบบห้องและพื้นที่ใช้สอย
แรงบันดาลใจในการออกแบบตัวอาคารของคอนโด เดอะ ทีค สาทร - ลุมพินี มีการใช้ประโยชน์จากพื้นที่อย่างชาญฉลาด ด้วยการผสานรูปแบบที่ทันสมัยแบบ Urban City Life เข้ากับวัสดุธรรมชาติที่จัดวางให้เกิดเป็นเส้นสายที่ตัดกันในแบบมินิมอล เน้นขับมิติของตัวอาคารด้วยการเล่นระนาบ ทำให้ตัวอาคารของ TEAK Sathorn - Lumpini มีความลงตัวทั้งด้านการออกแบบทางสถาปัตยกรรม และความกลมกลืนกับพื้นที่โดยรอบ
ห้องพักอาศัย ได้แก่
- แบบ 1 Bedroom พื้นที่ใช้สอยขนาด 25.1-35.5 ตร.ม.
- แบบ 2 Bedroom Plus พื้นที่ใช้สอยขนาด 44.3 ตร.ม.

ภาพจำลองห้องตัวอย่างภายในห้องพักอาศัย

ภาพจำลองห้องตัวอย่างภายในห้องพักอาศัย

ภาพจำลองห้องตัวอย่างภายในห้องพักอาศัย

ภาพจำลองห้องตัวอย่างภายในห้องพักอาศัย
สาธารณูปโภคภายในโครงการ
- ล็อบบี้
- สระว่ายน้ำ
- ห้องฟิตเนส พร้อมอุปกรณ์ครบครัน
- Co-Working Space
- สวนหย่อม
- Sala Chilling Lounge
- กล้องวงจรปิด
- Wifi-Internet
- EV Charger
- Smart Locker
- ตู้จดหมาย
- ลิฟต์โดยสารจำนวน 2 ตัว แบบล็อคชั้น
- กล้องวิดีโอวงจรปิด
- ระบบ Access Card Control
- ระบบรักษาความปลอดภัยตลอด 24 ชม.

ภาพจำลองบรรยากาศด้านหน้าโครงการ

ภาพจำลองบรรยากาศล็อบบี้

ภาพจำลองบรรยากาศพื้นที่สำหรับนั่งเล่นพักผ่อนบนชั้น 1

ภาพจำลองบรรยากาศภายในล็อบบี้
ภาพจำลองบรรยากาศภายในล็อบบี้ 
ภาพจำลองบรรยากาศภายในห้องฟิตเนส

ภาพจำลองบรรยากาศ Sky Facilities บนชั้นดาดฟ้า

ภาพจำลองบรรยากาศสระว่ายน้ำ

ภาพจำลองบรรยากาศสวนพักผ่อนบนชั้นดาดฟ้า
อัพเดตความเคลื่อนไหวโครงการ
คอนโด เดอะ ทีค สาทร - ลุมพินี เตรียมเปิดจองรอง Exclusive Pre-Sale ในวันที่ 21 - 22 กรกฎาคม 2561 นี้ ณ สำนักงานขายโครงการ
สอบถามรายละเอียดเพิ่มเติม โทร. 099-231-4433, 095-746-9891 หรือ
www.theteakcondo.com/sathorn-lumpini