"BluPhere Pattaya" คอนโดริมหาดนาจอมเทียน พัทยา
บลูเฟียร์ พัทยา แมนเนจ บาย เบสท์ เวสเทิร์น พรีเมียร์ คอลเล็คชั่น (BluPhere Pattaya Managed By BW Premier Collection) คอนโดเพื่อการลงทุนแห่งใหม่โครงการล่าสุดจาก Habitat Group คอนโดเพื่อการลงทุนแห่งใหม่ ที่การันตีค่าเช่า 7% ต่อปี เป็นเวลา 5 ปี โครงการนี้ตั้งอยู่ที่ ซอยนาจอมเทียน 18 ถนนสุขุมวิท ตำบลนาจอมเทียน อำเภอสัตหีบ จังหวัดชลบุรี เพียง 100 เมตรจากหาดนาจอมเทียน บนพื้นที่ 3 งาน 97 ตร.ว.สูง 8 ชั้น มีห้องพักอาศัยรวม 195 ยูนิต พร้อมสิ่งอำนวยความสะดวกครบครันภายในโครงการ
ราคาเริ่มต้น
หลังจากเปิดตัวไปแล้วเมื่อวันที่ 18-19 มีนาคม 2560 ราคาปัจจุบันเริ่มต้นที่ 3 ล้านบาท* (ณ วันที่ 29 มีนาคม 2560)
เจ้าของโครงการ
บริษัท ฮาบิแทท กรุ๊ป จำกัด
ทำเล และสถานที่ตั้งใกล้เคียง
โครงการนี้ตั้งอยู่ที่ซอยนาจอมเทียน 18 ถนนสุขุมวิท ตำบลนาจอมเทียน อำเภอสัตหีบ จังหวัดชลบุรี ห่างจากชายหาดนาจอมเทียนเพียง 100 เมตร อยู่ใกล้สถานที่สำคัญต่างๆ เช่น Mimosa Pattaya The Glass House สวนน้ำการ์ตูนเน็ตเวิร์ค หาดบางเสร่ สวนนงนุช ตลาดน้ำพัทยา หาดจอมเทียน วัดนาจอมเทียน สำนักงานอัยการพัทยา และพัทยาแคมป์ช้าง
แผนที่ตั้งโครงการ บลูเฟียร์ พัทยา (BluPhere Pattaya)
รูปแบบคอนโด และขนาดพื้นที่โครงการ
- คอนโดมิเนียมเป็นแบบ Low-Rise ความสูง 8 ชั้น จำนวน 1 อาคาร
- พื้นที่โครงการประมาณ 0-3-97 ไร่
- ห้องชุดพักอาศัยรวม 195 ยูนิต

ชั้น 1

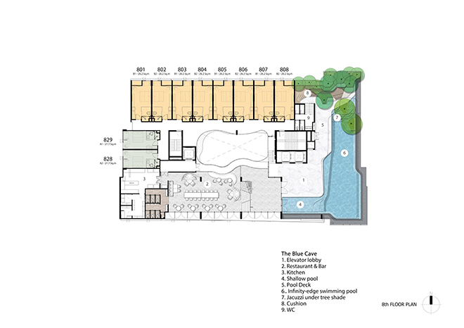
ชั้น 8

ชั้น 9
แบบห้องและพื้นที่ใช้สอย
- 1 Bedroom (Type A) : 21.70 ตร.ม. (Ocean Front & Mountain View)
- 1 Bedroom (Type B) : 26.20 ตร.ม. (Ocean View)

1 Bedroom (Type A) : 21.70 ตร.ม. (Ocean Front & Mountain View)

1 Bedroom (Type A) : 21.70 ตร.ม. (Ocean Front & Mountain View)

1 Bedroom (Type A) : 21.70 ตร.ม. (Ocean Front & Mountain View)

1 Bedroom (Type B) : 26.20 ตร.ม. (Ocean View)

1 Bedroom (Type B) : 26.20 ตร.ม. (Ocean View)
สาธารณูปโภคภายในโครงการ
- Lobby Restaurant and Bar
- Rooftop garden
- Business Lounge
- Fitness Center
- Jacuzzi
- Playground
- BBQ area
- Infinity Edge Pool
- Sunbathing deck
- Cabanas Rooftop
อัพเดตความเคลื่อนไหวโครงการ
ปัจจุบันราคาขายของโครงการ
บลูเฟียร์ พัทยา แมนเนจ บาย เบสท์ เวสเทิร์น พรีเมียร์ คอลเล็คชั่น (BluPhere Pattaya Managed By BW Premier Collection) เริ่มต้นที่ 3 ล้านบาท (3 - 3.7 ล้านบาท) (ณ วันที่ 29 มีนาคม 2560) ซึ่งถูกกว่าคอนโดในใจกลางกรุงเทพมหานครเกือบครึ่ง มีรายได้ 60,000-70,000 บาท ก็สามารถที่จะลงทุนคอนโดตากอากาศได้ เพราะจ่ายดาวน์ประมาณเดือนละ 15,000-20,000 บาท ถือว่าเป็นจำนวนเงินที่ไม่หนักเกินไปสำหรับกลุ่มคนวัยทำงาน ถือเป็นตัวเลือกที่ดีในการลงทุนในยุคนี้และเป็นโอกาสที่ดีที่มีคอนโดพรีเมียมให้ได้ลงทุนกันในราคาจับต้องได้ อ่านต่อได้ที่
BluPhere Pattaya : Passive Income รูปแบบใหม่...ง่ายๆ ไม่ต้องดูแลเอง ท่านใดที่สนใจสามารถลงทะเบียนได้รับส่วนลด 100,000 บาท* ที่ลิงก์ด้านล่างนี้ สอบถามรายละเอียดเพิ่มเติมได้ที่
www.bluphere.com หรือ โทร. 06 1840 0006