น็อตติ้ง ฮิลล์ สุขุมวิท 105 (Notting Hill - Sukhumvit 105) ใกล้เพียงก้าวเดิน 400 ม. จาก BTS แบริ่ง
น็อตติ้ง ฮิลล์ สุขุมวิท 105 (Notting Hill - Sukhumvit 105) คอนโดมิเนียม Low Rise 8 ชั้น คอนโดโครงการใหม่จาก บริษัท ออริจิ้น พร็อพเพอร์ตี้ จำกัด (มหาชน) เกาะแนวรถไฟฟ้าสายสีเขียว ใกล้สถานีแบริ่งในระยะที่เดินได้เพียง 400 เมตร พร้อมพื้นที่ส่วนกลางขนาดใหญ่ ให้คุณใช้ชีวิตบรรเจิด ตอบโจทย์ทุกไลฟ์สไตล์ของชีวิตแบบคนเมือง
ราคาเริ่มต้น
1 Bedroom (Type A) 25.5 ตร.ม. ราคา 1.69 ล้านบาท
เจ้าของโครงการ
บริษัท ออริจิ้น พร็อพเพอร์ตี้ จำกัด (มหาชน)
ทำเล และสถานที่ตั้งใกล้เคียง
โครงการตั้งอยู่ในซอยสุขุมวิท 105 หรือซอยลาซาล แขวงบางนา เขตบางนา ใกล้รถไฟฟ้า BTS สถานีแบริ่ง เพียง 400 เมตร โดยซอยลาซาลเป็นถนนที่สามารถเชื่อมต่อไปยังถนนได้หลากหลายเส้นทางทั้งถนนสุขุมวิท ถนนศรีนครินทร์ ถนนบางนา-ตราด ถนนสุขุมวิท และยังไม่ไกลทางด่วน นอกจากนี้โดยรอบโครงการยังรายล้อมด้วย แหล่งช้อปปิ้ง โรงเรียน และสถานที่สำคัญต่างๆ อาทิ
- โลตัส เอ็กซ์เพรส 1 ม.
- 7-Eleven 5 ม.
- เซ็นเตอร์พ้อยท์ เอ็นเตอร์เทนเม้นท์ 350 ม.
- โรงเรียนนานาชาติ เซนต์ แอนดรูว์ส 500 ม.
- ศูนย์พัฒนากีฬาราชนาวี บางนา 800 ม.
- ธนาคารไทยพาณิชย์ 1.3 ก.ม.
- ทางด่วน 1.8 ก.ม.
- โรงเรียนบางกอกพัฒนา 2.0 ก.ม.
- ไบเทค นางนา a 2.0 ก.ม.
- ภิรัชทาวเวอร์ บางนา 2.0 ก.ม.
- เซ็นทรัลพลาซา บางนา 4.0 ก.ม.

แผนที่ตั้งโครงการ น็อตติ้ง ฮิลล์ สุขุมวิท 105
รูปแบบคอนโดและขนาดพื้นที่โครงการ
- คอนโดมิเนียม Low Rise แบ่งเป็นอาคารพักอาศัยสูง 8 ชั้น 6 อาคาร และ Clubhouse สูง 3 ชั้น 1 อาคาร
- ขนาดที่ดิน 8-0-40 ไร่
- ห้องพักอาศัย 1,113 ยูนิต
แบบห้องและพื้นที่ใช้สอย
ห้องพักอาศัยแบบ 1 ห้องนอน มีรูปแบบห้องพักอาศัยให้เลือกมากถึง 7 Type แบ่งเป็น
-
- Type A พื้นที่ใช้สอย 25.50 ตร.ม.
- Type B พื้นที่ใช้สอย 25.50 ตร.ม.
- Type C พื้นที่ใช้สอย 29.50 ตร.ม.
- Type D พื้นที่ใช้สอย 33.00 ตร.ม.
- Type E พื้นที่ใช้สอย 34.00 ตร.ม.
- Type F พื้นที่ใช้สอย 40.50 ตร.ม.
- Type G พื้นที่ใช้สอย 43.50 ตร.ม.

ตัวอย่าง Unit Plan ห้อง Type A
ตัวอย่าง Unit Plan ห้อง Type B
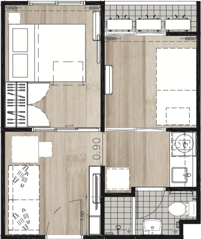
ตัวอย่าง Unit Plan ห้อง Type C สาธารณูปโภคภายในโครงการ
- Rosemead Garden
- English Garden
- Reflexology Walking
- Relax Pool
- Steam
- Sauna
- Jogging track
- Sky garden
- Serviced condo
- Hi speed internet
- Co-Working space (building A, B)
- 105 Club house
- Double Volume Lobby
- Fitness with personal trainer
- Lap Pool
- Co-working space
- Irish Sports Club corner
- Pool table
- Football table
- Live football
- Bar
อัพเดตความเคลื่อนไหวโครงการ
โครงการ น็อตติ้ง ฮิลล์ สุขุมวิท 105 เตรียมเปิดให้จองในวันที่ 18 มีนาคม 2560 นี้ โดยปัจจุบันเปิดให้เข้าชมห้องตัวอย่างได้แล้วที่ Sales Gallery ตั้งแต่เวลา 10.00 น. - 19.00 น. ของทุกวัน ผู้ที่สนใจสามารถคลิกลงทะเบียนเพื่อรับสิทธิพิเศษได้ที่ลิงก์ด้านล่างนี้
สอบถามข้อมูลเพิ่มเติมได้ที่สำนักงานขาย โทร. 02-030-0000 หรือ www.origin.co.th