The Bangkok Thonglor (เดอะ แบงค็อค ทองหล่อ) คอนโด Super Luxury ใกล้ BTS ทองหล่อ 400 เมตร
เดอะ แบงค็อค ทองหล่อ (The Bangkok Thonglor) คอนโดมิเนียมระดับ Super Luxury จากบริษัท แลนด์ แอนด์ เฮ้าส์ จำกัด (มหาชน) ที่สงบและเป็นส่วนตัว พร้อมจุดเด่นตัวอาคารที่ออกแบบให้เป็นกระจกทั้งหมด โดยไม่เป็นกรอบกระจกจากภายนอกเสมือน Crystal ที่ฉายประกายแวววาว เสริมความหรูหราทันสมัยด้วยหินอ่อน และ Copper ให้พื้นที่ 3 ชั้น บนสุดเป็น Floor Facilities เสมือน Penthouse ของลูกบ้านทุกคนที่สามารถใช้พื้นที่ส่วนกลางนี้เพื่อการผ่อนคลายอย่างเหนือระดับ อยู่ใกล้รถไฟฟ้า BTS สถานีทองหล่อ ประมาณ 400 เมตร
ราคาเริ่มต้น
ราคาเริ่มต้น 18 ล้านกว่าบาท สำหรับห้อง 1 ห้องนอน ขนาด 53.00 ตร.ม.
เจ้าของโครงการ
บริษัท แลนด์ แอนด์ เฮ้าส์ จำกัด (มหาชน)
ทำเล และสถานที่ตั้งใกล้เคียง
โครงการตั้งอยู่ในซอยทองหล่อ หรือสุขุมวิท 55 บริเวณปากซอยทองหล่อ 1 ถนนสุขุมวิท 55 แขวงคลองตันเหนือ เขตวัฒนา กทม. การเดินทางด้วยรถยนต์ สามารถใช้ได้ทั้งถนนเส้นสุขุมวิท ถนนเพชรบุรี หรือวิ่งลัดเลาะในซอยทองหล่อวิ่งลัดไปออกเอกมัยก็ได้เช่นกัน การเดินทางด้วยรถไฟฟ้าก็สะดวกสบาย เพราะอยู่ใกล้ BTS สถานีทองหล่อเพียง 400 เมตร โดยรอบโครงการแวดล้อมด้วยร้านอาหารมากมายที่อยู่ภายในซอยทองหล่อ นอกจากนี้ยังไม่ไกลจาก โรงพยาบาล, ธนาคาร, Commumity Mall, สถานศึกษา และร้านสะดวกซื้อ อาทิ
- ห้าง EM District
- เจ อเวนิว ทองหล่อ
- Grass Thonglor
- Tops Market Place
- Foodland
- ธนาคารสแตนดาร์ดชาร์เตอร์ด ทองหล่อ
- สถานีตำรวจทองหล่อ
- โรงพยาบาลคามิลเลียน
- โรงพยาบาลสมิติเวช
- โรงเรียนนานาชาติ บางกอกเพรพ
- สวนเบญจสิริ

แผนที่ตั้งโครงการ The Bangkok Thonglor
รูปแบบคอนโด และขนาดพื้นที่โครงการ
คอนโดมิเนียม High Rise สูง 31 ชั้น จำนวน 1 อาคาร เนื้อที่ 1-2-94 ไร่ ห้องพักอาศัย 148 ยูนิต แบบห้องและพื้นที่ใช้สอย
- 1 ห้องนอน พื้นที่ใช้สอยขนาด 55.8 ตร.ม. ถูกออกแบบมาเพื่อการใช้สอยอย่างต่อเนื่องและระเบียง 2 ชั้นเพื่อการใช้งานอย่างสูงสุด
- 2 ห้องนอน พื้นที่ใช้สอยขนาด 91-94 ตร.ม. ตำแหน่งหัวมุมที่สามารถได้วิวสองทิศทาง
- 2 ห้องนอน พื้นที่ใช้สอยขนาด 82-85 ตร.ม. ห้องแบบมาตรฐานที่ออกแบบให้สามารถแบ่งพื้นที่ใช้สอยให้เป็นสัดส่วน

ภาพจำลองบรรยากาศภายในห้องนั่งเล่นของห้องแบบ 1 ห้องนอน
ภาพจำลองบรรยากาศภายในห้องนอนของห้องแบบ 1 ห้องนอน
ภาพจำลองบรรยากาศภายในห้องนั่งเล่นของห้องแบบ 2 ห้องนอน
ภาพจำลองบรรยากาศภายในห้องนอนของห้องแบบ 2 ห้องนอน สาธารณูปโภคภายในโครงการ
- Lobby Lounge
- Board Room
- Pocket Garden
- Sky Terrace
- Upper Sky Terrace
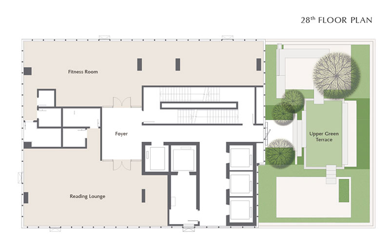
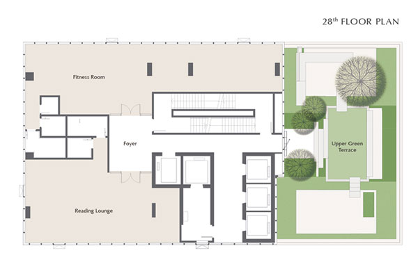
- Reading Lounge
- Sky Fitness
- Seperated male/ female sky Japanese Onsen and 360 Degree Rooftop
- Swimming Pool
- Security 24 hour
- CCTV
- Key Card Access

ภาพจำลองบรรยากาศ LOBBY ที่ให้ความรู้สึกความอบอุ่นและสบายเสมือนห้องรับแขกของลูกบ้าน
ภาพจำลองบรรยากาศ READING LOUNGE
ออกแบบเพื่อการผ่อนคลายอย่างแท้จริง พร้อมให้คุณได้เพลิดเพลินไปกับกิจกรรมยามว่างหรือหนังสือเล่มโปรด
ภาพจำลองบรรยากาศ ONSEN แบบญี่ปุ่นทั้งชั้นที่แบ่งโซนสำหรับผู้ชายและผู้หญิงเพื่อการผ่อนคลายอย่างเหนือระดับ
อัพเดตความเคลื่อนไหวโครงการ
โครงการ เดอะ แบงค็อค ทองหล่อ เดิมจะเปิด Pre-Sale ที่โรงแรม Grande Centre Point Terminal 21 วันเสาร์ที่ 22 ตุลาคม ที่ผ่านมา แต่ปัจจุบันเลื่อนกำหนดการ Pre-Sale ออกไปก่อนซึ่งยังไม่มีกำหนดอย่างเป็นทางการ
สอบถามข้อมูลเพิ่มเติมได้ที่สำนักงานขาย โทร. 1198 หรือ
www.lh.co.th