เอ พลัส อินสไปร์ รัตนาธิเบศร์ 11 (A Plus Inspire Rattanathibet 11) เพียง 220 เมตร จากสถานีบางกระสอ
เอ พลัส อินสไปร์ รัตนาธิเบศร์ 11 (A Plus Inspire Rattanathibet 11 ) คอนโดมิเนียมโครงการใหม่จาก บริษัท เอ พลัส เรียลเอสเตท จำกัด ใกล้รถไฟฟ้าเพียง 220 เมตร จากสถานีบางกระสอ มีความเป็นส่วนตัวด้วยจำนวนยูนิตพักอาศัยเพียง 70 ยูนิตเท่านั้น พร้อมสรรพทุกความสะดวก และการเดินทาง ใกล้ศูนย์การค้า ทั้งเซ็นทรัล รัตนาธิเบศร์, เดอะมอลล์ งามวงศ์วาน และ ทางด่วนงามวงศ์วาน กับราคาเริ่มต้นไม่ถึงล้าน
ราคาเริ่มต้น
990,000 บาท สำหรับห้องสตูดิโอ ขนาด 20.00 ตร.ม.
ทำเลและสถานที่ตั้งใกล้เคียง
โครงการตั้งอยู่ที่ ถ.รัตนาธิเบศร์ อ.เมืองนนทบุรี จ.นนทบุรี โดยเข้าไปในซอยรัตนาธิเบศร์ 11 อยู่ห่างจากรถไฟฟ้าสายสีม่วง สถานีบางกระสอประมาณ 220 เมตร การเดินทางสามารถเชื่อมต่อถนนเส้นสำคัญได้หลายสาย ไม่ว่าจะเป็นถนนงามวงศ์วาน ถนนติวานนท์ หรือถนนราชพฤกษ์ โดยรอบโครงการแวดล้อมด้วยห้างสรรพสินค้า และสถานที่สำคัญ อาทิ
- บิ๊กซี รัตนาธิเบศร์
- บิ๊กซี ติวานนท์
- โลตัส งามวงศ์วาน
- เซ็นทรัล รัตนาธิเบศร์
- เดอะมอลล์ งามวงศ์วาน
- พันธุ์ทิพย์ งามวงศ์วาน
- ศูนย์ราชการจังหวัดนนทบุรี
- เอสพานาดงามวงศ์วาน
- กระทรวงสาธารณสุขนนทบุรี
- อุทยานมกุฏรมย์สราญ
- โรงพยาบาลทรวงอก

แผนที่แสดงที่ตั้งโครงการ เอ พลัส อินสไปร์ รัตนาธิเบศร์ 11
รูปแบบคอนโด และขนาดพื้นที่โครงการ
- อาคารคอนโดมิเนียม 8 ชั้น จำนวน 1 อาคาร
- พื้นที่โครงการประมาณ 193 ตารางวา
- จำนวนห้องชุดพักอาศัย รวม 70 ยูนิต

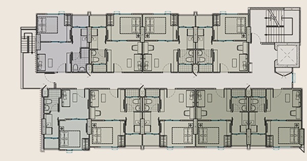
Master Plan ของพื้นที่ชั้น 1

แผนผังแสดงพื้นที่ชั้น 2-5
แผนผังแสดงพื้นที่ชั้น 2-5
แผนผังแสดงพื้นที่ชั้น 7
แผนผังแสดงพื้นที่ชั้น 8 แบบห้องและพื้นที่ใช้สอย
- แบบสตูดิโอ ขนาด 20 และ 21 ตร.ม.
- แบบ 1 ห้องนอน ขนาด 25, 27 และ 28 ตร.ม.

UNIT PLAN A ขนาด 25, 27, 28 ตารางเมตร 1 ห้องนอน 1 ห้องน้ํา ห้องครัว ห้องนั่งเล่น

UNIT PLAN B ขนาด 20,21 ตารางเมตร 1 ห้องสตูดิโอ 1 ห้องน้ำ

UNIT PLAN C ขนาด 21 ตารางเมตร 1 ห้องสตูดิโอ 1 ห้องน้ำ
สาธารณูปโภคภายในโครงการ
- สวนหย่อม
- ล็อบบี้
- ห้องออกกำลังกาย
- Sky Garden
- ลิฟต์โดยสาร 1 ตัว
- ระบบ Key Access Card
- ระบบกล้องวงจรปิด (CCTV)
- พนักงานรักษาความปลอดภัยตลอด 24 ชั่วโมง
- ที่จอดรถประมาณ 18.5% ไม่รวมจอดซ้อนคัน

ภาพจำลองบรรยากาศ Sky Garden

ภาพจำลองบรรยากาศทางเข้าล็อบบี้

ภาพจำลองบรรยากาศห้องออกกำลังกาย

ภาพจำลองบรรยากาศพื้นที่สีเขียวรอบโครงการ
อัพเดตความเคลื่อนไหวโครงการ
ปัจจุบันโครงการ เอ พลัส อินสไปร์ รัตนาธิเบศร์ 11 อยู่ระหว่างการก่อสร้าง โดยคาดว่าจะแล้วเสร็จพร้อมให้ลูกบ้านเข้าอยู่ได้ประมาณเดือนมีนาคม 2561
สอบถามรายละเอียดเพิ่มเติม โทร. 080-080-4882 หรือ www.apluscondo.com