เดอะ ลอฟท์ อโศก (The Lofts Asoke) การผสมสานของชีวิตและศิลปะที่ลงตัว
เดอะ ลอฟท์ อโศก (The Lofts Asoke) คอนโดใจกลางอโศกที่แท้จริง อยู่ติดถนนอโศกมนตรี ดีไซน์หรูหราพร้อมด้วยกลิ่นอายของวัฒนธรรมนิวยอร์กและลอนดอน เป็นจุด Interchange รถไฟใต้ดิน MRT สถานีเพชรบุรี และแอร์พอร์ตลิงก์ สถานีมักกะสัน ไม่ไกลจาก BTS สถานีอโศก และเรือด่วนคลองแสนแสบ
ราคาเริ่มต้น
ราคาเริ่มต้น 8 - 33 ล้านบาท เปิด PRE-SALES แล้ววันนี้!
เจ้าของโครงการ
บริษัท ไรมอน แลนด์ จำกัด (มหาชน)
ทำเล และสถานที่ตั้งใกล้เคียง
โครงการตั้งอยู่ริมถนนอโศกมนตรี แขวงคลองเตยเหนือ เขตวัฒนา กรุงเทพมหานคร 10110 อยู่ใกล้กับจุด interchange MRT เพชรบุรี และ Airport Link มักกะสัน นอกจากนั้นยังใกล้กับ BTS อโศกอีกด้วย จึงทำให้สามารถหลีกเลี่ยงปัญหาการจราจรที่คับคั่ง และเดินทางเชื่อมต่อไปที่ต่างๆ ได้สะดวก รวดเร็ว เนื่องจากโครงการอยู่กลางเมืองจึงแวดล้อมด้วยสิ่งอำนวยความสะดวกครบครัน ทั้งศูนย์การค้า ร้านอาหาร สถานพยาบาล สถานศึกษา และสถานที่สำคัญต่างๆ อาทิ
- โรงพยาบาลจักษุรัตนิน (ตรงข้ามโครงการ)
- Singha Complex (ในอนาคต)
- Terminal 21
- Robinson อโศก
- มหาวิทยาลัยศรีนครินทรวิโรฒ
- โรงเรียนวัฒนาวิทยาลัย

แผนที่แสดงที่ตั้งโครงการ เดอะ ลอฟท์ อโศก (The Lofts Asoke)
รูปแบบคอนโด และขนาดพื้นที่โครงการ

ภาพจำลองจากมุมสูง

ภายนอกอาคารมีความหรูหราและสวยงาม
- อาคารคอนโดมิเนียม 45 ชั้น 1 อาคาร
- พื้นที่โครงการประมาณ 1 ไร่ 2 งาน 65.8 ตารางวา
- จำนวนห้องชุดพักอาศัย รวม 211 ยูนิต

ชั้น 1
ชั้น 1 ประกอบด้วย
- RECEPTION LOBBY
- LIFT LOBBY
- AUTOMATED CARPARK
- DROP-OFF
- SECURITY CONTROL ROOM
- GENERATOR ROOM
- ELECTRICAL CONTROL ROOM

ชั้น 2
ชั้น 2 ประกอบด้วย
- RESIDENT'S LOUNGE/WORKSHOP
- LIFT LOBBY
- VOID
- AUTOMATED PARKING
- MEP ROOM
- MANAGEMENT OFFICE

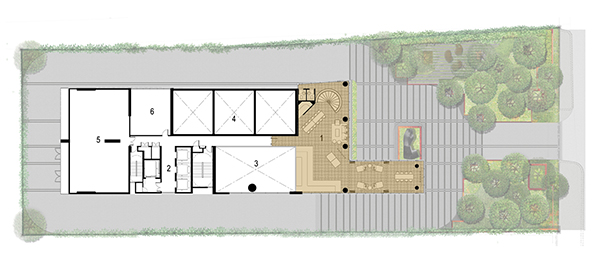
ชั้น 4
ชั้น 4 ประกอบด้วย
- GYM & GARDEN
- LIFT LOBBY
- VOID
- AUTOMATED PARKING
- UNIT 2A
- UNIT 2A

ชั้น 31
ชั้น 31 ประกอบด้วย
- POOL DECK
- LIFT LOBBY
- STEAMROOM
- 25M SWIMMING POOL
- UNIT L2A
- UNIT L2A
แบบห้องและพื้นที่ใช้สอย
ห้องพักอาศัยให้เลือกด้วยกันมากถึง 10 รูปแบบ โดยแต่ละชั้นจะมีห้องชุดไม่เกิน 7 ห้องเพื่อความสงบและเป็นส่วนตัว

แบบ 1A 1 Bedroom / 49 sq.m. Lofts Zone (3 - 30 Fl.)

แบบ 1B 1 Bedroom / 35 sq.m. Lofts Zone (6 - 30 Fl.)

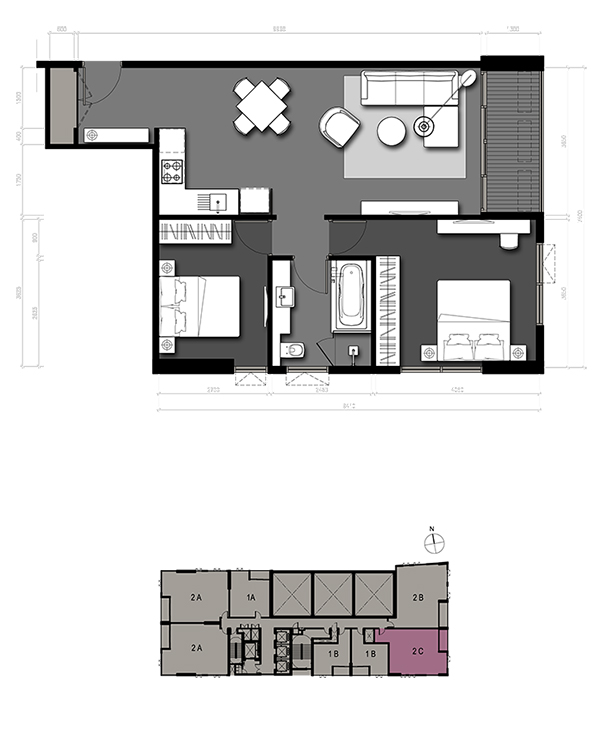
แบบ 2A 2 Bedrooms / 87 sq.m. Lofts Zone (3
- 30 Fl.)

แบบ 2B 2 Bedrooms / 86 sq.m. Lofts Zone (6 - 30 Fl.)
แบบ 2C 2 Bedrooms / 74 sq.m. Lofts Zone (6 - 30 Fl.)
- แบบ 1 ห้องนอน (Sky Lofts)

แบบ L1A 1 Bedroom Duplex / 77 sq.m. Sky Lofts Zone (31 Fl.)
แบบ L1B 1 Bedroom Duplex / 76 sq.m. Sky Lofts Zone (33/34 Fl.)
- แบบ 2 ห้องนอน (Sky Lofts)

แบบ L2A 2 Bedrooms Duplex / 120 sq.m. Sky Lofts Zone (31 - 37 Fl.)

แบบ L3A 3 Bedrooms Duplex / 127.5 sq.m. Sky Lofts Zone (32 - 37 Fl.)

แบบ L3B 3 Bedrooms Duplex / 145 sq.m. Sky Lofts Zone (32 Fl.)

Loft 2 ห้องนอน
Loft 2 ห้องนอน 
Living Room
Sky Loft 
Master Bathroom 
Master Bedroom สาธารณูปโภคภายในโครงการ
- Lobby
- Lounge
- Co-Working
- Fitness
- สวนพักผ่อน
- สวนลอยฟ้า
- สระว่ายน้ำยาว 25 เมตร
- Automated Parking
- Access Card Control
- ระบบรักษาความปลอดภัยตลอด 24 ชม. และ CCTV

Fitness

Lobby

Lounge

Swimming Pool
อัพเดตความเคลื่อนไหวโครงการ
ราคาเริ่มต้น 8 - 33 ล้านบาท เปิด PRE-SALES แล้ววันนี้! ผู้ที่สนใจสามารถคลิกลงทะเบียนเพื่อรับข่าวสารเพิ่มเติมได้ตามลิงก์ด้านล่างนี้
สอบถามรายละเอียดเพิ่มเติม โทร. 02 651 9600 หรือ
www.theloftsasoke.com