ดิสทริค 48 (District 48) คอนโดมิเนียมดีไซน์ใหม่ บนทำเลลาดพร้าว
ดิสทริค 48 (District 48) คอนโดมิเนียมดีไซน์ใหม่ ให้ผู้อาศัยได้ใกล้ชิดธรรมชาติมากขึ้น โดยออกแบบให้มีพื้นที่สีเขียวสอดแทรกอยู่ในตัวอาคาร โดดเด่นด้วยทำเลลาดพร้าว ใกล้ MRT สถานีรัชดาภิเษก และรถไฟฟ้าสายสีเหลืองในอนาคต อยู่ระหว่างสถานีภาวนาและโชคชัยสี่ ประมาณ 800 เมตร เข้าถึงสะดวก 450 เมตร จากซอยลาดพร้าว 48 ตัวอาคารดีไซน์สวยงามไม่ซ้ำใคร แวดล้อมด้วยสิ่งอำนวยความสะดวก ทั้งย่านลาดพร้าว รัชดาภิเษก และโชคชัยสี่
ราคาเริ่มต้น
1.59 ล้านบาท สำหรับขนาดเริ่มต้น 24.98 ตร.ม.
ทำเลและสถานที่ตั้งใกล้เคียง
โครงการตั้งอยู่ในซอยลาดพร้าว 48 แยก 6 อยู่ใกล้กับแยกรัชดาภิเษกตัดกับลาดพร้าว บริเวณนั้นจะมีรถไฟฟ้าใต้ดิน MRT สถานีรัชดาภิเษก ทำให้สามารถหลีกเลี่ยงปัญหาการจราจรที่คับคั่งได้ นอกจากนั้นยังมีรถไฟฟ้าสายสีเหลืองที่กำลังจะก่อสร้างในอนาคต ตัดผ่านช่วงรัชดาลาดพร้าว-พัฒนาการ โดยสถานีภาวนาจะอยู่ใกล้กับโครงการมากที่สุด นอกจากนี้โดยรอบโครงการยังแวดล้อมด้วยสิ่งอำนวยความสะดวกครบครัน ทั้งศูนย์การค้า สถานศึกษา อาทิ
- สวนลุมไนท์บาซ่า
- เมเจอร์รัชโยธิน
- เซ็นทรัลพลาล่า ลาดพร้าว
- ยูเนี่ยนมอลล์
- โรงเรียนหอวัง
- โรงเรียนนานาชาติเซนต์จอห์น
- ตลาดโชคชัย 4

แผนที่แสดงที่ตั้งโครงการ ดิสทริค 48 (District 48)
รูปแบบคอนโด และขนาดพื้นที่โครงการ
- อาคารคอนโดมิเนียม 8 ชั้น จำนวน 1 อาคาร
- พื้นที่โครงการประมาณ 260 ตารางวา
- จำนวนห้องชุดพักอาศัย รวม 79 ยูนิต

ชั้น 1

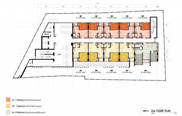
ชั้น 2

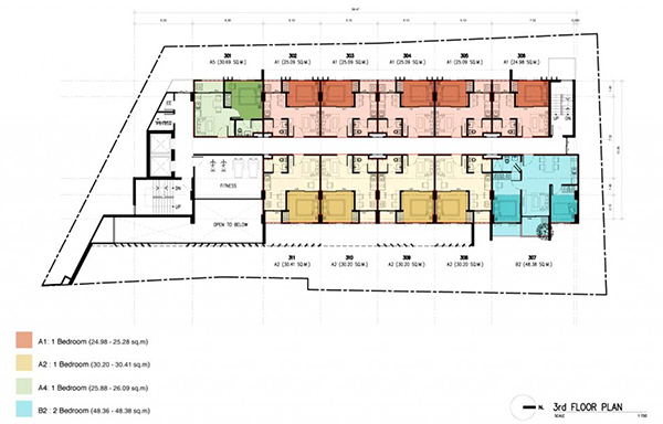
ชั้น 3

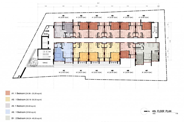
ชั้น 4

ชั้น 5

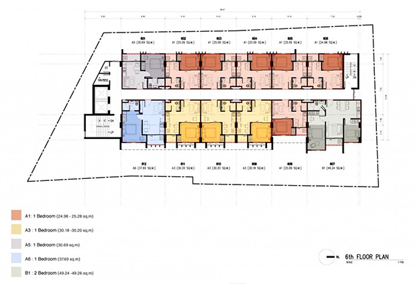
ชั้น 6

ชั้น 7

ชั้น 8
แบบห้องและพื้นที่ใช้สอย
การออกแบบภายในจะเป็นสไตล์เรียบง่ายแต่ร่วมสมัย มีห้องพักอาศัยให้เลือกด้วยกันมากถึง 10 แบบ ดังนี้
- แบบ 1 ห้องนอน ขนาดพื้นที่ใช้สอยตั้งแต่ 24.98 - 37.69 ตร.ม.

A1 24.98 - 25.28 ตร.ม.

A2 30.11 - 30.41 ตร.ม.

A3 30.18-30.20 ตร.ม.

A4 25.88 - 26.09 ตร.ม.

A5 30.69 ตร.ม.

A6 37.69 ตร.ม.

A7 33.03 ตร.ม.
- แบบ 2 ห้องนอน ขนาดพื้นที่ใช้สอยตั้งแต่ 45.28 - 49.26 ตร.ม.

B1 49.24 - 49.26 ตร.ม.

B2 48.36 - 48.38 ตร.ม.

B3 45.12 ตร.ม.
*หมายเหตุ ขนาดห้องอาจมีการเปลี่ยนแปลงได้ โปรดสอบถามข้อมูลอีกครั้งจากทางโครงการ

ตกแต่งด้วยโทนสีน้ำตาล-ครีม ให้ความรู้สึกอบอุ่น

ห้องครัวแยกเป็นสัดส่วน

ห้องนั่งเล่นที่สามมารถดีไซน์เป็นโฮมเธียร์เตอร์เล็กๆ ได้

ภายในห้องโปร่ง กว้าง ไม่อึดอัด
สาธารณูปโภคภายในโครงการ
- ล็อบบี้
- สวนหย่อม
- ฟิตเนส
- ระบบ Key Access Card
- ระบบกล้องวงจรปิด (CCTV)
- พนักงานรักษาความปลอดภัยตลอด 24 ชั่วโมง
- ที่จอดรถประมาณ 34 คัน

ห้องสมุดและฟิตเนส

บรรยากาศจำลองส่วนกลางของโครงการ

ล็อบบี้
อัพเดตความเคลื่อนไหวโครงการ
โครงการ ดิสทริค 48 (District 48) จะสร้างเสร็จประมาณเดือนมีนาคม 2560 โปรโมชั่นปัจจุบันจะให้เฟอร์นิเจอร์บิวท์อินยี่ห้อ Starmark มีเตียงพร้อมช่องเก็บของ หัวเตียง ตู้เสื้อผ้า และชุดครัวพร้อมเตาไฟฟ้า ที่ดูดควัน ยี่ห้อ Teka สุขภัณฑ์ของ American standard พร้อมแอร์สองตัวและวอลล์เปเปอร์
สอบถามรายละเอียดเพิ่มเติม โทร. 080 230 8888 หรือ
www.century21.co.th