ลุมพินี ซีวิว ชะอำ (Lumpini SeaView Cha-am) คอนโดวิวทะเล ใกล้หาดชะอำ เพียง 200 เมตร
บริษัท แอล.พี.เอ็น. ดีเวลลอปเมนท์ จำกัด (มหาชน) หรือ LPN ยังคงลุยตลาดคอนโดมิเนียมอย่างต่อเนื่อง โดยล่าสุดเปิดตัวคอนโดมิเนียมโครงการใหม่
ลุมพินี ซีวิว ชะอำ (Lumpini SeaView Cha-am) คอนโดตากอากาศสไตล์รีสอร์ท มูลค่าประมาณ 1,230 ล้านบาท หรือจะเรียกว่าเป็นเฟส 2 ของโครงการ
ลุมพินี พาร์ค บีช ชะอำ ก็ว่าได้ โดยจุดเด่นของโครงการนี้อยู่ที่ทำเลที่ตั้งใกล้ชายหาดชะอำเพียง 200 เมตร มีทางเดินลงจากตัวโครงการสามารถเชื่อมต่อมายังทะเลได้เลย
ราคาเริ่มต้น
ราคาเริ่มต้น 900,000 บาท สำหรับห้องเล็กสุดแบบ Studio ขนาด 22.50 ตร.ม.
เจ้าของโครงการ
บริษัท แอล.พี.เอ็น. ดีเวลลอปเมนท์ จำกัด (มหาชน)
ทำเล และสถานที่ตั้งใกล้เคียง
โครงการตั้งอยู่ใกล้ชายหาดชะอำ ถ.หนองแจง ต.ชะอำ อ.ชะอำ จ.เพชรบุรี ติดกับโครงการ ลุมพินี พาร์ค บีช ชะอำ การเดินทางก็สะดวก สามารถเข้าออกได้ 2 เส้นทางทั้งจากถนนสุขุมวิท เข้าซอยหนองแจงไปประมาณ 800 เมตร หรือจะเข้าจากทางถนนนราธิปแล้วเลี้ยวเข้าถนนร่วมจิตต์ก็ได้เช่นกัน ซึ่งตัวโครงการจะอยู่ใกล้ชายหาดชะอำ เพียง 200 เมตร มีถนนร่วมจิตต์กันระหว่างตัวโครงการกับชายหาด รายล้อมด้วยแหล่งท่องเที่ยว และสถานที่สำคัญ อาทิ
- ชายหาดชะอำ
- จุดชมวิวชายหาดชะอำ
- วนอุทยานชะอำ
- สถานีรถไฟชะอำ
- รายารีสอร์ท
- โรงแรมแกรนด์ แปซิฟิก ซอฟเฟอริน รีสอร์ท แอนด์ สปา

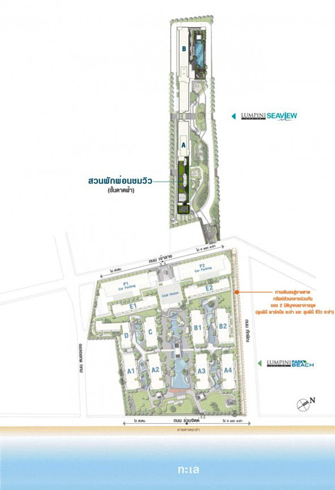
แผนที่โครงการ คอนโดลุมพินี ซีวิว ชะอำ
รูปแบบคอนโด และขนาดพื้นที่โครงการ
- คอนโดมิเนียมเป็นแบบ High-rise สูง 20 ชั้น จำนวน 2 อาคาร
- พื้นที่โครงการประมาณ 8 ไร่
- ห้องชุดพักอาศัยรวม 1,134 ยูนิต

แผนผังโครงการ คอนโดลุมพินี ซีวิว ชะอำ
แบบห้องและพื้นที่ใช้สอย
ห้องชุดพักอาศัยของโครงการจะอยู่ที่ชั้น 2-20 โดยมีห้องพักอาศัยให้เลือกด้วยกัน 2 แบบ ได้แก่ - แบบ สตูดิโอ พื้นที่ใช้สอยขนาด 22.50 - 35.50 ตร.ม.
- แบบ 1 ห้องนอน พื้นที่ใช้สอยขนาด 45.00 - 61.50 ตร.ม.
สาธารณูปโภคภายในโครงการ
- สระว่ายน้ำ
- ห้องออกกำลังกาย
- ล็อบบี้
- สวนสีเขียวรอบโครงการ
- ที่จอดรถประมาณ 350 คัน
- คลับเฮ้าส์
- จุดชมวิวชั้น 20
- ระบบ Key Card
- กล้องวิดีโอวงจรปิด
- ระบบรักษาความปลอดภัยตลอด 24 ชั่วโมง
อัพเดตความเคลื่อนไหวโครงการ
โครงการ ลุมพินี ซีวิว ชะอำ เตรียมเปิด Pre-Sale ประมาณเดือนกุมภาพันธ์ 2558 ที่จะถึงนี้ โดยโครงการจะสร้างแล้วเสร็จพร้อมเข้าอยู่ได้ประมาณกลางปี 2559 สำหรับผู้ที่สนใจสามารถเข้าชมห้องตัวอย่างได้แล้ววันนี้ ที่ถนนสุขุมวิท ซอยหนองแจง ต.ชะอำ อ.ชะอำ จ.เพชรบุรี ของทุกวัน หรือโทรสำรองคิวสำหรับรับจองห้องในวัน Pre-Sale ได้ที่เบอร์ 02-689-6801
สอบถามรายละเอียดเพิ่มเติม Call Center โทร. 02-689-6888
และสำนักงานขาย โทร. 032-470773 หรือ www.lpn.co.th