ลุมพินี พาร์คบีช ชะอำ (Lumpini Park Beach Cha-am) คอนโดตากอากาศสไตล์รีสอร์ทริมหาดชะอำ
บริษัท แอล.พี.เอ็น. ดีเวลลอปเมนท์ จำกัด (มหาชน) หรือ LPN ประเดิมเปิดตัวคอนโดมิเนียมโครงการแรกของปีนี้กับโครงการ
ลุมพินี พาร์คบีช ชะอำ (Lumpini Park Beach Cha-am) คอนโดตากอากาศสไตล์รีสอร์ท มูลค่ากว่า 800 ล้านบาท หลังประสบความสำเร็จกับโครงการ "ลุมพินี พาร์คบีช จอมเทียน" ไปแล้วก่อนหน้านี้ ให้คุณสัมผัสชีวิตติดทะเล พร้อมมนต์เสน่ห์แห่งการผักผ่อนริมหาดชะอำ
ราคาเริ่มต้น
ราคาเริ่มต้น 1.9 ล้านบาท สำหรับห้องเล็กสุดแบบ 1 ห้องนอน ขนาด 28.00 ตร.ม.
เจ้าของโครงการ
บริษัท แอล.พี.เอ็น. ดีเวลลอปเมนท์ จำกัด (มหาชน)
ทำเล และสถานที่ตั้งใกล้เคียง
โครงการตั้งอยู่ที่ ต.ชะอำ อ.ชะอำ จ.เพชรบุรี การเดินทางก็สะดวก สามารถเข้าออกได้ 2 ทางทั้งจากถนนสุขุมวิท เข้าซอยหนองแจงไปประมาณ 800 เมตร หรือจะเข้าจากทางถนนนราธิปแล้วเลี้ยวเข้าถนนร่วมจิตต์ก็ได้เช่นกัน ซึ่งตัวโครงการจะอยู่ริมหาดชะอำ มีถนนร่วมจิตต์กันระหว่างตัวโครงการกับชายหาด รายล้อมด้วยแหล่งท่องเที่ยว และสถานที่สำคัญ อาทิ - ชายหาดชะอำ
- จุดชมวิวชายหาดชะอำ
- วนอุทยานชะอำ
- สถานีรถไฟชะอำ
- รายารีสอร์ท
- โรงแรมแกรนด์ แปซิฟิก ซอฟเฟอริน รีสอร์ท แอนด์ สปา

แผนที่โครงการ คอนโดลุมพินี พาร์คบีช ชะอำ
รูปแบบคอนโด และขนาดพื้นที่โครงการ
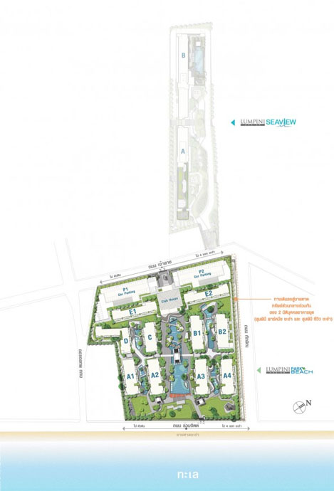
- คอนโดมิเนียมเป็นแบบ Low-rise สูง 4 ชั้น จำนวน 10 อาคาร
- พื้นที่โครงการประมาณ 15 ไร่
- ห้องชุดพักอาศัยรวม 400 ยูนิต

แผนผังโครงการ คอนโดลุมพินี พาร์คบีช ชะอำ
แบบห้องและพื้นที่ใช้สอย
ห้องพักอาศัยเป็น มี 2 แบบ ได้แก่ - แบบ 1 ห้องนอน พื้นที่ใช้สอยขนาด 28.00 - 49.00 ตร.ม.
- แบบ 2 ห้องนอน พื้นที่ใช้สอยขนาด 57.00 - 76.00 ตร.ม.
สาธารณูปโภคภายในโครงการ
- สระว่ายน้ำรอบโครงการจำนวน 6 สระ
- ห้องออกกำลังกาย
- ล็อบบี้
- สวนสีเขียวรอบโครงการ
- ที่จอดรถประมาณ 35%
- ระบบ Key Card
- กล้องวิดีโอวงจรปิด
- ระบบรักษาความปลอดภัยตลอด 24 ชั่วโมง

ภาพจำลองสระว่ายน้ำภายในโครงการ
อัพเดตความเคลื่อนไหวโครงการ
โครงการ ลุมพินี พาร์คบีช ชะอำ เตรียมเปิด Pre-Sale ประมาณปลายเดือนมกราคม 2558 ที่จะถึงนี้ โดยโครงการจะสร้างแล้วเสร็จพร้อมเข้าอยู่ได้ประมาณกลางปี 2559 สำหรับผู้ที่สนใจสามารถเข้าชมห้องตัวอย่างได้แล้ววันนี้ ที่ถนนสุขุมวิท ซอยหนองแจง ต.ชะอำ อ.ชะอำ จ.เพชรบุรี ของทุกวัน หรือโทรสำรองคิวสำหรับรับจองห้องในวัน Pre-Sale ได้ที่เบอร์ 02-689-6801
สอบถามรายละเอียดเพิ่มเติม Call Center 02-689-6888 และสำนักงานขาย 032-470773 หรือ www.lpn.co.th