Dolce Udomsuk (โดว์เช่ อุดมสุข) คอนโด Low-Rise ใกล้ BTS อุดมสุข
บริษัท สิริยศ จำกัด เตรียมเปิดตัวคอนโดใหม่สูง 7 ชั้น สไตล์โมเดิร์นอิตาเลียน
Dolce Udomsuk (โดว์เช่ อุดมสุข) อยู่บนทำเลใกล้แยกบางนา และใกล้รถไฟฟ้า ห่างจาก BTS สถานีอุดมสุขเพียง 600 เมตร พร้อมด้วยสิ่งอำนวยความสะดวกครบครัน และระบบรักษาความปลอดภัยตลอด 24 ชม.
ราคาเริ่มต้น
2 ล้านบาท ขายแบบ Fully Furnished
เจ้าของโครงการ
บริษัท สิริยศ จำกัด
ทำเล และสถานที่ตั้งใกล้เคียง
ตัวโครงการตั้งอยู่ในซอยสุขุมวิท 103/2 อยู่ห่างจาก BTS อุดมสุขประมาณ 600 เมตร และห่างจากสถานที่ใกล้เคียงต่างๆ เช่น
- โรงพยาบาลกล้วยน้ำไท 2 ประมาณ 500 เมตร
- BTS อุดมสุข ประมาณ 600 เมตร
- Bangkok Mall ประมาณ 600 เมตร
- ไบเทค บางนา ประมาณ 800 เมตร
- ปิยะรมย์ สปอร์ตคลับ ประมาณ 1 กิโลเมตร
- ทางยกระดับ ประมาณ 1 กิโลเมตร
- เซ็นทรัล บางนา ประมาณ 3 กิโลเมตร
- โรงเรียนนานาชาติ บางกอกพัฒนา ประมาณ 4 กิโลเมตร

แผนที่โครงการโดว์เช่ อุดมสุข
รูปแบบคอนโด และขนาดพื้นที่โครงการ
- คอนโดมิเนียมเป็นแบบ Low-Rise สูง 7 ชั้น จำนวน 1 อาคาร
- พื้นที่โครงการประมาณ 0-3-11 ไร่
- ห้องชุดพักอาศัยรวม 79 ยูนิต

Floor Plan ชั้น 1
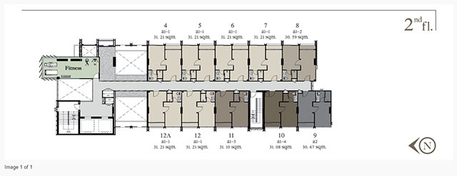
Floor Plan ชั้น 2
Floor Plan ชั้น 3-6
Floor Plan ชั้น 7 แบบห้องและพื้นที่ใช้สอย
- แบบ 1 ห้องนอน ขนาดเริ่มต้น 31 ตร.ม.
- แบบ 2 ห้องนอน ขนาดเริ่มต้น 67 ตร.ม.
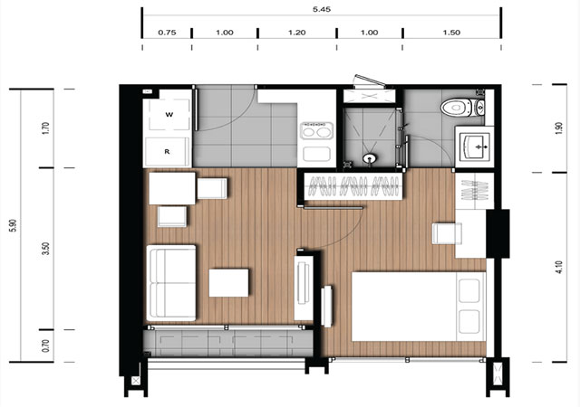
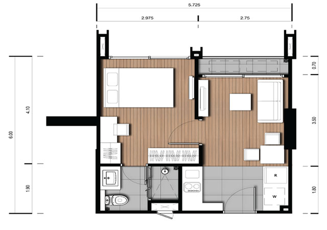
แปลนห้องตัวอย่างแบบ A1-1
แปลนห้องตัวอย่างแบบ A1-2
แปลนห้องตัวอย่างแบบ A1-3
แปลนห้องตัวอย่างแบบ A1-4
แปลนห้องตัวอย่างแบบ A1-5
แปลนห้องตัวอย่างแบบ A1-6
แปลนห้องตัวอย่างแบบ A2
แปลนห้องตัวอย่างแบบ A3
แปลนห้องตัวอย่างแบบ A4 สาธารณูปโภคภายในโครงการ
- สระว่ายน้ำ
- ฟิตเนส
- ห้องสมุด
- สวนหย่อม
- ระบบคีย์การ์ด
- กล้องวงจรปิดตลอด 24 ชั่วโมง
- เจ้าหน้าที่รักษาความปลอดภัย ตลอด 24 ชั่วโมง
อัพเดตความเคลื่อนไหวโครงการ
- ลงทะเบียนเพื่อรับสิทธิพิเศษได้ตามลิงก์ด้านล่าง
- เริ่ม Pre-Sale วันที่ 18 มกราคม 2558 นี้ พร้อมชมห้องตัวอย่างได้ที่สำนักงานขาย
- คาดว่าจะแล้วเสร็จประมาณปี 2559
- สำหรับผู้ที่สนใจสามารถสอบถามเพิ่มเติมได้ที่โทร. 02 399 2220 1 หรือ www.dolcecondo.com