สินธร เรสซิเดนซ์ (Sindhorn Residence)
บริษัท สยามสินธร จำกัด บริษัทลูกสำนักงานทรัพย์สินส่วนพระมหากษัตริย์ เริ่มเคลียร์พื้นที่ในซอยหลังสวนเตรียมพัฒนาอสังหาริมทรัพย์โครงการใหญ่แบบ Mixed Use ในชื่อ "หลังสวน วิลเลจ" (Langsuan Village) บนเนื้อที่ 56 ไร่ บริเวณถนนหลังสวนจรดถนนสารสิน โดย 37 ไร่ จะพัฒนาเป็นที่อยู่อาศัยประเภทต่างๆ ซึ่งให้เช่าทั้งในระยะสั้นและระยาว ไม่ว่าจะเป็น คอนโดมิเนียม เซอร์วิสอพาร์ตเมนต์ โรงแรม ฯลฯ และพื้นที่ส่วนที่เหลืออีกเกือบ 20 ไร่ จะเป็นพื้นที่สำหรับ Walking Street Retail Plaza, Supermarket, Art Museum และอื่นๆ โดยมูลค่าการลงทุนทั้งโครงการรวมประมาณ 26,000 ล้านบาท คาดว่าจะก่อสร้างแล้วเสร็จสมบูรณ์ทั้งโครงการในปี 2562
โดยคอนโดมิเนียมที่จะสร้างในโครงการ Mixed Use ขนาดยักษ์ Langsuan Village นี้จะมีชื่อว่า "สินธร เรสซิเดนซ์" (Sindhorn Residence) ซึ่งจะเป็นโครงการระดับไฮเอนด์
สินธร เรสซิเดนซ์ (Sindhorn Residence) สูง 35 ชั้น และ 10 ชั้น รวม 200 ยูนิต ขนาด 1-3 ห้องนอน มีพื้นที่ตั้งแต่ 35 ตารางเมตร มูลค่าโครงการ 3,000 ล้านบาท
ราคาเริ่มต้น
210,000 บาท/ตร.ม.
เจ้าของโครงการ
บริษัท สยามสินธร จำกัด
ทำเล และสถานที่ตั้งใกล้เคียง
สินธร เรสซิเดนซ์ (Sindhorn Residence) ตั้งอยู่ในพื้นที่ของโครงการหลังสวนวิลเลจ ใจกลางเมือง มีพื้นที่ของโปรเจ็คนี้ทั้งหมดถึง 56 ไร่ บนถนนหลังสวน แขวงลุมพินี เขตปทุมวัน กรุงเทพมหานคร
โดยห่างจากสถานที่ใกล้เคียงต่างๆ เช่น - สวนลุมพินี
- ถนนวิทยุ
- ถนนชิดลม
- ถนนสีลม
- ถนนราชดำริ
- รพ.จุฬาลงกรณ์
- รถไฟฟ้า BTS สถานีชิดลม
แผนที่โครงการ Sindhorn Residence
พิกัดโครงการ 13.738799,100.544313 รูปแบบคอนโด และขนาดพื้นที่โครงการ
- คอนโดมิเนียมเป็นแบบ High-rise 2 อาคาร ได้แก่ อาคาร A สูง 32 ชั้น และ อาคาร B สูง 10 ชั้น
- พื้นที่โครงการประมาณ 4 ไร่
- ห้องชุดพักอาศัยรวม 200 ยูนิต
อาคาร A

Floor Plan ของชั้น 3-4

Floor Plan ชั้น 5 - 20

Floor Plan ชั้น 21

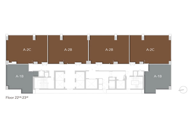
Floor Plan ชั้น 22-23

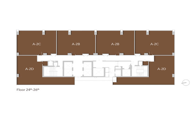
Floor Plan ชั้น 24-26

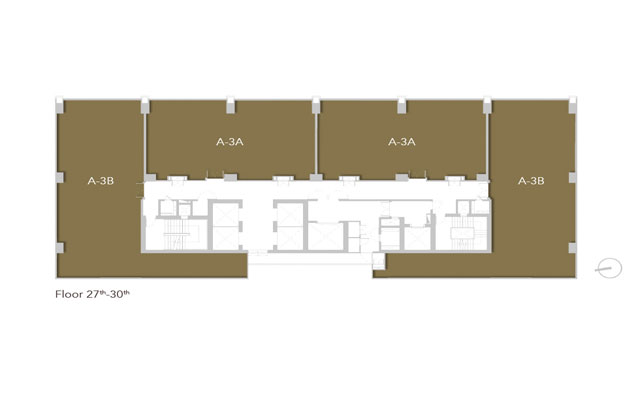
Floor Plan ชั้น 27 - 30

Floor Plan ชั้น 31-32

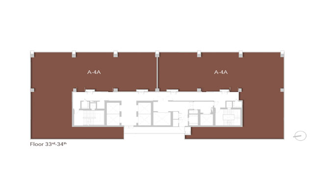
Floor Plan ชั้น 33-34
อาคาร B

Floor Plan ชั้น 2-5

Floor Plan ชั้น 6-9

Floor Plan ชั้น 10
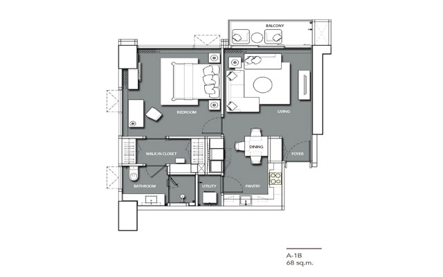
แบบห้องและพื้นที่ใช้สอย
- แบบสตูดิโอ - 3 ห้องนอน ขนาดตั้งแต่ 35-250 ตร.ม.
สาธารณูปโภคภายในโครงการ (ตามรูปจำลองด้านล่าง)
- สระว่ายน้ำขนาดยาว 25 เมตรเป็นสระน้ำเกลือ
- สระว่ายน้ำเด็ก
- ห้องออกกำลังกายพร้อมอุปกรณ์ครบครัน
- Sport Club พร้อมทั้งห้องเซาว์น่า และห้องไอน้ำ
- ห้องอเนกประสงค์
อัพเดตความเคลื่อนไหวโครงการ
- เริ่มดำเนินการก่อสร้างภายในปี 2557 คาดว่าจะแล้วเสร็จประมาณปี 2560
- สำหรับผู้ที่สนใจสามารถสอบถามข้อมูลเพิ่มเติมได้ที่ลิงก์ด้านล่างนี้
สอบถามข้อมูลเพิ่มเติมได้ที่ โทร. 02 650 9595 หรือ
www.sindhornresidence.com