Hasu Haus condominium (ฮาสุ เฮ้าส์ คอนโดมิเนียม)
ฮาสุ เฮ้าส์ คอนโดมิเนียม (Hasu Haus condominium) คอนโดมิเนียมโครงการใหม่จากแสนสิริ ตัวโครงการอยู่ในซอยสุขุมวิท 77 ติดคลองพระโขนง ทำเลอยู่ในพื้นที่ที่เรียกว่า T77 เป็นเมืองใหม่ที่รวมเอาโครงการของแสนสิริ และคอมมูนิตี้ มอลล์
รวมไว้ในโซนเดียวกัน โดยมีโครงการ
บลอคส์ 77 และ
เดอะ เบส สุขุมวิท77 อยู่ระหว่างทางเข้าโครงการเลย
ราคาเริ่มต้น
2.29 ล้านบาท
เจ้าของโครงการ
บริษัท แสนสิริ จำกัด (มหาชน)
ทำเล และสถานที่ตั้งใกล้เคียง
โครงการ
ฮาสุ เฮ้าส์ คอนโดมิเนียม (Hasu Haus condominium) ตั้งอยู่ที่ ที 77 (T77) พื้นที่อยู่อาศัยแห่งใหม่ที่ตั้งอยู่ระหว่างซอยสุขุมวิท 71 และซอยสุขุมวิท 77 แวดล้อมไปด้วยธรรมชาติ มีความเป็นส่วนตัวสูง แต่เดินทางสะดวก ใกล้ทางด่วน และใกล้ BTS สถานีอ่อนนุช และยังมีสถานที่ใกล้เคียง เช่น
- บิ๊กซี เอ็กซ์ตร้า สุขุมวิท 77
- เทสโก้ โลตัส สุขุมวิท 50
- เกตเวย์ เอกมัย
- โรงพยาบาลสุขุมวิท
- โรงพยาบาลกล้วยน้ำไท
- โรงพยาบาลเทพธารินทร์
- โรงเรียนศรีวิกรม์
- โรงเรียนนานาชาติ เอกมัย
- โรงเรียนทอสี

แผนที่โครงการ Hasu Haus Condominium
รูปแบบคอนโด และขนาดพื้นที่โครงการ
- คอนโดมิเนียมเป็นแบบ Low-Rise สูง 7 ชั้น จำนวน 2 อาคาร
- พื้นที่โครงการประมาณ 4 ไร่
- ห้องชุดพักอาศัยรวม 324 ยูนิต

Floor Plan ชั้น G
แบบห้องและพื้นที่ใช้สอย
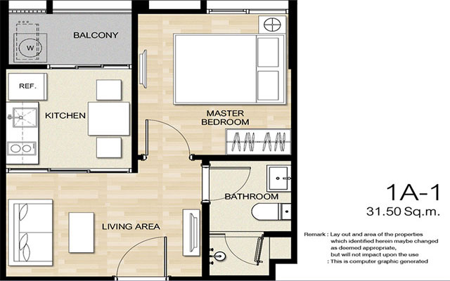
- แบบ 1 ห้องนอน 1 ห้องน้ำ ขนาด 31-31.50 ตร.ม.
- แบบ 1 ห้องนอน 1 ห้องน้ำ ขนาด 35.50-37.50 ตร.ม.
- แบบ 1 ห้องนอน 1 ห้องน้ำ ขนาด 40.25-41 ตร.ม.
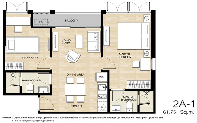
- แบบ 2 ห้องนอน 2 ห้องน้ำ ขนาด 61.75-65.25 ตร.ม.
- แบบ 3 ห้องนอน 3 ห้องน้ำ ขนาด 92.25 ตร.ม.

ตัวอย่างแปลนแบบ 1 ห้องนอน

ตัวอย่างแปลนแบบ 2 ห้องนอน

ตัวอย่างแปลนแบบ 3 ห้องนอน
สาธารณูปโภคภายในโครงการ
- The Water Lily Court คอร์ทส่วนกลาง
- The Firm ห้องออกกำลังกาย พร้อมอุปกรณ์
- The Sway ห้องพักผ่อนหย่อนใจ
- สระว่ายน้ำพร้อมสระเด็ก
- พื้นที่พักผ่อนริมน้ำ พร้อมเฟอร์นิเจอร์กลางแจ้ง
- สวนพักผ่อนพร้อมพื้นที่สันทนาการกลางแจ้ง
- อินเทอร์เน็ตไร้สายสำหรับโถงพักคอยและบริเวณสระว่ายน้ำ
- ที่จอดจักรยาน
- จักรยาน limited edition - HAUS x tokyobike
- รถรับส่ง
- เจ้าหน้าที่รักษาความปลอดภัย ตลอด 24 ชั่วโมง
- กล้องวงจรปิดตลอด 24 ชั่วโมง
- ที่จอดรถ
อัพเดตความเคลื่อนไหวโครงการ
- เริ่มเปิดให้ชมห้องตัวอย่างแล้วที่โครงการ {1420702,}
- เปิดตัวในงาน Sansiri Life Come Home วันที่ 10-12 ตุลาคม 2557 นี้
- สำหรับท่านที่สนใจ สามารถลงทะเบียนเพื่อรับข่าวสารเพิ่มเติมได้ตามลิงก์ด้านล่างนี้
สอบถามเพิ่มเติม โทร. 1685 หรือทางเว็บไซต์
www.sansiri.com