เดอะ ไพรเวซี่ เรวดี (The Privacy Rewadee)
หลังจากที่ บริษัท พฤกษา เรียลเอสเตท จำกัด (มหาชน) ได้เปิดตัว
เดอะ ไพรเวซี่ งามวงศ์วาน (The Privacy Ngamwongwan) ไปได้ไม่นาน ก็เตรียมเปิดอีกหนึ่งโครงการต่อเนื่องเลย สำหรับแบรนด์ The Privacy กับ
เดอะ ไพรเวซี่ เรวดี (The Privacy Rewadee) ซึ่งตั้งอยู่ในซอยเรวดี 16 และ18 โดยมีลักษณะเป็นคอนโดแบบ Low Rise มาในแนวคิด
"หลีกหนีความวุ่นวาย.. กลับสู่ความเป็นส่วนตัวที่มากกว่า" ซึ่งโครงการนี้ให้ความสำคัญในเรื่องความเป็นส่วนตัว เพราะมีจำนวนห้องพักเพียง 78 ยูนิตต่ออาคาร หรือ 13 ยูนิตต่อชั้นเท่านั้น สะดวกมากขึ้นกับรถไฟฟ้า MRT ห่างแค่ 900 เมตรถึงสถานีกระทรวงสาธารณสุข (สายสีม่วงในอนาคต) อีกทั้งภายในโครงการยังมีมุมสวนหย่อม และ สิ่งอำนวยความสะดวกมากมายมากมายให้ได้ผ่อนคลายในวันหยุดของคุณ
ราคาเริ่มต้น
1.29 ล้านบาท
ทำเล และสถานที่ตั้งใกล้เคียง
โครงการ
เดอะ ไพรเวซี่ เรวดี (The Privacy Rewadee) ตั้งอยู่ในซอยเรวดี 16 และ 18 ห่างจากถ.ติวานนท์ เพียง 800 เมตร ทำเลดีเยี่ยม ใกล้ MRT สถานีกระทรวงสาธารณสุขเพียง 900 เมตร พร้อมแหล่ง Shopping น่าสนใจ ดังนี้
- เอสพลานาด รัตนาธิเบศร์
- เซ็นทรัลรัตนาธิเบศร์
- บิ๊กซี ติวานนท์
- แยกแคราย
แผนที่โครงการ รูปแบบโครงการ และขนาดพื้นที่ - พื้นที่โครงการ 1 ไร่ 2 งาน 11 ตารางวา
- 3 อาคาร 7 ชั้น
- รวมห้องพักอาศัยทั้งหมดจำนวน 234 ยูนิต (13 ยูนิต/ชั้น/อาคาร)
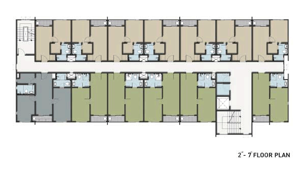
Floor Plan ชั้น 2 - 7 แบบห้อง และพื้นที่ใช้สอย - แบบ 1 ห้องนอน ขนาดพื้นที่ใช้สอย 28 ตร.ม. และ 33 ตร.ม.
- แบบ 2 ห้องนอน ขนาดพื้นที่ใช้สอย 50 ตร.ม.
สาธารณูปโภคภายในโครงการ - สระว่ายน้ำ
- ฟิตเนส
- สวนหย่อม
- ห้องสมุด
- คลับเฮาส์
- คีย์การ์ด
- ระบบรักษาความปลอดภัย
ภาพจำลองตัวอย่างแบบห้องพักอาศัย
ภาพจำลองตัวอย่างห้องฟิตเนส
ภาพจำลองตัวอย่างห้องสมุด อัพเดตความเคลื่อนไหวของโครงการ
- Pre-Sale พร้อมดูแบบห้องตัวอย่าง สิงหาคม 2556 นี้
- ผู้ที่สนใจสามารถลงทะเบียนเพื่อรับส่วนลดสูงสุด 10,000 บาท (จำนวนจำกัด) ได้ผ่านทางเว็บไซต์ของโครงการ
สอบถามข้อมูลเพิ่มเติม โทร. 1739