รวมกระทู้รีโนเวทบ้านและคอนโดเก่าให้เหมือนใหม่
บ้านและคอนโดคงเป็นสิ่งที่ปรารถนาของใครหลายๆ คน แต่เนื่องจากค่าครองชีพได้สูงขึ้นเรื่อยๆ ตามภาวะเงินเฟ้อ การซื้อบ้านและคอนโดใหม่อาจจะเกินงบประมาณที่ตั้งไว้ ทำให้บ้านและคอนโดมือสองเข้ามาเป็นตัวเลือกที่น่าสนใจกว่า บางครั้งเราอาจจะได้บ้านและคอนโดมือสองที่ทำเลและสภาพดีในราคาที่ไม่แพงอีกด้วย
บทความนี้ได้รวบรวมกระทู้จาก
http://pantip.com ที่ได้ลงรายละเอียดการตกแต่งบ้านและคอนโดเอาไว้เป็นไอเดียสำหรับใครที่มองหาบ้านและคอนโดมือสองเพื่อที่จะตกแต่งใหม่ วันนี้เรายกตัวอย่างมาให้ดูสัก 3 หลังจะมีรูปแบบไหนบ้างไปชมกันได้เลยครับ
1. ทาวน์เฮ้าส์ 4 ชั้น ตกแต่งแนว New York Classic
หลังแรกจะเป็นรูปแบบทาวน์เฮ้าส์ 4 ชั้น โดยได้ตกแต่งใหม่เป็นทาวน์เฮ้าส์แนว New York Classic ที่ดูสวยและเท่ไม่ซ้ำใคร
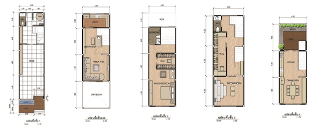
ลักษณะตัวบ้านเก่าเป็นทาวน์เฮ้าส์ 4 ชั้น และมีชั้นลอยระหว่างชั้น 1 และ ชั้น 2 มาดูรูปตัวบ้านเก่ากันดีกว่าครับ
ในส่วนแปลนบ้านที่ตกแต่งใหม่ทางเจ้าของบ้านต้องการปรับเปลี่ยนให้เป็นบ้านสำหรับอาศัย 1-2 คนเลยทำห้องนอนเอาไว้แค่ 1 ห้องนอน โดยจะมีชั้นลอยเป็นห้องสำหรับดูทีวีและอ่านหนังสือ ชั้น 2 จะเป็นห้องนอน ชั้น 3 จะเป็นห้องพระ และ Walk-in Closet สุดท้ายชั้น 4 จะเป็นห้องครัวรวมไปถึงโต๊ะรับประทานอาหาร และสวนเล็กๆ ภายนอกอาคารอีกด้วย
หลังจากตกแต่งเสร็จแล้วมาเริ่มดูกันที่ชั้นลอยที่ได้ตกแต่งเป็นห้องพักผ่อนพร้อมห้องครัวเล็กๆ ไว้ด้านหลัง

Before

After
ห้องนอนในชั้น 2 ก็ได้ถูกตกแต่งแบบเรียบหรู พร้อม Walk-in Closet และห้องน้ำ

Before

After
ชั้น 3 เป็นห้องพระ และ Walk-in Closet ที่เพิ่มเติมจากชั้น 2

Before

After
ชั้น 4 เป็นห้องครัวหลัก และ ที่รับประทานอาหารพร้อมสวนเล็กๆ ที่อยู่ภายนอกอาคาร

Before

After
จบแล้วสำหรับการตกแต่งทาวน์เฮ้าส์เก่าให้ดูเรียบหรูดูดี ใครที่สนใจสามารถเข้าไปอ่านรายละเอียดเพิ่มเติมได้ที่
http://pantip.com/topic/31345061 ได้เลยครับ
2. บ้านชั้นเดียวตกแต่งรูปแบบ Modern
บ้านหลังที่สองที่นำมาให้ชมกันจะเป็นรูปแบบบ้านชั้นเดียว โดยตกแต่งภายนอกและภายในใหม่หมด มีการต่อเติมหลังคาสำหรับที่จอดรถและเปลี่ยนรั้วใหม่ มาดูรูปก่อนที่จะตกแต่งกันดีกว่าครับ
หลังจากตกแต่งภายนอกเพิ่มหลังคาในที่จอดรถและเปลี่ยนรั้วใหม่แล้วออกมาหน้าตาเป็นแบบนี้
มาดูแปลนบ้านกันต่อเลยครับ จากเดิมเป็นบ้านชั้นเดียวแบบ 3 ห้องนอน ได้ปรับเปลี่ยนเป็นแบบ 1+1 ห้องนอนแทนโดยเพิ่มห้องนอนเล็กที่เป็นห้องทำงานและเพิ่มห้องอเนกประสงศ์ ปรับส่วนห้องพักผ่อนให้กว้างขึ้นพร้อมต่อเติมบ้านให้มีครัวด้านนอกและห้องเก็บของอีกด้วย
เริ่มกันที่ห้องนั่งเล่นครับ ปูพื้นและเพดานใหม่หมด และมี Pantry ไว้สำหรับอุ่นอาหารหรือชงกาแฟไว้ในส่วนนี้

Before

After
ต่อจากห้องนั่งเล่นมาดูกันที่ห้องนอนที่ตกแต่งใหม่ทั้งหมด โดยห้องนอนจะติดกับสวนหน้าบ้าน แม้ว่าจะเป็นบ้านชั้นเดียวก็สามารถมีวิวสวนจากห้องนอนได้เหมือนกัน
ส่วนห้องน้ำก่อนตกแต่งจะเป็นห้องน้ำแบบธรรมดา หลังจากตกแต่งเสร็จแล้วก็ดู Modern ขึ้นทันตา

Before

After
สุดท้ายไปดูกันที่ทางเดินบริเวณข้างนอกและครัว ตกแต่งแล้วดูสวยงาม และร่มรื่น

Before

After

Before

After
จบแล้วนะครับสำหรับไอเดียตกแต่งบ้านบ้านหลังนี้ เราไปต่อกันที่คอนโดเป็นหลังสุดท้ายกันครับ สำหรับใครที่สนใจดูรายละเอียดข้อมูลเพิ่มเติมสำหรับบ้านหลังนี้สามารถเข้าไปดูได้ที่
http://topicstock.pantip.com/home/topicstock/2012/06/R12217944/R12217944.html (ตกแต่งภายนอก)
http://topicstock.pantip.com/home/topicstock/2012/09/R12721176/R12721176.html (ตกแต่งภายใน)
3. คอนโด 50 ตร.ม. ตกแต่งใหม่รูปแบบ Contemporary
สำหรับบ้านหลังสุดท้ายที่นำให้ชมกันเป็นคอนโดขนาดพื้นที่ 50 ตร.ม. ตกแต่งใหม่ทั้งหมดรูปแบบ Contemporary มีกลิ่นอายแบบ Asia ผสมผสานกับแนว Modern
เริ่มกันที่รูปก่อนตกแต่งกันเลยครับ ห้องนี้มีการแบ่งห้องเป็นสัดส่วนไว้อยู่แล้ว และโครงสร้างหลักยังโอเคอยู่
หลังจากนั้นปูพื้นใหม่ ทำฝ้า ทาสี ติดไฟ พร้อมลงเฟอร์นิเจอร์ก็ออกมาสวยงามแบบนี้เลยครับ
หากยังดูรูปไม่จุใจสำหรับห้องนี้สามารถเข้าไปดูเพิ่มเติมได้ที่นี่เลยครับ
http://pantip.com/topic/31465057 เป็นยังไงบ้างครับสำหรับ 3 แบบ 3 สไตล์ที่นำให้ชมเป็นไอเดีย คงถูกใจสำหรับท่านที่กำลังจะตกแต่ง หรือรีโนเวทบ้านและคอนโดนะครับ หากท่านใดมีบ้านและคนโดที่น่าสนใจ ลองแลกเปลี่ยนความคิดเห็นในช่อง Comment ด้านล่างกันได้เลยแล้วพบกันใหม่ในโอกาสหน้า สวัสดีครับ