10 แปลนห้องน่าสนใจในคอนโดยอดนิยม
ในการเลือกซื้อคอนโดมิเนียมสักห้อง นอกจากจะเลือกซื้อจากราคา ความน่าเชื่อถือของโครงการ ส่วนกลาง และทำเลที่ตั้งแล้ว สิ่งที่ต้องพิจารณาและให้ความสำคัญไม่แพ้ข้ออื่นๆ ก็คือแปลนและขนาดห้อง เพราะเป็นพื้นที่ส่วนที่เราใช้เวลาด้วยมากที่สุดในคอนโด ในวันนี้ทาง Checkraka.com มีแปลนห้องจากโครงการที่น่าสนใจมาฝากเพื่อนๆ กันครับ
1. Aspace ID Asoke-Ratchada - พิเศษด้วยโถงทางเข้าด้านหน้า (Foyer)
แปลนห้อง Type B "เอ สเปซ ไอดี อโศก-รัชดา" (A Space I/D Asoke-Ratchada) แม้ภายในห้องอาจจะดูธรรมดาทั่วไป แต่ที่หน้าห้องนั้นได้ถูกสร้างให้เป็นโถงทางเข้าด้านหน้า (Foyer) เพิ่มขึ้นมา โดยสามารถวางตู้ใส่รองเท้าตรงส่วนนี้ได้ และเป็นพื้นที่เล็กๆ สำหรับระบายอากาศป้องกันความชื้นจากห้องน้ำในตัวห้องชุดได้ 2. Condolette Dwell - ให้ความรู้สึกเหมือนอยู่บ้าน
แปลนห้องแบบ Duplex ของ "คอนโดเลต ดเวล" (Condolette DWELL) ที่ตั้งอยู่หน้าโครงการซึ่งจะมีเพียงแค่ 3 ยูนิตเท่านั้น ลักษณะของห้องจะคล้ายๆ ทาวน์โฮม 2 ชั้น โดยชั้น 1 สามารถเดินเข้าจากด้านนอก และชั้น 2 จะมีระเบียงเพื่อที่จะลงสู่สระว่ายน้ำได้ทันที
3. The Crest Sukhumvit 34 - เข้าออกห้องน้ำได้ 2 ทาง
"เดอะ เครสท์ สุขุมวิท 34" (The Crest Sukhumvit 34) แปลน 1 ห้องนอนขนาด 52 ตร.ม. มีจุดเด่นตรงที่ห้องน้ำสามารถเข้า-ออกได้สองทางทั้งจากด้านห้องนั่งเล่น และจากด้านห้องนอนเพื่อความสะดวก และเป็นส่วนตัว (เช่น คนหนึ่งจะเข้าห้องน้ำจากด้านนอกได้ โดยไม่ต้องเปิดประตูเข้าไปในห้องนอนกรณีมีอีกคนนอนอยู่) โครงการใหม่อื่นๆ ที่มีแปลนห้องแบบเข้าห้องน้ำได้ 2 ทางอื่นๆ ก็มีเช่น Tree Condo ประสานมิตร เป็นต้น
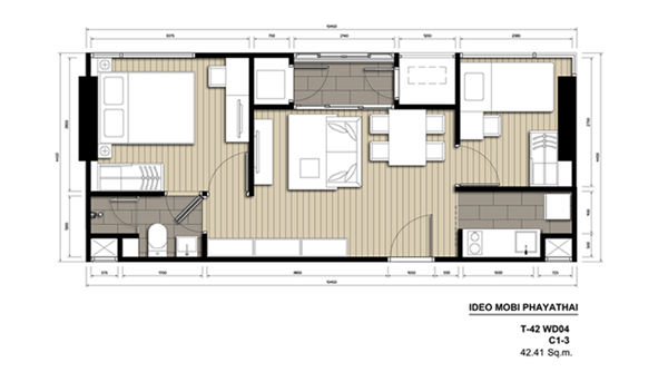
4. IDEO Mobi Phayathai - 2 ห้องนอนที่เล็กที่สุด
มาดูแปลนห้อง 2 ห้องนอนกันบ้างครับ คือแปลนห้อง 2 ห้องนอนของ
"ไอดีโอ โมบิ พญาไท" (IDEO Mobi Phayathai) ที่มีขนาดเพียง 42.41 ตร.ม. ซึ่งเรียกได้ว่าแทบจะเป็น 2 ห้องนอนที่มีขนาดเล็กที่สุดในตลาดแล้ว แต่ก็สามารถจัดส่วนทุกอย่างได้อย่างลงตัว น่าสนใจไม่น้อยสำหรับผู้ที่ต้องการคอนโด 2 ห้องนอนที่ทำเลดี และราคาไม่สูง (เนื่องจากขนาดห้องไม่ใหญ่มาก)
5. LPN Condo - แปลนห้องยอดนิยมของชาว LPN
แปลนห้องยอดนิยมของ
"ลุมพินี คอนโด" (LPN Condo) จุดเด่นของแปลนห้องนี้จะเป็นรูปแบบ 1 ห้องนอนในขนาดห้องเพียง 22.50 ตร.ม. ไปจนถึง 28 ตร.ม. โดยจะมีการกั้นห้องนอนด้วยกระจกบานเลื่อนเพิ่มความเป็นส่วนตัวให้แก่ผู้อยู่อาศัย และจัดโซนห้องครัวใกล้ระเบียงเพื่อให้ระบายกลิ่นอาหารได้ดี แปลนห้องนี้เรียกได้ว่าเป็นแปลนห้องยอดนิยมของโครงการ LPN Condo เลยก็ว่าได้ 6. Noble Ploenchit - มาพร้อมลิฟต์ส่วนตัว
"โนเบิล เพลินจิต" (Noble เพลินจิต) มีจุดเด่นอยู่ที่มีลิฟต์ส่วนตัวทุกห้อง โดยลิฟต์นี้จะล็อคชั้น ล็อคห้องไว้กับคีย์การ์ดเจ้าของห้อง แต่หากไม่สะดวกใช้ลิฟต์ส่วนตัวก็สามารถใช้บริการลิฟท์ในส่วนกลางของคอนโดได้ครับ
7. Park 24 - 4 ห้องรวมกัน
แปลนห้องแบบพิเศษควบ 4 ยูนิตของโครงการ
"พาร์ค 24" (Park 24) นี้เป็นแบบ Duplex ที่มีถึง 3 ห้องนอน 4 ห้องน้ำ โดยเป็นการรวม 4 ยูนิตเล็กๆ ทั้งหมดเข้ามาเป็น 1 ยูนิต Duplex ใหญ่ ถือว่าน่าสนใจไม่น้อยสำหรับครอบครัวที่อยู่คอนโด 3-4 คนในยูนิตเดียว และแต่ละคนก็สามารถมีห้องส่วนตัวของตัวเองได้ นอกจากนี้ โครงการนี้ก็ยังมีขายแบบ 2 ยูนิตเล็กรวมกันเข้าเป็น 1 ยูนิตใหญ่เพื่อให้ได้ 2 ห้องนอนด้วยโดยจะได้ 2 โฉนดแยกจากกันเป็น 2 ยูนิตเพื่อแบ่งขายต่อได้ในอนาคต
8. Rhythm Condo - ห้องกินข้าวลอยฟ้า
แปลนห้องนี้จะมีอยู่ในคอนโด
"ริทึ่ม คอนโด" (RHYTHM Condo) ในทุกๆ ทำเล โดดเด่นด้วยห้องรูปแบบ Sky Kitchen ที่นำส่วนครัว และ Counter ทานอาหารพร้อมเก้าอี้สูง (Stool) อยู่ริมกระจกขนาดใหญ่ สามารถรับชมวิวมุมสูง และรับประทานอาหารได้พร้อมๆกัน
9. U Delight Residence พัฒนาการ - ทองหล่อ - รับวิวหน้ากว้างทุกห้อง
แปลนห้อง Pano Deluxe ในคอนโด "ยู ดีไลท์ เรสซิเดนซ์ พัฒนาการ-ทองหล่อ" (U-Delight Residence) มีจุดเด่นอยู่ที่รูปแบบแปลนห้องหน้ากว้างโดยมีขนาดห้องเริ่มต้นที่ 35 ตร.ม. ไปจนถึง 40 ตร.ม. ห้องหน้ากว้างนี้ได้ออกแบบให้ห้องนั่งเล่น ห้องครัว และห้องนอน อยู่ติดหน้าต่างของห้องสามารถรับชมวิวในมุมมองพาโนรามาได้อย่างเต็มตา
10. Wyne By Sansiri - แปลนห้องปลายแหลม
แปลนห้องปลายแหลมแบบนี้ของ
"วายน์ บาย แสนสิริ (Wyne By Sansiri)" มีความโดดเด่นด้วยรูปแบบของห้องเป็นสี่เหลี่ยมคางหมูพร้อมกระจกบานใหญ่ที่มีความสูงจากพื้นถึงเพดานทำให้ห้องนี้ดูโดดเด่นเป็นอย่างมาก
เป็นอย่างไรบ้างครับสำหรับแปลนห้องน่าสนใจที่ทาง CheckRaka.com เอามาให้ชมกัน มีแปลนไหนห้องถูกใจผู้อ่านบ้างไหมครับ? หากท่านใดมีแปลนห้องที่น่าสนใจจากโครงการอื่นๆ ลองแลกเปลี่ยนความคิดเห็นในช่อง Comment ด้านล่างกันได้เลยนะครับ
สุดท้ายนี้ก่อนซื้อคอนโดมิเนียมทุกครั้งลองเข้ามาเช็คข้อมูลอัพเดตใน CheckRaka.com ก่อนตัดสินใจซื้อนะครับ เพราะทางเรามีทั้งราคา และข้อมูลความรู้ที่เป็นประโยชน์ต่อผู้ซื้อเพื่อให้ทุกท่านได้รับสินค้าที่ดีที่สุด แล้วพบกันใหม่ในโอกาสหน้า สวัสดีครับ
หมายเหตุ:
1. วัตถุประสงค์ของบทความนี้เป็นการรวบรวมคอนโดมิเนียมที่มี Layout ห้องน่าสนใจ (เพียงบางส่วนจากหลายๆ โครงการ) เพื่อความบันเทิง หรือเป็นความรู้สำหรับคนที่ทำงานเกี่ยวกับแปลนห้อง หรือ Layout ห้องคอนโดเท่านั้น และเป็นการรวบรวมโดยใช้ดุลยพินิจของกองบรรณาธิการ Checkraka.com บนพื้นฐานของข้อมูลที่มีอยู่ในตลาดเป็นสำคัญ
2. ในความเป็นจริงแล้ว ยังมีคอนโดมิเนียมโครงการอื่นอีกหลายโครงการที่มีแปลน หรือ Layout ห้องที่น่าสนใจเช่นกัน ดังนั้น ผู้ที่สนใจคอนโดมิเนียมประเภทนี้ อาจลองหาข้อมูลอื่นๆ และเว็บไซต์ของบริษัทเจ้าของโครงการอื่นๆ ด้วยเพื่อประกอบการตัดสินใจในการซื้อหรือขาย
3. การเรียงลำดับโครงการคอนโดมิเนียมข้างต้นนี้ เป็นการเรียงลำดับตามชื่อโครงการในภาษาอังกฤษเพียงอย่างเดียวเท่านั้น และไม่ได้เรียงตามราคา ขนาด ความสวยงาม หรือปัจจัยอื่นๆ แต่ประการใด
4. บทความนี้จัดทำขึ้นในเดือนพฤศจิกายน 2556 และเป็นการรวบรวมจากโครงการคอนโดมิเนียมที่ค่อนข้างเป็นที่รู้จัก หรือเป็นที่นิยมในปี 2556